Zuhause ankommen: Luce ist mehr als ein Familienhaus - denn hier trifft repräsentative Eleganz auf lichtdurchflutete Räume. Über den angrenzenden Carport gelangen Sie in Ihr über 190 Quadratmeter großes Traumhaus. Ihre Einkäufe können Sie direkt in den angrenzenden Hauswirtschaftsraum oder in der Speisekammer, die direkt an die Küche angrenzt, abstellen.
Highlight im Erdgeschoss ist der fast 47 Quadratmeter große, offene Wohn- und Essbereich. Dieser wird durch den über beide Etagen ragenden Wintergarten lichtdurchflutet - und das zu jeder Jahreszeit. Das Erdgeschoss wird komplettiert durch ein Home-Office, das entspanntes Arbeiten von Zuhause möglich macht, und ein Gäste-WC mit Dusche.
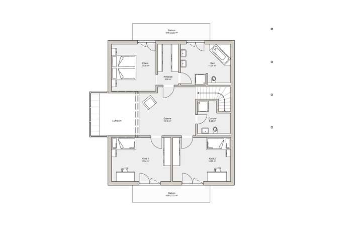
Selbst vom Dachgeschoss aus können Sie über die Galerie durch den Wintergarten in den heimischen Garten blicken. Die beiden Kinderzimmer mit jeweils 17 Quadratmetern verfügen über ein eigenes Badezimmer mit Dusche. Das Eltern-Schlafzimmer ist mit einer Ankleide und einem Wellness-Badezimmer mit Badewanne und Dusche ausgestattet. Alle Schlafzimmer verfügen über einen direkten Zugang auf einen der beiden Balkone. Luce: Symbiose von Licht und Freiraum!
Dieses Haus wird nach Ihren individuellen Wünschen geplant und ausgestattet!
Symbiose von Licht und Freiraum!
99092 Erfurt
Die vollständige Adresse der Immobilie erhalten Sie vom Anbieter.
Auf Karte anzeigen
Die vollständige Adresse der Immobilie erhalten Sie vom Anbieter.
Finanzierungszertifikat
In nur zwei Minuten zu Ihrem persönlichen Finanzierungszertifkat.
Infos
| Haustyp | Einfamilienhaus |
|---|---|
| Wohnfläche ca. | 192 m2 |
| Grundstücksfläche | 2.200 m2 |
| Zimmer | 5 |
| Schlafzimmer | 4 |
| Badezimmer | 1 |
| Anzahl Garage/Stellplatz | 2 |
Kosten
| Kaufpreis |
961.400 € |
|---|---|
| Provision | Nein |
Finanzierungsrechner:
Kaufpreis:
600.000 €
Eigenkapital:
600.000 €
Monatliche Rate
0 €
Effektiver Jahreszins
0 %
Sollzinsbindung
10 Jahre
Bausubstanz & Energieausweis
| Baujahr | 2026 |
|---|---|
| Bauphase | Haus in Planung (projektiert) |
| Objektzustand | Erstbezug |
| Qualität der Austattung | Gehoben |
| Heizungsart | Wärmepumpe |
| Energieausweis | liegt vor |
| Energieausweistyp | Bedarfsausweis |
| Energieeffizienzklasse | A |
Energieeffizienzklasse A
- A+
- A
- B
- C
- D
- E
- F
- G
- H
- 0
- 25
- 50
- 75
- 100
- 125
- 150
- 175
- 200
- 225
- >250
Beschreibung des Objekts
Ausstattung
5 Zimmer, offene Küche, Diele, 2 x Dusche, Galerie, Bad, Ankleide, Hauswirtschaftsraum, SPK, 2 Balkone, Carport
Das gezeigte Traumhaus im Überblick:
+ Schlüsselfertiges Massivhaus im Sinne der Ausstattungsbeschreibung "Easy"
+ Inklusive Bodenplatte
Beste Markenausstattung in jedem Kern-Haus:
+ Zimmermannsmäßiger Dachstuhl aus Konstruktionsvollholz
+ Dacheindeckung mit Betondachsteinen von Braas
+ Hochwertiger Kunstharz-Außenputz für eine langlebige Fassade
+ Vollständige Badausstattung von Villeroy & Boch mit Badewanne und flacher Duschwanne
+ Fliesen von Villeroy & Boch in Bad und WC
+ Haustür mit 3-fach-Sicherheitsverriegelung
+ Erstklassige Innentüren der Marke Herholz
+ Fenster mit 3-Scheiben-Wärmeschutzverglasung und Rollläden
+ Stahl-Holz-Treppe mit individueller Farbgestaltungsmöglichkeit
+ Elektroausstattung inklusive Klingelanlage
+ Rauchmelder für Ihre Sicherheit
+ Alle Leistungen aus einer Hand
+ Alle Planungs- und Architektenleistungen
+ Einsatz regionaler Handwerksbetriebe
+ Individuelle Anpassung auf Ihre Bedürfnisse
+ Auf Wunsch mit Keller erhältlich
+ Auf Wunsch mit weiteren Energietechniken erhältlich
Lage
Bindersleben liegt westlich des Erfurter Stadtzentrums auf der Alacher Höhe. Im Ortsteil gibt es eine Reihe von Verkaufseinrichtungen sowie zwei Gaststätten, einen Friseursalon, ein Sportlerheim, einen Jugendclub und einen Kindergarten. Darüber hinaus sind hier verschiedene Kleingewerbe ansässig. Mit guter Verkehrsanbindung und idyllischer Lage wird Bindersleben zu einem charmanten Wohnstandort.
Sonstige Angaben
Kern-Haus
Kern-Haus baut individuelle und massive Architektenhäuser zu einem attraktiven Preis-Leistungs-Verhältnis – und das bereits mit einer Erfahrung seit 1980.
Maximale Sicherheit bei Kern-Haus:
+ 10 Jahre Gewährleistung auf die wesentlichen Bauleistungen
+ Bis zu 24 Monate Festpreisbindung
+ 50 Jahre Gewährleistung auf das DuoTherm-Mauerwerk
+ Verbindliche Bauzeit
+ Zahlung nach Baufortschritt
Preise und Auszeichnungen von Kern-Haus:
- German Brand Award in den Jahren 2018 und 2021
- Hausbau Design Award: Sieger in den Jahren 2017, 2018, 2019, 2020, 2021, 2022 und 2023
- Deutscher Traumhauspreis: Sieger in den Jahren 2014, 2015, 2016 und 2018 und Silber 2017, 2020 und 2021
- Mittelstandspreis "Top 100" in den Jahren 2014, 2016, 2018, 2020 und 2022
- German Design Award im Jahr 2018
Weitere Informationen
Der gezeigte Preis versteht sich inklusive Grundstück und exklusive der Baunebenkosten.
Ihre Ansprechpartnerin Katrin Klein vom Kern-Haus-Team in Erfurt freut sich darauf Ihre Fragen zu beantworten. Jetzt anrufen: 0361 / 551450
Grundriss
Grundriss Erdgeschoss
>
>
Grundriss Dachgeschoss
>
>
Adresse
99092 Erfurt
Interessante Orte
Preis- und Lageinformationen
Preistrend für Bestandsimmobilien in Bindersleben