Dieses charmante Reetdachhaus aus dem Jahr 1995 liegt idyllisch im ruhigen Wasserkoog auf der Halbinsel Eiderstedt. Auf einem ca. 1.200 m² großen Grundstück bietet es eine Größe von ca. 174m², die sich auf zwei Etagen verteilen. Die gemütliche Ausstattung mit Kachelofen, offener Holzbalkendecke und Holzsprossenfenstern unterstreicht den norddeutschen Landhausstil.
Schon beim Ankommen wird klar, hier stimmt die Atmosphäre. Hortensien säumen den Weg, alte Bäume und Sträucher schützen das Haus und bieten Privatsphäre, während Blumenbeete den Eingangsbereich farbenfroh in Szene setzen. Eine klassische Holzsprossentür empfängt Sie – typisch friesisch, charmant und einladend.
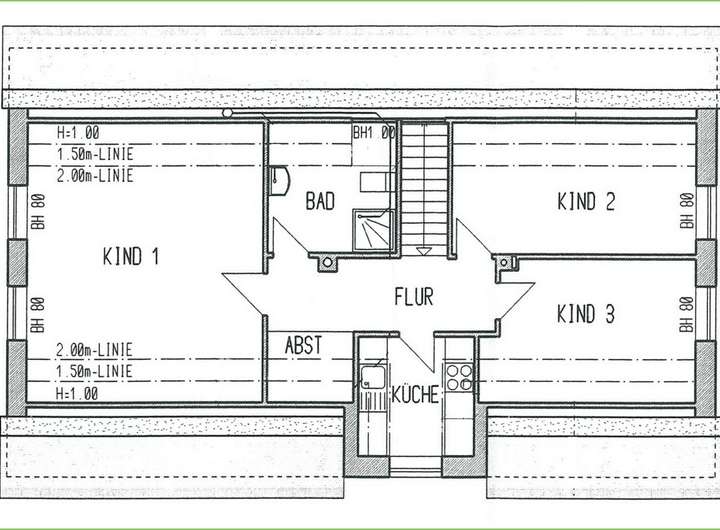
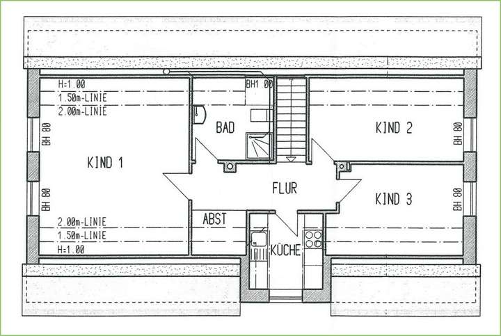
Durch das zweite Badezimmer und die zweite Küche im Dachgeschoss ist auch eine Nutzung als Zweifamilienhaus denkbar.
Das Haus bietet eine solide Grundlage mit nordischen Charme und vielfältigen Nutzungsmöglichkeiten – ideal für alle, die sich ein Zuhause in ruhiger, naturnaher Umgebung schaffen möchten.
Energieausweis - Verbrauchsausweis - Endenergieverbrauch 121,8 kWh/(m²°a).
Gerne übersenden wir Ihnen das vollständige Exposé.
Unter Reet zuhause**
25882 Tetenbüll
Die vollständige Adresse der Immobilie erhalten Sie vom Anbieter.
Auf Karte anzeigen
Die vollständige Adresse der Immobilie erhalten Sie vom Anbieter.
Finanzierungszertifikat
In nur zwei Minuten zu Ihrem persönlichen Finanzierungszertifkat.
Infos
| Haustyp | Einfamilienhaus |
|---|---|
| Etagenzahl | 2 |
| Wohnfläche ca. | 174 m2 |
| Nutzfläche | 12 m2 |
| Grundstücksfläche | 1.208 m2 |
| Bezugsfrei ab | nach Vereinbarung |
| Zimmer | 5 |
| Schlafzimmer | 4 |
| Badezimmer | 2 |
| Garage/Stellplatz | Carport |
| Anzahl Garage/Stellplatz | 1 |
Kosten
| Kaufpreis |
495.000 € |
|---|---|
| Provision |
3,57% inkl. gesetzl. MwSt.
verdient und fällig mit Beurkundung des notariellen Kaufvertrages. |
Finanzierungsrechner:
Kaufpreis:
600.000 €
Eigenkapital:
600.000 €
Monatliche Rate
0 €
Effektiver Jahreszins
0 %
Sollzinsbindung
10 Jahre
Bausubstanz & Energieausweis
| Baujahr | 1995 |
|---|---|
| Heizungsart | Öl-Heizung |
| Wesentliche Energieträger | Öl |
| Energieausweis | liegt vor |
| Energieausweistyp | Verbrauchsausweis |
| Energieverbrauchskennwert | 121,8 kWh/(m²*a) |
Beschreibung des Objekts
Lage
Die Immobilie liegt in dem idyllischen, von Reetdachhäusern geprägtem Ortsteil Wasserkoog in der Gemeinde Tetenbüll. Der beschauliche Ort gilt als das wohl schönste Dorf auf der Halbinsel Eiderstedt und liegt in der Mitte zwischen der Kreisstadt Husum und den weiten Sandstränden St. Peter-Ordings. Das Dorf ist überwiegend landwirtschaftlich geprägt und sehr verkehrsberuhigt gelegen. Durch seine vielen Reetdachhäuser versprüht es einen ganz besonderen Charme. In dem nur 5 Fahrradminuten entfernten Everschopsiel finden Sie eine sehr beliebte Badestellte, einen kleinen Sportboothafen und das bekannte Restaurant "Spieskommer". Der nur wenige Minuten entfernte Nordseedeich lädt außerdem zu schönen Spaziergängen ein. Ein Katzensprung entfernt befindet sich das Speicherbecken. Dort kann man viele Vögel auf ihrer Durchreise beobachten. Die Gemeinde Tetenbüll verfügt über einen Kindergarten und eine Grundschule. Die nächsten Einkaufsmöglichkeiten liegen in dem kleinen Örtchen Oldenswort oder den 10 Autominuten entfernten Städten Tönning und Garding. Beide Städte verfügen über Supermärkte, Bäcker, Metzger, Kindergärten, Schulen und Ärzte und decken somit alle Bereiche des täglichen Lebens ab.Husum und St. Peter-Ording sind in jeweils 15 Minuten mit dem Auto zu erreichen. Der Autobahn Anschluss in Heide ist ca. 25 Minuten entfernt.
Grundriss
Erdgeschoss
>
>
Dachgeschoss
>
>
Adresse
25882 Tetenbüll
Interessante Orte
Preis- und Lageinformationen
Preistrend für Bestandsimmobilien in Tetenbüll