Im Herzen von Steißlingen entsteht Ihr neues Zuhause – ein charmantes, QNG+-Line zertifiziertes Energieeffizienzhaus 40+ von Hanse Haus. Das Modell Villa 133 bietet mit ca. 126 m² Wohnfläche auf einem 379 m² großen Grundstück modernen Wohnkomfort in der Ausbaustufe schlüsselfertig.
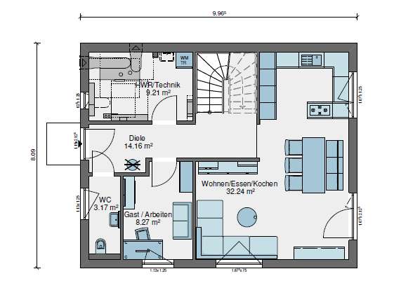
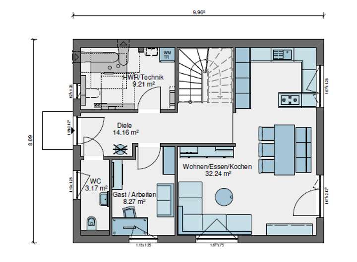
Im Erdgeschoss lädt der lichtdurchflutete Wohn- und Essbereich mit offener Küche zum Wohlfühlen und geselligem Beisammensein ein. Ein flexibles Zusatzzimmer, das sich ideal als Gäste- oder Arbeitszimmer eignet, rundet das Raumangebot ab. Im Obergeschoss erwarten Sie zwei helle Kinderzimmer sowie ein großzügiges Elternschlafzimmer mit separater Ankleide. Das stilvolle Bad mit Dusche und Badewanne sorgt für entspannte Wohlfühlmomente.
Das Haus ist QNG-zertifizierbar und ermöglicht Familien mit ein bis zwei Kindern die höchste Förderstufe der KfW-Förderung „Wohneigentum für Familien“ – profitieren Sie von attraktiven Zinskonditionen und zusätzlicher finanzieller Entlastung. Gerne prüfen wir im persönlichen Gespräch, welche weiteren Fördermöglichkeiten für Sie infrage kommen.
Moderne Ausstattung wie Fußbodenheizung, Luft-Wasser-Wärmepumpe und eine PV-Anlage mit Batteriespeicher garantieren nachhaltiges Wohnen auf höchstem Niveau.
In der Ausbaustufe schlüsselfertig sind Bodenbeläge, Spachtel- und Malerarbeiten sowie Innentüren bereits enthalten.
👉 Vereinbaren Sie noch heute Ihren persönlichen Beratungstermin und kommen Sie Ihrem Traumhaus ein Stück näher!
Energieeffiziente Villa im Herzen von Steißlingen - in Projektierung
78256 Steißlingen
Die vollständige Adresse der Immobilie erhalten Sie vom Anbieter.
Auf Karte anzeigen
Die vollständige Adresse der Immobilie erhalten Sie vom Anbieter.
Finanzierungszertifikat
In nur zwei Minuten zu Ihrem persönlichen Finanzierungszertifkat.
Infos
| Haustyp | Einfamilienhaus |
|---|---|
| Etagenzahl | 2 |
| Wohnfläche ca. | 126 m2 |
| Grundstücksfläche | 379 m2 |
| Zimmer | 5 |
| Schlafzimmer | 3 |
| Badezimmer | 1 |
Kosten
| Kaufpreis |
698.500 € |
|---|---|
| Provision | Nein |
Finanzierungsrechner:
Kaufpreis:
600.000 €
Eigenkapital:
600.000 €
Monatliche Rate
0 €
Effektiver Jahreszins
0 %
Sollzinsbindung
10 Jahre
Bausubstanz & Energieausweis
| Bauphase | Haus in Planung (projektiert) |
|---|---|
| Objektzustand | Erstbezug |
| Heizungsart | Fußbodenheizung |
| Wesentliche Energieträger | Umweltwärme |
| Energieausweis | liegt zur Besichtigung vor |
Beschreibung des Objekts
Ausstattung
Highlights des Hauses:
- großzügiger Wohn- und Essbereich
- Gäste-WC und Gäste-/Arbeitszimmer im Erdgeschoss
- 3 Schlafzimmer auf einer Etage im Obergeschoss
- Badezimmer mit Dusche und Badewanne
- Elternschlafzimmer verfügt über eine eigene Ankleide
- effiziente Luft-Wasser-Wärmepumpe
- Fußbodenheizung
- PV-Anlage mit Batteriespeicher
Lage
Diese exklusive Neubauvilla entsteht in ruhiger, zurückversetzter Lage auf einem ca. 379 m² großem Grundstück in zweiter Reihe – fernab vom Durchgangsverkehr und dennoch in fußläufiger Nähe zum Ortskern von Steißlingen. Die geplante private Zufahrtstraße sorgt für ein hohes Maß an Privatsphäre und schafft eine abgeschirmte Wohnatmosphäre mit viel Ruhe und Freiraum.
Steißlingen selbst vereint dörflichen Charme mit hervorragender Infrastruktur. Einkaufsmöglichkeiten, Schulen, Kindergärten sowie gastronomische Angebote befinden sich in unmittelbarer Umgebung und sind bequem erreichbar – ideal für Familien und alle, die Wert auf ein gut angebundenes, dennoch naturnahes Wohnumfeld legen.
Durch die verkehrsgünstige Lage erreichen Sie die Städte Singen und Konstanz sowie den Bodensee in kurzer Zeit. Ob beruflich oder zur Freizeitgestaltung – hier profitieren Sie von einer hervorragenden Anbindung bei gleichzeitig hoher Lebensqualität in einer der begehrtesten Regionen Süddeutschlands.
Sonstige Angaben
Das projektierte Hanse Haus ist QNG zertifizierbar. Somit ist für Sie (Familie mit 1-2 Kinder) die höchste Förderstufe der KfW-Förderung "Wohneigentum für Familien" möglich und Sie profitieren von zinsgünstigen Krediten, die Ihnen die Finanzierung noch einmal zusätzlich erleichtern. Ob für Sie weitere Fördermöglichkeiten in Frage kommen, klären wir gerne in einem persönlichen Beratungsgespräch.
Grundriss
Grundriss EG
>
>
Grundriss OG
>
>
Adresse
78256 Steißlingen
Interessante Orte
Preis- und Lageinformationen
Preistrend für Bestandsimmobilien in Steißlingen