Zum Verkauf steht ein gepflegtes Zweifamilienhaus in ruhiger Lage in Conrebbersweg, ursprünglich erbaut im Jahr 1974. Die Immobilie überzeugt durch ihre großzügige Aufteilung und vielseitige Nutzungsmöglichkeiten – ob als klassisches Zweifamilienhaus mit Einliegerwohnung oder als geräumiges Einfamilienhaus mit viel Platz für die ganze Familie.
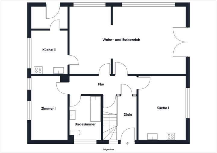
Das Haus bietet eine Wohnfläche von ca. 161 m² auf einem ca. 1.167 m² großen Grundstück. Insgesamt stehen 7 Zimmer, darunter 6 Schlafzimmer, zur Verfügung – ideal für Familien, Mehrgenerationenwohnen oder die Kombination aus Wohnen und Arbeiten im Homeoffice.
Zwei Badezimmer sorgen für Komfort im Alltag: Eines wurde 2024 teilweise modernisiert, das andere bereits 2004 erneuert. Eine separate Einliegerwohnung bietet zusätzlichen Wohnraum.
Die Ausstattung umfasst eine im Jahr 2005 installierte Gastherme, isolierverglaste Fenster (Bj. 1998) sowie einen 2024/2025 modernisierten Zählerkasten. Eine zentrale Heizungsanlage sorgt für angenehmes Raumklima, das gedämmte Dach trägt zur Energieeffizienz bei. Rollläden sind in vielen Räumen vorhanden und erhöhen den Wohnkomfort zusätzlich.
Für E-Mobilität ist ebenfalls gesorgt: Eine Wallbox zum Laden von Elektrofahrzeugen ist installiert. Zwei voll ausgestattete Einbauküchen – jeweils im Haupthaus und in der Einliegerwohnung – runden das Angebot ab.
Eine umfassende Renovierung im Jahr 2018 hat den Wohnstandard weiter verbessert und die Immobilie in einen gepflegten Zustand versetzt. Das großzügige Grundstück bietet reichlich Platz für Garten, Freizeit oder individuelle Gestaltungswünsche. Ein Außenstellplatz steht ebenfalls zur Verfügung.
Ob als großzügiges Einfamilienhaus oder klassisches Zweifamilienhaus – dieses Haus passt sich Ihren Lebensplänen an. Es vereint flexible Raumlösungen, solide Bausubstanz und moderne Ausstattung in ruhiger, familienfreundlicher Lage.
Bei Interesse freuen wir uns auf Ihre Kontaktaufnahme und vereinbaren gerne einen Besichtigungstermin, um Ihnen diese attraktive Immobilie persönlich zu präsentieren.
Begehrte Lage – Charmantes Ein-/Zweifamilienhaus mit vielen Möglichkeiten
26721 Emden
Die vollständige Adresse der Immobilie erhalten Sie vom Anbieter.
Auf Karte anzeigen
Die vollständige Adresse der Immobilie erhalten Sie vom Anbieter.
Finanzierungszertifikat
In nur zwei Minuten zu Ihrem persönlichen Finanzierungszertifkat.
Infos
| Haustyp | Einfamilienhaus |
|---|---|
| Etagenzahl | 1 |
| Wohnfläche ca. | 161 m2 |
| Grundstücksfläche | 1.167 m2 |
| Zimmer | 7 |
| Schlafzimmer | 6 |
| Badezimmer | 2 |
| Garage/Stellplatz | Außenstellplatz |
| Anzahl Garage/Stellplatz | 4 |
Kosten
| Kaufpreis |
329.000 € |
|---|---|
| Provision |
Käuferprovision beträgt 3,57 % (inkl. MwSt.) des beurkundeten Kaufpreises |
Finanzierungsrechner:
Kaufpreis:
600.000 €
Eigenkapital:
600.000 €
Monatliche Rate
0 €
Effektiver Jahreszins
0 %
Sollzinsbindung
10 Jahre
Bausubstanz & Energieausweis
| Baujahr | 1975 |
|---|---|
| Letzte Sanierung | 2024 |
| Bauphase | Haus fertig gestellt |
| Objektzustand | Gepflegt |
| Qualität der Austattung | Normal |
| Heizungsart | Zentralheizung |
| Wesentliche Energieträger | Gas |
| Energieausweis | liegt vor |
| Energieausweistyp | Bedarfsausweis |
| Energieverbrauchskennwert | 228,8 kWh/(m²*a) |
| Energieeffizienzklasse | G |
228,8
kWh/(m²*a)
Energieeffizienzklasse G
- A+
- A
- B
- C
- D
- E
- F
- G
- H
- 0
- 25
- 50
- 75
- 100
- 125
- 150
- 175
- 200
- 225
- >250
Beschreibung des Objekts
Ausstattung
- Baujahr 1974
- Beliebte und ruhige Lage
- ca. 161,39m² Wohnfläche
- ca. 1167m² Grundstücksfläche
- 2024/2025 Zählerkasten
- 2024 Bad teilweise erneuert
- 2018 Renovierung
- 2005 Therme
- 2004 Badezimmer
- 1998 Fenster (Isoglas)
- Einliegerwohnung
- Dach gedämmt
- Wallbox
- Rollläden
- 2x Einbauküchen
Lage
Das Wohngebiet Conrebbersweg befindet sich im südöstlichen Teil der Stadt Emden in Ostfriesland. Es gehört zu den beliebtesten Wohnlagen der Seehafenstadt und zeichnet sich durch eine ruhige, familienfreundliche Atmosphäre sowie eine gut entwickelte Infrastruktur aus.
Conrebbersweg liegt verkehrsgünstig und dennoch naturnah. Die Innenstadt von Emden ist in wenigen Minuten mit dem Auto oder dem Fahrrad erreichbar. Auch der Emder Außenhafen sowie größere Arbeitgeber wie VW sind schnell zu erreichen, was den Stadtteil besonders für Berufspendler attraktiv macht.
Im näheren Umfeld befinden sich Schulen, Kindergärten, Einkaufsmöglichkeiten (u. a. Supermärkte und Drogerien), Ärzte sowie Freizeit- und Sportangebote. Eine gute Anbindung an den öffentlichen Nahverkehr ist durch Buslinien gegeben. Durch die Nähe zur Bundesstraße B210 und zur Autobahn A31 ist auch die regionale und überregionale Erreichbarkeit sehr gut.
Die Bebauung ist geprägt von modernen Einfamilienhäusern, Reihenhäusern und vereinzelten Mehrfamilienhäusern. Die ruhigen Wohnstraßen, zahlreiche Grünflächen und gepflegte Gärten unterstreichen den wohnlichen Charakter des Viertels.
Insgesamt bietet Conrebbersweg eine attraktive Mischung aus städtischem Komfort und ländlicher Ruhe – ideal für Familien, Berufstätige und alle, die in Emden ein angenehmes Wohnumfeld suchen.
Sonstige Angaben
GELDWÄSCHE: Als Immobilienmaklerunternehmen ist die von Poll Immobilien GmbH nach § 2 Abs. 1 Nr. 14 und § 11 Abs. 1, 2 Geldwäschegesetz (GwG) dazu verpflichtet, bei der Begründung einer Geschäftsbeziehung die Identität des Vertragspartners festzustellen und zu überprüfen, bzw. sobald ein ernsthaftes Interesse an der Durchführung des Immobilienkaufvertrages besteht. Hierzu ist es erforderlich, dass wir nach § 11 Abs. 4 GwG die relevanten Daten Ihres Personalausweises festhalten (wenn Sie als natürliche Person handeln) – beispielsweise mittels einer Kopie. Bei einer juristischen Person benötigen wir eine Kopie des Handelsregisterauszugs, aus welchem der wirtschaftlich Berechtigte hervorgeht. Das Geldwäschegesetz sieht vor, dass der Makler die Kopien bzw. Unterlagen fünf Jahre aufbewahren muss. Als unser Vertragspartner haben Sie auch eine Mitwirkungspflicht nach § 11 Abs. 6 GwG.
HAFTUNG: Wir weisen darauf hin, dass die von uns weitergegebenen Objektinformationen, Unterlagen, Pläne etc. vom Verkäufer bzw. Vermieter stammen. Eine Haftung für die Richtigkeit oder Vollständigkeit der Angaben übernehmen wir daher nicht. Es obliegt daher unseren Kunden, die darin enthaltenen Objektinformationen und Angaben auf ihre Richtigkeit hin zu überprüfen. Alle Immobilienangebote sind freibleibend und vorbehaltlich Irrtümer, Zwischenverkauf- und Vermietung oder sonstiger Zwischenverwertung.
UNSER SERVICE FÜR SIE ALS EIGENTÜMER:
Planen Sie den Verkauf oder die Vermietung Ihrer Immobilie, so ist es für Sie wichtig, deren Marktwert zu kennen. Lassen Sie kostenfrei und unverbindlich den aktuellen Wert Ihrer Immobilie professionell durch einen unserer Immobilienspezialisten einschätzen. Unser bundesweites und internationales Netzwerk ermöglicht es uns, Verkäufer bzw. Vermieter und Interessenten bestmöglich zusammenzuführen.
Grundriss
Erdgeschoss
>
>
Obergeschoss
>
>
Adresse
26721 Emden
Interessante Orte
Preis- und Lageinformationen
Preistrend für Bestandsimmobilien in Conrebbersweg