Angeboten wird ein Baugrundstück mit einer Gesamtgröße von ca. 1.430,00 m² und eine bereits vorhandene Projektierung für ein Wohngebäude mit ca. 1.016,06 m² Wohnfläche verteilt auf 17 Wohneinheiten in einem allgemeinen Wohngebiet (WA).
Der Neubaukomplex liegt in einem gut angebundenen Wohngebiet in zentrumsnaher Lage Bremerhavens.
Nochmal das Wichtigste in Kürze:
• Grundstücksfläche: ca. 1.430,00 m²
• Geplante Wohnfläche: ca. 1.016,06 m²
• Allgemeines Wohngebiet (WA)
• Bereits vorhandene Projektierung für 1 Wohngebäude mit 17 Wohneinheiten
• Sofortiger Baustart möglich durch die bestehende Baugenehmigung
• Gute Anbindung an Infrastruktur, Nahversorgung und ÖPNV
• Tiefgarage geplant
• Fahrstuhl geplant
• Option auf das gegenüberliegende Grundstück ebenfalls mit vorhandener Projektierung
Gelegenheit! Projektiertes Baugrundstück für 1 Wohngebäude mit 17 Wohneinheiten & Baugenehmigung
Georg Büchner Straße 14,
27574 Bremerhaven
Auf Karte anzeigen
Finanzierungszertifikat
In nur zwei Minuten zu Ihrem persönlichen Finanzierungszertifkat.
Infos
| Vermarktungsart | Kaufen |
|---|---|
| Grundstücksfläche | 1.430 m2 |
| Erschließung | Erschlossen |
| Grundflächenzahl (GRZ) | 0.4 |
| Geschossflächenzahl (GFZ) | 0.8 |
| Verfügbar ab | sofort |
Kosten
| Miete pro Jahr |
590.000 € |
|---|---|
| Provision |
5,95% inkl. 19% MwSt. des beurkundeten Kaufpreises. |
Finanzierungsrechner:
Kaufpreis:
600.000 €
Eigenkapital:
600.000 €
Monatliche Rate
0 €
Effektiver Jahreszins
0 %
Sollzinsbindung
10 Jahre
Beschreibung des Objekts
Lage
Die Immobilie befindet sich im Bremerhavener Stadtteil Geestemünde einem etablierten und gut angebundenen Wohngebiet in zentrumsnaher Lage. Die Umgebung zeichnet sich durch eine gewachsene Infrastruktur und eine ruhige, aber verkehrsgünstige Anbindung aus.
Der Standort ist hervorragend in das Bremerhavener Nahverkehrsnetz eingebunden: Die Buslinien 506 und 507 verkehren in direkter Nähe und bieten eine schnelle Anbindung an das Stadtzentrum, den Hauptbahnhof sowie angrenzende Stadtteile. Der Bremerhavener Hauptbahnhof ist in wenigen Minuten erreichbar, ebenso wie die Havenwelten, das Krankenhaus Reinkenheide und weitere zentrale Einrichtungen.
Einkaufsmöglichkeiten, Apotheken, Ärzte, Cafés und soziale Einrichtungen befinden sich in unmittelbarer Umgebung und sind bequem zu Fuß erreichbar. Die Lage bietet somit ideale Voraussetzungen für Wohnkonzepte mit Service, betreutes Wohnen oder urbane Mikroapartments – eingebettet in ein lebenswertes, gut erschlossenes Umfeld.
Sonstige Angaben
Gerne stehen wir Ihnen für weitere Auskünfte und für die Vereinbarung eines Besichtigungstermins zur Verfügung.
Objektnummer: 826504
Um Ihre Anfrage schnellstmöglich bearbeiten zu können, bitten wir Sie Ihre vollständigen Kontaktdaten mit anzugeben. Vielen Dank.
HBV-Immobilien haftet nicht und gibt auch keine Gewähr für die Richtigkeit oder Aktualität der Informationen über das Auftragsobjekt, welche vom Auftraggeber oder Dritten zur Verfügung gestellt wurden. Änderungen, Irrtum und Zwischenverkauf vorbehalten.
Mit der Inanspruchnahme unserer Maklerleistungen, einschließlich der Anforderung eines Exposés, schließt der Interessent einen Maklerauftrag mit HBV-Immobilien e.K., Bremer Str. 64, 27749 Delmenhorst. Der Käufer zahlt nach Beurkundung des gewünschten Grundstückskaufvertrags, eine Käuferprovision in Höhe von 5,95% inkl. 19% MwSt. des notariell beurkundeten Kaufpreises.
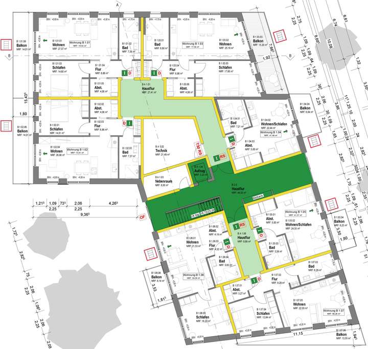
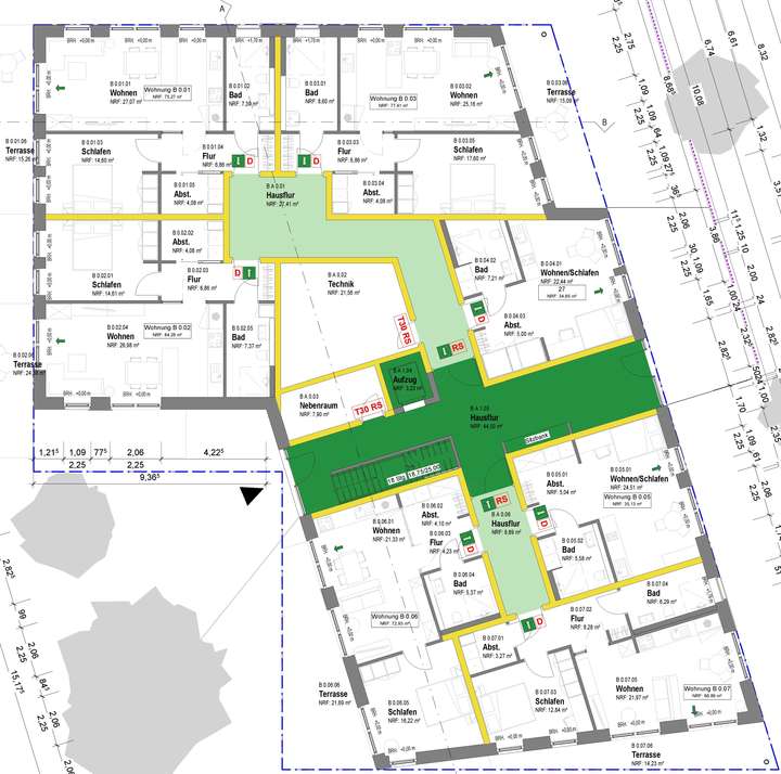
Grundriss
Erdgeschoss - 7 WHG´s
>
>
Obergeschoss - 7 WHG´
>
>
Staffelgeschoss - 3
>
>