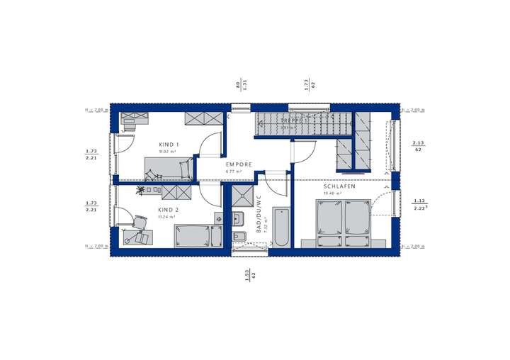
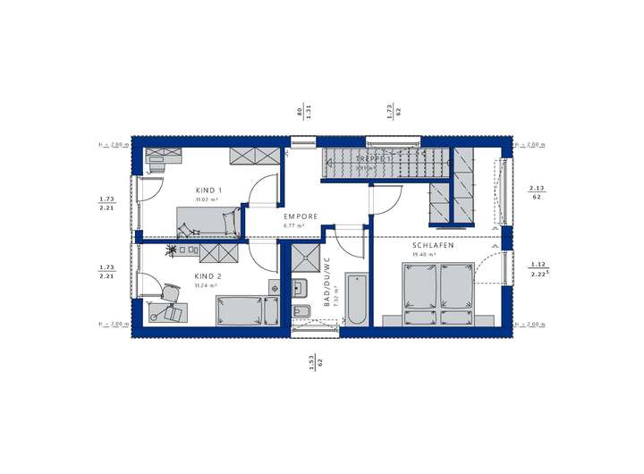
Das projektiert Fertighaus BALANCE 120 ist ein echtes Raumwunder, das speziell für Ihre Bedürfnisse konzipiert wird. Auf einer Wohnfläche von 120 m² entfaltet sich ein durchdachtes Raumkonzept, das mit 4,5 Zimmern, drei Schlafzimmern und einem Badezimmer ideal für eine vierköpfige Familie ist. Die lichtdurchfluteten Räume werden durch großflächige, hausbreite Verglasungen, die sogar über Eck reichen können, optimal in Szene gesetzt. Hier erleben Sie eine harmonische Verbindung von modernem Design und Funktionalität, die das tägliche Leben bereichert und für eine angenehme Wohnatmosphäre sorgt. Mit zwei Etagen bietet das Haus nicht nur ausreichend Platz für Rückzug und Privatsphäre, sondern auch eine durchdachte Aufteilung, die Familienleben und gemeinschaftliche Momente in den Fokus rückt.
Zusätzlich zu den intelligent gestalteten Räumen bietet das BALANCE 120 Annehmlichkeiten, die Ihren Alltag bereichern. Genießen Sie sonnige Tage auf der eigenen Terrasse oder im Garten des 270 m² großen Grundstücks, das Ihnen Raum für Entspannung und Aktivitäten im Freien bietet. Die lichtdurchfluteten Räume schaffen nicht nur eine einladende Atmosphäre, sondern fördern auch das Wohlbefinden und die Kreativität. Ob Spieleabende mit der Familie oder entspannte Stunden auf dem Balkon - hier finden Sie den perfekten Ort, um das Leben zu genießen.
Entscheiden Sie sich für die Ausbaustufe "Schlüsselfertig", um stressfrei Ihr neues Zuhause zu beziehen. Bien-Zenker übernimmt für Sie den kompletten Hausbau samt Innenausbau - vom Fundament bis zur letzten Schraube. So sparen Sie Zeit und Nerven und können sich ganz auf die Vorfreude auf Ihr neues Heim konzentrieren. Sobald alles fertig ist, ziehen Sie einfach ein und genießen die Vorzüge Ihres neuen Lebensraums, ohne sich um die Details kümmern zu müssen.
Grundrisse und Abbildungen können Extras zeigen. Flächenangaben nach DIN 277.
Bien-Zenker - Ihr individuelles Zuhause in Benningen am Neckar
71726 Benningen am Neckar
Die vollständige Adresse der Immobilie erhalten Sie vom Anbieter.
Auf Karte anzeigen
Die vollständige Adresse der Immobilie erhalten Sie vom Anbieter.
Finanzierungszertifikat
In nur zwei Minuten zu Ihrem persönlichen Finanzierungszertifkat.
Infos
| Haustyp | Einfamilienhaus |
|---|---|
| Etagenzahl | 2 |
| Wohnfläche ca. | 120 m2 |
| Grundstücksfläche | 269 m2 |
| Zimmer | 4,5 |
| Schlafzimmer | 3 |
| Badezimmer | 1 |
Kosten
| Kaufpreis |
628.000 € |
|---|---|
| Provision |
4,76% inkl. MwSt. auf das Grundstück Das Grundstück wird in Kommission angeboten bzw. direkt von Dritten verkauft, hierbei wird eine Maklerprovision in Höhe von 4,76% inkl. MwSt. vom Kaufpreis fällig. |
Finanzierungsrechner:
Kaufpreis:
600.000 €
Eigenkapital:
600.000 €
Monatliche Rate
0 €
Effektiver Jahreszins
0 %
Sollzinsbindung
10 Jahre
Bausubstanz & Energieausweis
| Baujahr | unbekannt |
|---|---|
| Bauphase | Haus in Planung (projektiert) |
Beschreibung des Objekts
Lage
Das Grundstück befindet sich in bevorzugter Lage unweit des Neckars mit sehr guter Anbindung an den öffentlichen Nahverkehr.
Die S-Bahn ist fußläufig erreichbar, was die Lage besonders attraktiv für Pendler und Familien macht. Einkaufsmöglichkeiten, Schulen und Freizeiteinrichtungen befinden sich in unmittelbarer Umgebung.
Ruhige und dennoch zentrale Lage.
Sonstige Angaben
Grundrisse und Abbildungen können Extras zeigen.
Preis inkl. Grundstück und inkl. Bodenplatte.
Das Haus kann noch ganz individuell nach Ihren Wünschen gestaltet werden.
Grundriss
4829-254-7-g
>
>
4830-254-8-g
>
>
Adresse
71726 Benningen am Neckar
Interessante Orte
Preis- und Lageinformationen
Preistrend für Bestandsimmobilien in Benningen am Neckar