Dieses moderne Reihenendhaus aus dem Jahr 2019 bietet auf rund 170 m² Wohnfläche ein zeitgemäßes Wohnkonzept, hochwertige Ausstattung und eine ruhige Sackgassenlage. Das gesamte Grundstück umfasst rund 453 m². Es teilt sich auf in ca. 420 m² rund ums Haus und weitere 33 m², die separat liegen und sich perfekt für den Bau einer Garage eignen.
Die Immobilie überzeugt durch klare Strukturen, helle Räume und hochwertige Materialien. Dreifach verglaste Fenster sorgen für ein angenehmes Wohnklima und eine sehr gute Energieeffizienz. Elektrische Rollläden bieten zusätzlichen Komfort und Sicherheit.
Der Wohnbereich ist großzügig gestaltet und lichtdurchflutet. Die hochwertige Einbauküche aus dem Jahr 2020 kann auf Wunsch übernommen werden. Sie ist mit Markengeräten ausgestattet und verfügt über eine massive Granitarbeitsplatte. Der Wert liegt bei rund 20.000 €. Die Küche ist nicht im Kaufpreis enthalten.
Ein modernes Badezimmer mit Wanne und Dusche sowie ein separates Gäste-WC stehen zur Verfügung. Wände und Decken sind glatt verputzt, die Wohnräume mit pflegeleichten Vinylböden ausgestattet. Ein großer Abstellraum sowie ein separater Hauswirtschaftsraum ergänzen das Raumangebot sinnvoll.
Das Energiekonzept besteht aus einer effizienten Wärmepumpe mit Warmwasserspeicher und durchgängiger Fußbodenheizung – ideal für niedrige Betriebskosten und hohen Wohnkomfort.
Der Außenbereich bietet eine Terrasse mit sonniger Südwest-Ausrichtung, einen Garten und ein Gartenhaus. Ein Wintergarten ist bereits genehmigt und kann bei Bedarf angebaut werden – ein attraktives Ausbaupotenzial für zusätzlichen Wohnkomfort.
Ein Stellplatz befindet sich direkt am Haus und kann auf Wunsch in ein Carport umgebaut werden. Zusätzlich gehört ein separater Grundstücksanteil mit ca. 33 m² dazu, der zur Errichtung einer Garage geeignet ist.
Modernes Reihenendhaus – viel Platz, modernes Wohnen & großes Grundstück
40764 Langenfeld (Rheinland)
Die vollständige Adresse der Immobilie erhalten Sie vom Anbieter.
Auf Karte anzeigen
Die vollständige Adresse der Immobilie erhalten Sie vom Anbieter.
Finanzierungszertifikat
In nur zwei Minuten zu Ihrem persönlichen Finanzierungszertifkat.
Infos
| Haustyp | Reiheneckhaus |
|---|---|
| Wohnfläche ca. | 170 m2 |
| Nutzfläche | 30 m2 |
| Grundstücksfläche | 453 m2 |
| Bezugsfrei ab | nach Vereinbarung |
| Zimmer | 5 |
| Schlafzimmer | 4 |
| Badezimmer | 1 |
| Garage/Stellplatz | Außenstellplatz |
| Anzahl Garage/Stellplatz | 1 |
Kosten
| Kaufpreis |
649.900 € |
|---|---|
| Provision |
3,57% inkl. 19% MwSt. |
Finanzierungsrechner:
Kaufpreis:
600.000 €
Eigenkapital:
600.000 €
Monatliche Rate
0 €
Effektiver Jahreszins
0 %
Sollzinsbindung
10 Jahre
Bausubstanz & Energieausweis
| Baujahr | 2019 |
|---|---|
| Objektzustand | Gepflegt |
| Heizungsart | Fußbodenheizung |
| Energieausweis | liegt vor |
| Energieausweistyp | Verbrauchsausweis |
| Energieverbrauchskennwert | 74,5 kWh/(m²*a) |
| Energieeffizienzklasse | B |
74,5
kWh/(m²*a)
Energieeffizienzklasse B
- A+
- A
- B
- C
- D
- E
- F
- G
- H
- 0
- 25
- 50
- 75
- 100
- 125
- 150
- 175
- 200
- 225
- >250
Beschreibung des Objekts
Ausstattung
- Baujahr 2019
- Wohnfläche ca. 170,39 m²
- Grundstück 453 m²
- Reihenendhaus in ruhiger Sackgasse
- Dreifach verglaste Fenster
- Elektrische Rollläden
- Fußbodenheizung mit moderner Wärmepumpe
- Glatt verputzte Wände und Decken
- Vinylboden und Fliesen
- Badezimmer mit Wanne und Dusche
- Gäste-WC
- Großer Abstellraum
- Hauswirtschaftsraum
- Terrasse mit Südwest-Ausrichtung
- Garten + Gartenhaus
- Genehmigter Wintergarten – kann bei Bedarf angebaut werden
- Stellplatz (Carport möglich)
- Hochwertige Einbauküche (2020) optional
Lage
Das charmante Reihenendhaus befindet sich in einer der begehrtesten Wohnlagen von Langenfeld, einer idyllischen Stadt im Herzen Nordrhein-Westfalens. Eingebettet in eine ruhige und familienfreundliche Nachbarschaft, bietet das Haus eine ideale Balance zwischen urbanem Leben und erholsamer Zurückgezogenheit. Die Umgebung zeichnet sich durch gepflegte Grünflächen und eine hervorragende Infrastruktur aus. In unmittelbarer Nähe finden Sie bedeutende Einkaufsmöglichkeiten, Schulen und Freizeitangebote, die das tägliche Leben bereichern. Die ausgezeichnete Anbindung an das öffentliche Verkehrsnetz und die Nähe zu den Autobahnen ermöglichen eine einfache und schnelle Erreichbarkeit der umliegenden Städte wie Düsseldorf und Köln. Dieses Haus ist der perfekte Ort für diejenigen, die nach einem harmonischen Wohnort suchen, der sowohl Ruhe als auch ein pulsierendes Stadtleben bietet.
Sonstige Angaben
Sämtliche Angaben in diesem Exposé sind nach bestem Wissen zusammengestellte Vorabinformationen und bilden den Stand zum Zeitpunkt der Exposé-Erstellung ab. Änderungen bleiben ausdrücklich vorbehalten. Als Rechtsgrundlage gilt allein der notariell abgeschlossene Kaufvertrag. Angaben wie immer ohne Gewähr.
Bei Bedarf können wir Ihnen gerne eine Finanzierung vermitteln.
Ihr Immobilienmakler für Wuppertal, Remscheid und Umgebung. Mit 2 BRÜDER IMMOBILIEN haben Sie einen fairen und zuverlässigen Partner an Ihrer Seite. Egal ob Sie ein Haus verkaufen, eine Wohnung vermieten oder eine Immobilie bewerten lassen möchten.
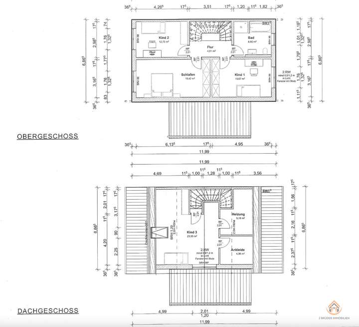
Grundriss
4fcbe78d-44c1-4dfd-9d7e-c1374e
>
>
8536a463-cc43-40c6-9938-d272e3
>
>
Adresse
40764 Langenfeld (Rheinland)
Interessante Orte
Preis- und Lageinformationen
Preistrend für Bestandsimmobilien in Langenfeld (Rheinland)