Willkommen in einem besonderen Zuhause, welches Großzügigkeit, Privatsphäre und Komfort miteinander verbindet. Dieses außergewöhnliche Penthouse erstreckt sich über zwei Etagen und bietet mit ca. 361 m² Wohnfläche ein einmaliges Wohnerlebnis – lichtdurchflutet, intelligent aufgeteilt und mit einem weiten Blick über Hemsbach. Schon beim Betreten spürt man: Hier wurde mit Liebe zum Detail geplant und hochwertig ausgestattet. Gleichzeitig genießen Sie die Vorzüge einer Eigentümergemeinschaft – ganz ohne Verpflichtungen wie Winterdienst oder Straßenreinigung.
Raumaufteilung & Ausstattung im Überblick:
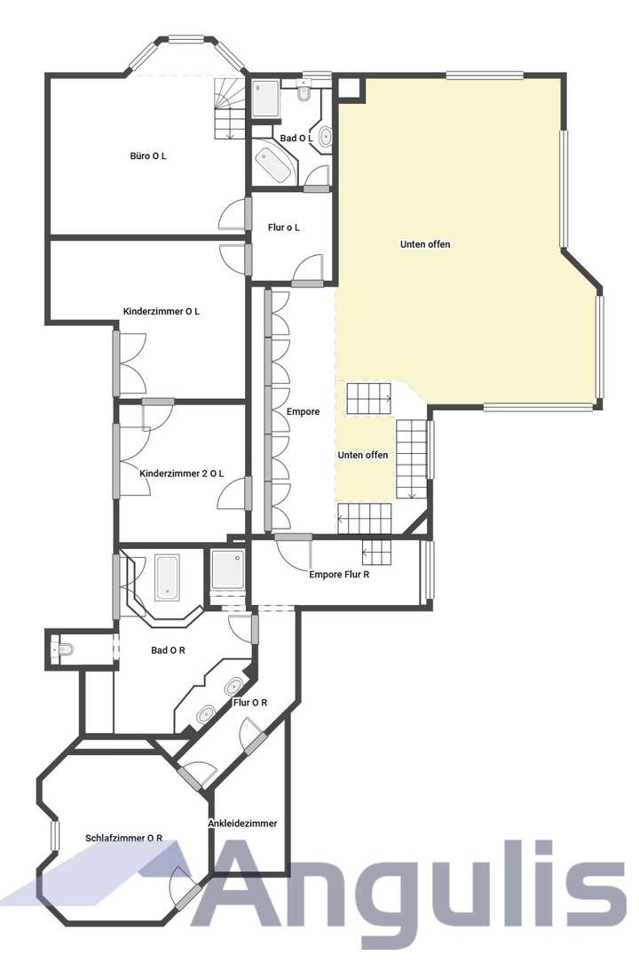
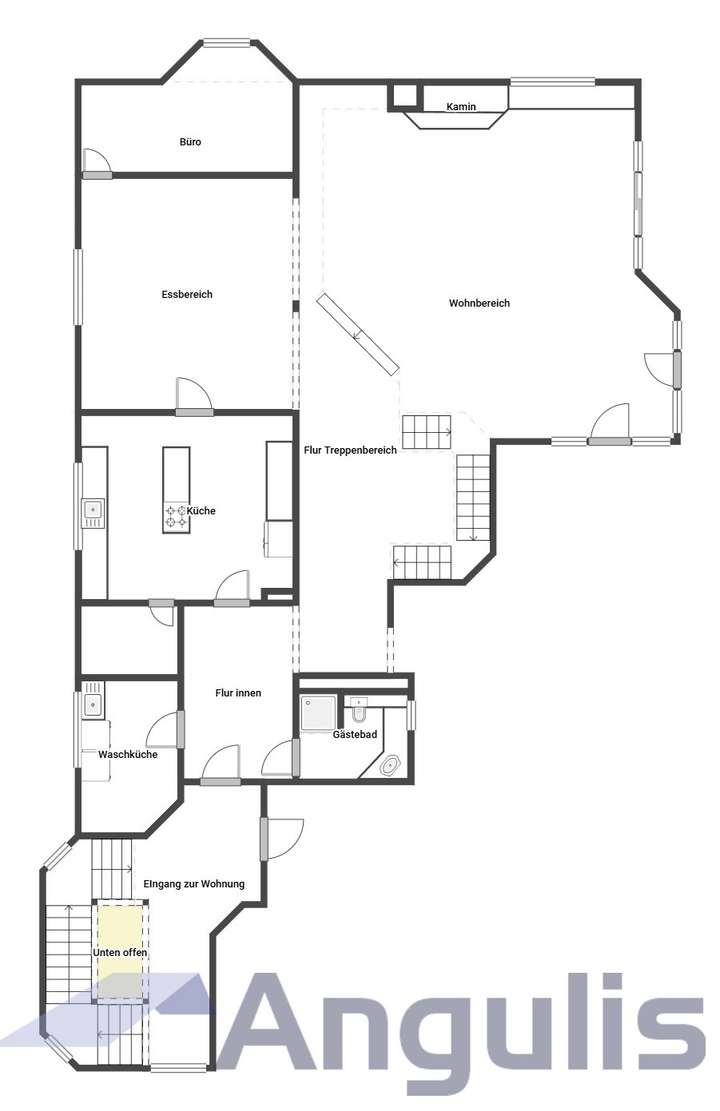
Erste Ebene – Der kommunikative Mittelpunkt:
Großzügiger Eingangsbereich mit abgeschlossener Garderobe
offenes Wohn-/Esszimmer mit ca. 110 m² Fläche und Zugang zur Dachterrasse , hochwertige Küche. Großzügige Terrasse mit Wasserspiel, viel Platz für Lounge, Esstisch und Sonnenliege – ein Ort zum Ankommen und Durchatmen
Hauswirtschaftsraum, Bibliothek, Gäste-WC
Kamin für gemütliche Abende
Zweite Ebene – Privatsphäre und Rückzugsorte:
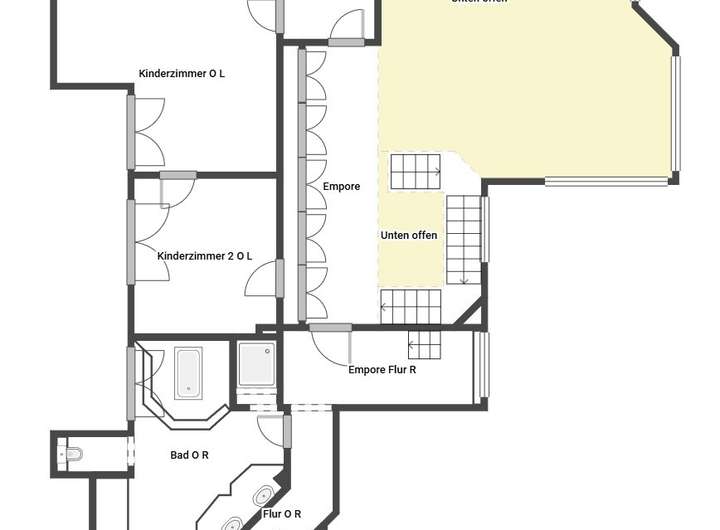
Galerie mit Blick in den Wohnbereich, Deckenhöhe bis 6 m
Elternbereich mit Schlafzimmer, Ankleide, Loggia sowie Masterbad (Whirlpool, Dusche, Doppelwaschtisch)
Kinder-/Gästebereich mit Büro, Gästezimmer, Fernsehzimmer und zweitem Bad mit Wanne & Dusche
Dritte Ebene - Großer Stauraum im Speicher.
Besonderheiten & Entwicklungssituation:
Zum Objekt gehören Sondernutzungsrechte an 2 Tiefgaragenstellplätzen im angrenzenden Neubauprojekt. Dieses ist akt. im Baustopp. Wann die Stellplätze nutzbar sein werden, lässt sich aktuell nicht verlässlich sagen. Diese wurden aus dem Kaufpreis entnommen und werden erst bei Fertigstellung zur Zahlung fällig. (50 TEUR)
Der Weg zum Haus ist im Moment durch das Neubauvorhaben optisch & funktional eingeschränkt . Für Interessenten, die langfristig denken, bietet sich hier dennoch eine wertvolle Ergänzung zur Park- und Erreichbarkeitssituation.
Hausgeld 690,00 Euro + 115,00 Euro Rücklage. Frei ab 12.20
Exklusive Penthousewohnung - ohne Maklerprovision f. Käufer
69502 Hemsbach
Die vollständige Adresse der Immobilie erhalten Sie vom Anbieter.
Auf Karte anzeigen
Die vollständige Adresse der Immobilie erhalten Sie vom Anbieter.
Finanzierungszertifikat
In nur zwei Minuten zu Ihrem persönlichen Finanzierungszertifkat.
Infos
| Wohnungskategorie | Penthouse |
|---|---|
| Wohnfläche ca. | 361 m2 |
| Zimmer | 7 |
| Schlafzimmer | 3 |
| Badezimmer | 3 |
Kosten
| Kaufpreis |
750.000 € |
|---|---|
| Hausgeld |
805 € |
| Provision | Nein |
Finanzierungsrechner:
Kaufpreis:
600.000 €
Eigenkapital:
600.000 €
Monatliche Rate
0 €
Effektiver Jahreszins
0 %
Sollzinsbindung
10 Jahre
Bausubstanz & Energieausweis
| Baujahr | 1990 |
|---|---|
| Objektzustand | Gepflegt |
| Qualität der Austattung | Gehoben |
| Wesentliche Energieträger | Erdgas schwer |
| Energieausweis | liegt vor |
| Energieausweistyp | Bedarfsausweis |
| Energieverbrauchskennwert | 67,0 kWh/(m²*a) |
| Energieeffizienzklasse | A |
67,0
kWh/(m²*a)
Energieeffizienzklasse A
- A+
- A
- B
- C
- D
- E
- F
- G
- H
- 0
- 25
- 50
- 75
- 100
- 125
- 150
- 175
- 200
- 225
- >250
Beschreibung des Objekts
Ausstattung
Fußbodenheizung in allen Räumen
Maßgefertigte Einbauschränke
Carrara-Marmorböden
Elektrische Rollläden und Jalousien
Wäscheabwurf
Zwei abgeschlossene Kellerräume
3 Bäder
Küche
Große Terrasse
Loggia
Lage
Hemsbach – gelegen zwischen Rhein und Odenwald – überzeugt durch seine gute Infrastruktur, ruhige Wohnlagen und Nähe zur Natur. Die Autobahn A5 ist in wenigen Minuten erreichbar, ebenso Städte wie Mannheim, Heidelberg oder Darmstadt.
Kindergärten, Schulen, Einkaufsmöglichkeiten und vielfältige Freizeitangebote wie der Wiesensee oder der Alla-Hopp-Spielplatz machen die Lage besonders familienfreundlich und lebenswert.
Weitere Details: https://www.hemsbach.de/
Sonstige Angaben
Zur Haftung
Wir weisen darauf hin, dass alle von uns weitergegebenen Daten,
Objektdaten, Informationen, Unterlagen, Pläne etc. vom
Verkäufer bzw. Eigentümer stammen. Eine Haftung für die
Richtigkeit oder Vollständigkeit der Angaben übernehmen wir
daher nicht. Es obliegt daher unseren Kunden, die enthaltenen
Daten, Objektdaten, Informationen, Unterlagen, Pläne, auf ihre
Richtigkeit hin zu überprüfen. Alle Immobilienangebote sind
Freibleibend und vorbehaltlich Irrtümer, Zwischenverkauf und
Vermietung oder sonstiger Zwischenverwertung.
Grundriss
3120707 in 3D durch das exklus
>
>
3120707 in 3D durch das exklus
>
>
3120707 in 3D durch das exklus
>
>
Adresse
69502 Hemsbach
Interessante Orte
Preis- und Lageinformationen
Preistrend für Bestandsimmobilien in Hemsbach