Machen Sie Urlaub - jeden Tag - von zu Hause aus!
Dieses sonnige Baugrundstück mit 878 m2 Grundfläche überzeugt mit einer Traumlage über der Nebelgrenze, einem bezaubernden Bergblick auf die Karawanken und mit der Nähe zu Klagenfurt.
Der Kindergarten, die Volksschule, Ärzte und Nahversorger sind im Zentrum von Maria Rain gelegen und mit dem Auto in 4 Minuten erreichbar. Klagenfurt liegt ca. 10 Autominuten entfernt.
Die Widmung lautet auf Bauland Dorfgebiet. Das Grundstück ist voll erschlossen und die Zufahrt erfolgt über eine Gemeindestraße.
Es besteht eine Bauverpflichtung seitens der Gemeinde Maria Rain bis Ende 2027. Die Kaution hierfür von € 15,- pro m2 wird vom Käufer bei der Gemeinde hinterlegt.
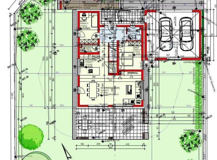
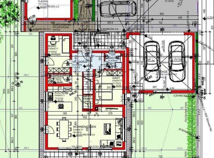
Ein bewilligter Einreichplan für ein zweistöckiges Einfamilienhaus mit ca. 150 m2 Wohnfläche liegt bereits vor (siehe Pläne im Anhang bzw. VISUALISIERUNGEN hier im Exposé) und könnte ohne Zusatzkosten übernommen werden. Die Baubewilligung ist ebenfalls schon ausgestellt. Sie können aber natürlich auch Ihr persönliches Traumhaus umsetzen!
Kaufpreis: € 135.000,-
zzgl. Kaufnebenkosten:
Grunderwerbsteuer: 3,5%
Eintragungsgebühr: 1,1% - entfällt derzeit, staatliche Sonderregelung (lt. öffentlicher Kundmachung)
Kaufvertragserrichtung: ca. 1,5 % netto von der Kaufsumme inkl. Treuhänderabwicklung
Maklerprovision: 3 % der Kaufsumme zzgl. 20 % USt.
Für Ihren geplanten Hausbau:
Wir arbeiten mit einem verlässlichen, heimischen Bau-Firmenpool zusammen und lassen Ihnen gerne ein Angebot für den Bau Ihres neuen Einfamilienhauses erstellen.
Finanzierung:
Gerne vermitteln wir Ihnen auch unseren Finanzierungspartner, der Sie bei der Hausfinanzierung unterstützt.
Für weitere Informationen bzw. Besichtigungen stehen wir jederzeit gerne zur Verfügung. Wir bitten um Verständnis, dass wir Besichtigungen nur mit Angabe Ihrer vollständigen Kontaktdaten vornehmen, da wir dem Abgeber gegenüber nachweisverpflichtet sind.
Alle Angaben lt. Abgeber - Irrtümer vorbehalten.
Anfragen unter:
Mag. Andrea Vranko
Ja-Wohnen Immobilien
Email: [E-Mail-Adresse entfernt]
Tel. [Telefonnummer entfernt]
Wunderschönes Baugrundstück in Maria Rain / Göltschach, Übernahme von Einreichplan und Baubewill
9161 Maria Rain
Die vollständige Adresse der Immobilie erhalten Sie vom Anbieter.
Auf Karte anzeigen
Die vollständige Adresse der Immobilie erhalten Sie vom Anbieter.
Finanzierungszertifikat
In nur zwei Minuten zu Ihrem persönlichen Finanzierungszertifkat.
Infos
| Vermarktungsart | Kaufen |
|---|---|
| Grundstücksfläche | 878 m2 |
Kosten
| Miete pro Jahr |
135.000 € |
|---|---|
| Provision |
3% des Kaufpreises zzgl. 20% USt. |
Finanzierungsrechner:
Kaufpreis:
600.000 €
Eigenkapital:
600.000 €
Monatliche Rate
0 €
Effektiver Jahreszins
0 %
Sollzinsbindung
10 Jahre
Beschreibung des Objekts
Lage
Göltschach in der Gemeinde Maria Rain, absolute Ruhelage, tolle Aussicht zu den Karawanken