Willkommen in Ihrem neuen Zuhause in Bremen-Osterholz, einem besonderen Reihenmittelhaus, das auf ca. 97 m² Wohnfläche einen einzigartigen Mix aus modernem Komfort und gemütlichem, detailverliebtem Holzambiente bietet. Bereits beim Betreten des Hauses spüren Sie die warme und stilvolle Atmosphäre. Wohnzimmer und die neue Küche von 2025 gehen fließend ineinander über und sind mit hochwertigen Einbaugeräten ausgestattet. Liebevoll gearbeitete Holzverkleidungen und durchdachte Details schaffen ein Ambiente, das man sonst nur aus Design-Magazinen kennt.
Vom Wohnzimmer aus gelangen Sie auf die großzügige, ca. 24 m² große Südterrasse, der perfekte Platz für entspannte Stunden mit Familie und Freunden. Von hier führt der Blick in den großen, gepflegten Garten, der reichlich Platz für bietet und mit einem großen Pool ausgestattet ist. Ein Gartenhäuschen ist bereits vorhanden und der Grundstein für eine Outdoor-Küche ist gelegt, ideal für gesellige Sommerabende.
Im zweiten Obergeschoss erwarten Sie zwei gemütliche Schlafzimmer sowie ein modern renoviertes, innenliegendes Bad mit Badewanne. Das Dachgeschoss hält ein weiteres Schlafzimmer bereit sowie einen zusätzlichen Raum, der aktuell als Abstellraum genutzt wird, aber mit Liebe zum Detail zu einem weiteren Kinder- oder Gästezimmer umgestaltet werden kann.
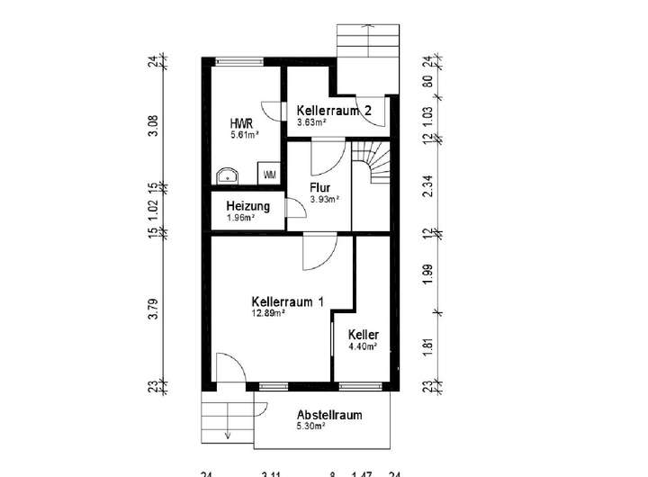
Abgerundet wird das Angebot durch einen Vollkeller, der neben einer Waschküche auch reichlich Abstellfläche bietet.
Dieses Haus ist noch nicht vollständig saniert, bietet Ihnen aber genau dadurch die Möglichkeit, Ihre eigenen Ideen und Vorstellungen einzubringen und ihm den letzten, persönlichen Schliff zu verleihen. Ein Ort mit Charakter, Stil und jeder Menge Platz für Ihre Zukunft.
Gemütlichkeit trifft Modernität: Reihenmittelhaus mit Top-Küche, großem Garten und Pool!
28325 Bremen
Die vollständige Adresse der Immobilie erhalten Sie vom Anbieter.
Auf Karte anzeigen
Die vollständige Adresse der Immobilie erhalten Sie vom Anbieter.
Finanzierungszertifikat
In nur zwei Minuten zu Ihrem persönlichen Finanzierungszertifkat.
Infos
| Haustyp | Reihenmittelhaus |
|---|---|
| Etagenzahl | 3 |
| Wohnfläche ca. | 97 m2 |
| Nutzfläche | 37,61 m2 |
| Grundstücksfläche | 251 m2 |
| Bezugsfrei ab | nach Vereinbarung |
| Zimmer | 4 |
| Schlafzimmer | 3 |
| Badezimmer | 1 |
Kosten
| Kaufpreis |
299.000 € |
|---|---|
| Provision |
3,57 % (inkl. 19 % MwSt.) vom beurkundeten Kaufpreis, jeweils vom Käufer und Verkäufer |
Finanzierungsrechner:
Kaufpreis:
600.000 €
Eigenkapital:
600.000 €
Monatliche Rate
0 €
Effektiver Jahreszins
0 %
Sollzinsbindung
10 Jahre
Bausubstanz & Energieausweis
| Baujahr | 1965 |
|---|---|
| Objektzustand | Modernisiert |
| Heizungsart | Gas-Heizung |
| Wesentliche Energieträger | Gas |
| Energieausweis | liegt vor |
| Energieausweistyp | Bedarfsausweis |
| Energieverbrauchskennwert | 174,2 kWh/(m²*a) |
| Energieeffizienzklasse | F |
174,2
kWh/(m²*a)
Energieeffizienzklasse F
- A+
- A
- B
- C
- D
- E
- F
- G
- H
- 0
- 25
- 50
- 75
- 100
- 125
- 150
- 175
- 200
- 225
- >250
Beschreibung des Objekts
Ausstattung
•Ca. 97 m² Wohnfläche
•großer Pool
•Großzügige Terrasse (ca. 24 m²)
•Großer, gepflegter Garten mit Gartenhäuschen
•Hochwertige Einbauküche
•Detailreiche Holzverkleidungen im Innenbereich
•3–4 Schlafzimmer möglich
•Modernes, renoviertes Bad mit Badewanne
•Vollkeller mit Waschküche
•Viel Potenzial zur individuellen Fertigstellung
Lage
Die Immobilie befindet sich in ruhiger Sackgassenlage und familienfreundlicher Wohngegend im beliebten Stadtteil Bremen-Osterholz. Einkaufsmöglichkeiten, Schulen und Kindergärten sind in der näheren Umgebung gut erreichbar und sorgen für eine komfortable Nahversorgung.
Die Anbindung an den öffentlichen Nahverkehr ist ausgezeichnet. Nur wenige Gehminuten entfernt liegen die Haltestellen mehrerer Buslinien, darunter die Linien 25, die weitere Stadtteile und wichtige Knotenpunkte anfahren.
Diese guten Verkehrsanbindungen ermöglichen eine schnelle und bequeme Erreichbarkeit von Arbeitsplatz, Freizeitangeboten und Einkaufsmöglichkeiten wie z.B den Weserpark, ideal für Berufspendler und Familien gleichermaßen.
Rund um die Immobilie finden sich außerdem zahlreiche Grünflächen und Parks, die vielfältige Möglichkeiten zur Erholung und Freizeitgestaltung bieten. Die Kombination aus ruhigem Wohnumfeld und urbaner Anbindung macht die Lage besonders attraktiv.
Sonstige Angaben
Die aktuelle Grundsteuer beträgt: ca. 346,60 € p. a.
Unsere Objektangaben basieren auf den uns erteilten Informationen. Eine Haftung für die Richtigkeit und Vollständigkeit können wir deshalb nicht übernehmen.
Adresse
28325 Bremen
Interessante Orte
Preis- und Lageinformationen
Preistrend für Bestandsimmobilien in Ellenerbrok-Schevemoor