Die Einheit ist mit 3 (auf Wunsch 4 Zimmern) einem
großzügigen Bad + Gäste-WC und Hauswirtschaftsraum ausgestattet, welche Komfort und Entspannung versprechen. Zusätzlich bietet die Einheit eine Terrasse inkl. einem eigenem 70m² großen Garten. Sie müssen sich keine Sorgen um die Parkplatzsuche machen, diese Wohnung bietet 2 eigene Parkplätze.
Im Hauswirtschaftsraum ist ein eigener Waschmaschinenanschluss geplant.Zusätzlich befindet sich ein weiterer eigener abschließbarer Abstellraum im Keller.
Die optimale Ausrichtung der Einheit bietet ausreichend Belichtung. Alle Etagen können zudem über einen Aufzug erreicht werden.
Glasfaser-Anschluss und Lademöglichkeiten für E-Bikes sind ebenfalls vorhanden.
Für den Bedarf an Lademöglichkeiten für E-Autos ist mit der Vorbereitung für einen nachträglichen Einbau von Wallboxen gesorgt.
Im Objekt befinden sich insgesamt 6 Wohneinheiten.
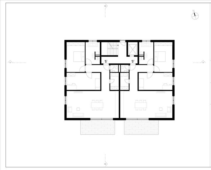
Alle Angaben, Zeichnungen, Grundrisse, Maße, Flächen und Bilder in diesem Exposé dienen ausschließlich der unverbindlichen Information. Eine Haftung für Irrtümer, Auslassungen oder Übermittlungsfehler ist ausgeschlossen.
*NEUBAU* 3-4 Zimmer Erdgeschosswohnung inkl. Terrasse + Garten + Aufzug + 2 Stellplätze + Keller
65462 Ginsheim-Gustavsburg
Die vollständige Adresse der Immobilie erhalten Sie vom Anbieter.
Auf Karte anzeigen
Die vollständige Adresse der Immobilie erhalten Sie vom Anbieter.
Finanzierungszertifikat
In nur zwei Minuten zu Ihrem persönlichen Finanzierungszertifkat.
Infos
| Wohnungskategorie | Erdgeschosswohnung |
|---|---|
| Etage | 0 von 3 |
| Wohnfläche ca. | 110 m2 |
| Nutzfläche | 14,5 m2 |
| Zimmer | 3 |
| Schlafzimmer | 2 |
| Badezimmer | 1 |
| Garage/Stellplatz | Außenstellplatz |
| Anzahl Garage/Stellplatz | 2 |
Kosten
| Kaufpreis |
600.000 € |
|---|---|
| Provision | Nein |
Finanzierungsrechner:
Kaufpreis:
600.000 €
Eigenkapital:
600.000 €
Monatliche Rate
0 €
Effektiver Jahreszins
0 %
Sollzinsbindung
10 Jahre
Bausubstanz & Energieausweis
| Baujahr | 2026 |
|---|---|
| Objektzustand | Erstbezug |
| Qualität der Austattung | Gehoben |
| Heizungsart | Wärmepumpe |
| Energieausweis | liegt zur Besichtigung vor |
Beschreibung des Objekts
Lage
Das Objekt befindet sich in zentraler Lage von Gustavsburg – unmittelbar in der Nähe von diversen Einkaufsmöglichkeiten wie Rewe und Co. Durch die hervorragende Verkehrsanbindung erreicht man Mainz, Wiesbaden und Frankfurt in kürzester Zeit – ideal für Pendler, die die ruhige Wohnlage schätzen und dennoch schnell in der Stadt sein möchten.
Grundriss
Grundriss WE 1
>
>
Adresse
65462 Ginsheim-Gustavsburg
Interessante Orte
Preis- und Lageinformationen
Preistrend für Bestandsimmobilien in Ginsheim-Gustavsburg