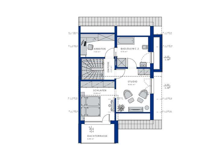
Dass auch auf kleineren Grundstücken große Wohnträume verwirklicht werden können, beweist dieses Doppelhaus. Der Basisbaukörper kommt mit einer Grundfläche von gerade einmal 10 m x 7,40 m aus, bietet im Innern aber eine großzügige Wohnwelt auf drei Ebenen. Für willkommene Platzgewinne sorgen die verschiedenen Architektur-Bauteile: Auf der Eingangsseite schließt sich ein zweigeschossiger Erker mit Flachdach an. Auf der Gartenseite wird das Fertighaus von einem ebenfalls zweigeschossigen Wintergarten-Erker mit Balkon erweitert, über dem ein Zwerchgiebel thront. Sein Flachdach bildet einen spannenden Kontrast zum klassischen Satteldach. In den Winkel zwischen Erker und Haupthaus schmiegt sich ein zweiter Balkon. So hat jede Ebene ihren eigenen Freisitz. Ergänzt wird das Architektur-Konzept von formschönen Fensterpartien, die im Innern ein luftig-leichtes Ambiente schaffen. Betreten wird das Haus über einen Windfang mit angrenzendem Gäste-WC. Über einen offenen Durchgang gelangt man in einen Flur, der zu den weitläufigen Gemeinschaftsräumen führt. Sehr praktisch: Die Küche besitzt einen eigenen Zugang zum Flur. Dadurch lassen sich Wochenendeinkäufe auf direktem Weg zu den Küchenschränken bringen. Als funktionaler Raumteiler und gleichzeitig als Blickfang könnte eine moderne Kochinsel mit Theke fungieren. Der Freiraum vor den bodentiefen Fenstern ist wie geschaffen für einen langen Esstisch, der nicht nur zum gemeinsamen Essen, sondern auch zu geselligen Spieleabenden einlädt. Der Wintergarten-Erker bietet sich für einen Relaxsessel an, von dem man den Blick über die Terrasse und den angrenzenden Garten schweifen lassen kann. Komplettiert wird das Raumprogramm auf der unteren Ebene durch eine kleine Abstellkammer und einen Technikraum. Eine Etage höher befindet sich das Reich der Kinder. Die drei Schlafzimmer eröffnen einen großen Gestaltungsfreiraum: Für jedes Alter lässt sich die passende Wohlfühlumgebung schaffen. Ein Bad mit Wanne und Dusche macht das Wohnglück perfekt. Das Dachgeschoss ist den Eltern vorbehalten. Die Fläche teilen sich ein helles Schlafzimmer, ein flexibel nutzbares Studio, ein Wellnessbad und ein Arbeitszimmer.
2 x DHH im Ortszentrum Hechendorf am Pilsensee
82229 Seefeld
Die vollständige Adresse der Immobilie erhalten Sie vom Anbieter.
Auf Karte anzeigen
Die vollständige Adresse der Immobilie erhalten Sie vom Anbieter.
Finanzierungszertifikat
In nur zwei Minuten zu Ihrem persönlichen Finanzierungszertifkat.
Infos
| Haustyp | Doppelhaushaelfte |
|---|---|
| Wohnfläche ca. | 193 m2 |
| Grundstücksfläche | 475 m2 |
| Zimmer | 7 |
Kosten
| Kaufpreis |
1.271.000 € |
|---|
Finanzierungsrechner:
Kaufpreis:
600.000 €
Eigenkapital:
600.000 €
Monatliche Rate
0 €
Effektiver Jahreszins
0 %
Sollzinsbindung
10 Jahre
Bausubstanz & Energieausweis
| Baujahr | unbekannt |
|---|
Beschreibung des Objekts
Ausstattung
Haus in KFW40 Plus inkl. PV und Speicher inkl. ausgebauten Vollkeller.
Lage
Hechendorf ist ein Ortsteil der Gemeinde Seefeld im bayerischen Landkreis Starnberg am Westufer des Pilsensees
. Der Ort ist bekannt für seine idyllische Lage, Freizeitmöglichkeiten am See und gute Anbindung an München über die S-Bahnlinie S8. Hechendorf bietet eine Mischung aus ländlichem Charme und guter Infrastruktur mit Schulen, Kindergärten und Einkaufsmöglichkeiten.
Lage und Geographie
Am Pilsensee: Hechendorf liegt am westlichen Ufer des Pilsensees, der ein Teil des Fünf-Seen-Gebiets ist.
Landkreis Starnberg: Der Ort gehört zur Großgemeinde Seefeld im oberbayerischen Landkreis Starnberg.
Umgebung: Das Schloss Seefeld und das Kloster Andechs befinden sich in der Nähe.
Infrastruktur und Verkehrsanbindung
Öffentlicher Nahverkehr: Der Ort hat eine S-Bahn-Station (Seefeld-Hechendorf), die von der Linie S8 bedient wird und eine direkte Verbindung nach München sowie zum Flughafen bietet.
Auto: Die Autobahn A96 ist in ca. 8,5 km Entfernung erreichbar.
Infrastruktur: Hechendorf verfügt über eine gute Infrastruktur mit Schulen, Kindergärten und Geschäften des täglichen Bedarfs.
Freizeit und Erholung
Wassersport: Der Pilsensee bietet zahlreiche Freizeitmöglichkeiten wie Schwimmen, Segeln oder Stand-Up-Paddling.
Natur: Die Umgebung lädt zu Spaziergängen und Fahrradtouren ein.
Kultur: In der Nähe befinden sich das Schloss Seefeld und das Kloster Andechs.
Beschreibung
Charakter: Der Ort wird als ruhige und attraktive Wohngegend mit einem hohen Freizeitwert beschrieben.
Ortskern: Der historische Ortskern mit der Pfarrkirche St. Michael und der Dorfwirtschaft "Alter Wirt" versprüht einen besonderen Charme.
Familienfreundlichkeit: Dank der Schulen und Kindergärten im Ort ist Hechendorf auch für junge Familien attraktiv
Sonstige Angaben
Das Haus ist eine exemplarische Projektierung und kann auf Wunsch als Haustyp geändert werden. Es sind zwei Baupartner notwendig.
Adresse
82229 Seefeld
Interessante Orte
Preis- und Lageinformationen
Preistrend für Bestandsimmobilien in Seefeld