Das CLOU 155 ist Sinnbild für klassische Satteldacharchitektur in Verbindung mit trendigen Flachdachkomponenten. Die wichtigsten Räume des täglichen Lebens sind zu einer offenen Einheit zusammengefasst und gemeinsam zur Gartenseite hin ausgerichtet. Der "Livingspace-Plus", mit großzügig dimensionierten Glaselementen, sorgt hier für ein lebendiges Flair und liefert reichlich Tageslicht. Ein ebenso interessantes Stilelement ist das "Panoramafenster", welches als hausinterner Kräutergarten von Nutzen ist.
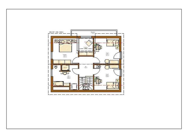
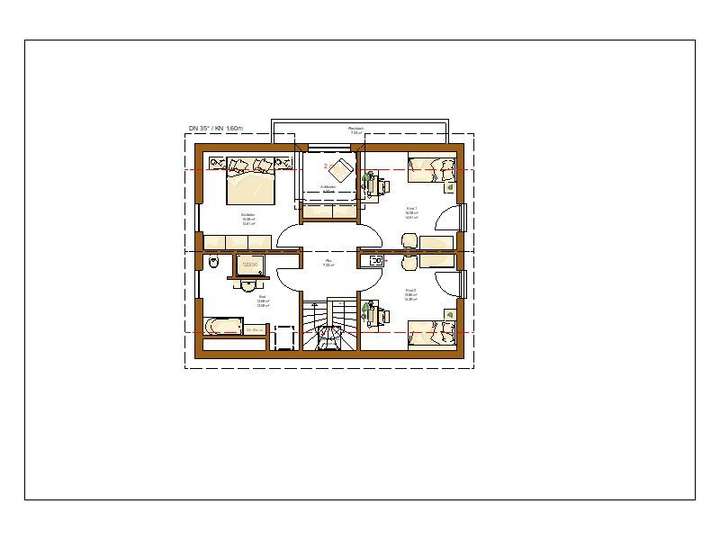
Unter dem Dach, mit 1,60 m hohem Kniestock, komplettiert sich das Raumprogramm. Hier befindet sich das wunderschöne Familienbad, die beiden gleich großen Kinderzimmer und das Elternschlafzimmer mit Ankleidebereich.
Traumhaus mit Ausblick + QNG-Förderung!
74749 Rosenberg
Die vollständige Adresse der Immobilie erhalten Sie vom Anbieter.
Auf Karte anzeigen
Die vollständige Adresse der Immobilie erhalten Sie vom Anbieter.
Finanzierungszertifikat
In nur zwei Minuten zu Ihrem persönlichen Finanzierungszertifkat.
Infos
| Haustyp | Einfamilienhaus |
|---|---|
| Wohnfläche ca. | 163 m2 |
| Grundstücksfläche | 658 m2 |
| Bezugsfrei ab | 2025 |
| Zimmer | 7 |
Kosten
| Kaufpreis |
462.000 € |
|---|---|
| Provision | Nein |
Finanzierungsrechner:
Kaufpreis:
600.000 €
Eigenkapital:
600.000 €
Monatliche Rate
0 €
Effektiver Jahreszins
0 %
Sollzinsbindung
10 Jahre
Bausubstanz & Energieausweis
| Baujahr | unbekannt |
|---|---|
| Bauphase | Haus in Planung (projektiert) |
Beschreibung des Objekts
Ausstattung
SCHLÜSSELFERTIG: Bezugsfertige Ausstattung "Made in Germany"
-inkl. Baugrundstück
-inkl. Lieferung in 12 Monaten möglich
-inkl. Neubauförderung QNG 150.000 EUR, mit Kindern bis zu 270.000 EUR und mit Einliegerwohnung bis 420.000 EUR
-inkl. Fundamentplatte
-inkl. 52 m² PV-Anlage und 7,68 kWh Batterie-Speicher
-inkl. diffusionsoffene Konstruktion ohne Styropor bei Außenwand und Dach
-inkl. zentraler Frischluft-Wärmetechnik mit Wärmerückgewinnung
-inkl. sommerlichem Hitzeschutz für 11 Stunden
-inkl. zimmermannsmäßigem Pfettendach
-inkl. Sechs-Kammer-System-Fenster und elektrischen Rollläden
-inkl. Innenwände mit zweilagiger Beplankung für schwere Gegenstände (z.B. Küchenschränke)
-inkl. umfangreicher Elektroausstattung
-inkl. Massiv-Vollholz-Treppe
-inkl. Holz-Haustüre mit 5-fach Sicherheitsverriegelung, Alu- bzw. Edelstahl-Schutzgarnitur
-inkl. Schneelastzone 1,5 KN/m²
-inkl. Innenfensterbänke aus Marmor oder Naturstein, Außenfensterbank aus Granit
-inkl. kompletter Elektro-, Sanitär- und Heizungs-Installation
-inkl. Sanitär-Objekte nur von Markenherstellern
-inkl. Fliesen in Bädern und WCs
-inkl. modernem Bad mit Badewanne und Dusche
-inkl. hochwertigem Innentüren
-inkl. hochwertigem Laminat
-inkl. Spachtel- und Malerarbeiten im Q2 Standard
-inkl. Bau- und Leistungsbeschreibung Rensch-Haus Concept
-inkl. 12 monatigem Festpreis
-inkl. Produktion in Deutschland
-inkl. Statik Werksplanung, Energiebedarfsrechnung, Lieferung, Baustelleneinrichtung, Kran, Bauleitung, QDF-Qualitätsrichtlinien und 30 Jahre Gewährleistung auf die tragende Grundkonstruktion, 48 Stunden Kundendienstservice bei Gewährleistung nach BGB
Lage
Haben Sie bitte Verständnis dafür, dass wir erst nach dem persönlichen Gespräch weitere Details zu dem angebotenen Grundstück bekannt geben und nur vollständige Anfragen beantwortet werden können. G84
Ich habe Ihr Interesse geweckt?
Dann vereinbaren Sie einen kostenlosen VIDEOKONFERENZ-Beratungstermin.
Ihr Ansprechpartner für dieses Angebot:
Heiko Göpfert 0157 30 30 60 53
Gerne auch per WhatsApp
oder E-Mail:
H.Goepfert@Rensch-Haus.com
Sonstige Angaben
In der Planungsphase dürfen Sie Ihren zusätzlichen Wünschen und Bedürfnissen freien Lauf lassen. Gerne machen wir Ihnen für Anbauten, Erker, Balkone, Kamine, Garagen, Carports, Keller, Küchen, Sauna, etc. ein Angebot.
Inklusive Beratung der Förderungen (QNG ab 20.02.24).
Gerne plane ich Ihnen auch ein komplett anderes Architekten-Haus.
GELD SPAREN: Wenn Sie handwerklich begabt sind und die Zeit dazu haben, können Sie durch weitere Übernahmen von Gewerken Geld sparen.
Sprechen Sie mich an, und ich reduziere Ihnen den Preis.
Zum Grundstückspreis sind folgende Erwerbsnebenkosten noch zu berücksichtigen:
5% Grunderwerbsteuer, 2% Notar/Grundbucheintragungen sowie eventuelle Fremdmaklerkosten.
Sämtliche Baunebenkosten wurden nicht berücksichtigt, da diese erst mit dem geologischen Gutachten ermittelt werden können. Bitte berechnen Sie diese Kosten mit mindestens 10% der Bausumme. Je nach geologischem Gutachten können sich die Kosten auch erhöhen, z.B. Druckwasser-Untergrund.
Wir sind stets bemüht, mit großer Sorgfalt tätig zu werden, bitten jedoch um Verständnis, dass wir für die Angaben nicht haften können, da z.B. das Grundstück von einem anderen Anbieter angeboten wird. Das Exposé wurde sorgfältig vorbereitet und die Angaben sowie Plankopien erfolgen ohne Gewähr. Eine Haftung für Richtigkeit und Vollständigkeit kann nicht übernommen werden. Fotos können aufpreispflichtige Ausstattungen enthalten.
Ansprechpartner
Ich habe Ihr Interesse geweckt?
Dann vereinbaren Sie einen kostenlosen VIDEOKONFERENZ-Beratungstermin.
Ihr Ansprechpartner für dieses Angebot:
Heiko Göpfert 0157 30 30 60 53
Gerne auch per WhatsApp
Grundriss
Grundriss
>
>
Grundriss
>
>
Adresse
74749 Rosenberg
Interessante Orte
Preis- und Lageinformationen
Preistrend für Bestandsimmobilien in Rosenberg