Objektnr: 1069555
Aktuell wird das Objekt als 2-Familienhaus genutzt. Es besteht auch die Möglichkeit das Dachgeschoss als separate Wohneinheit zu nutzen (Küchen- und Badanschlüsse vorhanden).
Weiteres Ausbaupotential bietet die große Scheune.
Das Objekt wurde innen in den letzten Jahren liebevoll vom Eigentümer saniert und renoviert.
Die meisten Fenster wurden inzwischen ausgetauscht und 2023 wurden 7 Solarpanele angebracht.
Eine Fassadendämmung gibt es bisher nicht.
Verteilt auf 2 Etagen und eine Wohnfläche von rund 174 m² finden Sie insgesamt 9 Zimmer vor, darunter 6 Schlafzimmer, 2 Küchen sowie 2 Badezimmer mit Dusche. Im Dachgeschoss liegen bereits die Anschlüsse für ein 3 Badezimmer + 3 Küche.
Darüber hinaus können Sie dank des ca. 323 m² großen Grundstücks sowie des überdachten Balkons Regeneration an der frischen Luft genießen. Der Garten mit Terrasse bietet eine gemütliche und intime Atmosphäre voller Momente der Entspannung. Zusätzlichen Stauraum bietet die große Scheune und ein Gewölbekeller. Abschließend sorgen auf dem Grundstück 2 Garagen (Scheune), 1 Carportstellplatz und mehrere Freistellplätze für eine entspannte Parksituation.
Wohnhaus (2-3 Wohneinheiten) mit großer Scheune (Ausbaupotential) und kleinem Garten
72160 Horb am Neckar
Die vollständige Adresse der Immobilie erhalten Sie vom Anbieter.
Auf Karte anzeigen
Die vollständige Adresse der Immobilie erhalten Sie vom Anbieter.
Finanzierungszertifikat
In nur zwei Minuten zu Ihrem persönlichen Finanzierungszertifkat.
Infos
| Haustyp | Einfamilienhaus |
|---|---|
| Etagenzahl | 2 |
| Wohnfläche ca. | 174 m2 |
| Grundstücksfläche | 323 m2 |
| Bezugsfrei ab | ab sofort |
| Zimmer | 9 |
| Schlafzimmer | 6 |
| Badezimmer | 2 |
| Anzahl Garage/Stellplatz | 6 |
Kosten
| Kaufpreis |
275.000 € |
|---|---|
| Provision |
3,57 % Die Provision i.H.v. 3,57 % inkl. MwSt. ist mit Kaufvertragsbeurkundung fällig, sofern der Verkaufspreis über 83.000,00 € liegt. Liegt der Verkaufspreis dagegen bei/unter 83.000,00 €, ist die fest vereinbarte Mindestprovision i.H.v. mind. 5.950,00 € inkl. MwSt. mit Kaufvertragsbeurkundung fällig. Die Mindestprovision fällt insg. nur einmal an, wodurch Verkäufer und Käufer die Mindestprovision dann jeweils mit 2.975,00 € inkl. MwSt. tragen. |
Finanzierungsrechner:
Kaufpreis:
600.000 €
Eigenkapital:
600.000 €
Monatliche Rate
0 €
Effektiver Jahreszins
0 %
Sollzinsbindung
10 Jahre
Bausubstanz & Energieausweis
| Baujahr | 1920 |
|---|---|
| Bauphase | Haus fertig gestellt |
| Objektzustand | Renovierungsbedürftig |
| Heizungsart | Zentralheizung |
| Wesentliche Energieträger | Solarheizung, Öl |
| Energieausweis | liegt vor |
| Energieausweistyp | Bedarfsausweis |
| Energieverbrauchskennwert | 223,9 kWh/(m²*a) |
| Energieeffizienzklasse | G |
223,9
kWh/(m²*a)
Energieeffizienzklasse G
- A+
- A
- B
- C
- D
- E
- F
- G
- H
- 0
- 25
- 50
- 75
- 100
- 125
- 150
- 175
- 200
- 225
- >250
Beschreibung des Objekts
Ausstattung
+ Im ruhigen und beliebten Teilort Grünmettstetten, zum Vermieten oder zur privaten Verwendung
+ Entspannung im Freien: Der kleine Garten auf ca. 323 m² Grund lädt zum Verweilen ein - eine Terrasse und ein Balkon bereichern das Erlebnis
+ Ausbaupotential (3. Wohneinheit im Dachgeschoss und weiteres Potential Scheune)
+ zahlreiche Parkmöglichkeiten
Lage
Lage: Attraktive Lage mit besten Voraussetzungen für Selbstnutzer oder Anleger
Bildung und Betreuung: Mehreren Kindergärten und einigen Schulen in ca. 6 km bis ca. 9 km Entfernung bieten Familienfreundlichkeit
Nahversorgung: Verschiedene Anlaufstellen wie Supermarkt, Apotheke, Postfiliale und Bankfiliale in max. 6 km
Anbindung: Bushaltestelle, Bahnhof und Autobahn gut erreichbar
Sonstige Angaben
Vereinbaren Sie noch heute einen Besichtigungstermin!
_____________________________________________________
Alle Angaben sind ohne Gewähr und basieren ausschließlich auf Informationen, die uns von unserem Auftraggeber zur Verfügung gestellt wurden. Wir übernehmen keine Gewähr für die Vollständigkeit, Richtigkeit und Aktualität der Angaben.
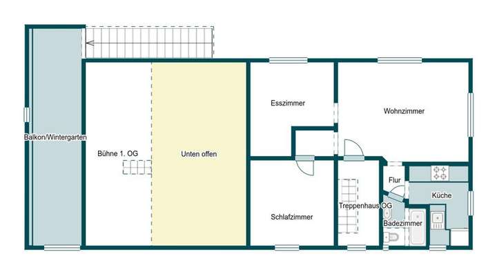
Grundriss
Grundriss Skizze EG
>
>
Grundriss Skizze 1. OG
>
>
Grundriss Skizze 2. OG
>
>
Grundriss Skizze UG
>
>
Adresse
72160 Horb am Neckar
Interessante Orte
Preis- und Lageinformationen
Preistrend für Bestandsimmobilien in Horb am Neckar