Dieses außergewöhnliche Anwesen, ursprünglich im Jahr 1910 nach den Plänen des renommierten Architekten Albert Friedrich Speer erbaut und einst als Forstamt genutzt, wurde 2005 mit viel Liebe zum Detail in ein großzügiges Wohnhaus umgebaut. Das sogenannte „Hommels Schlösschen“ vereint historische Substanz, handwerkliche Qualität und moderne Ausstattung auf eindrucksvolle Weise.
Das Wohnhaus umfasst rund 368 m² Wohnfläche und steht auf einem parkähnlichen Grundstück von 8.553 m² mit gepflegten Rasenflächen, einem Fischteich und einem natürlichen Schwimmteich mit Natursteinmauer. Hinzu kommen eine Scheune, ein Einzelcarport , ein großzügiges Carport mit 3 Stellplätzen , weitere Außenstellplätze mit E-Ladestation, ein Gewächshaus sowie ein Gartenhaus mit Gasheizung.
Nach der Umwandlung zum Wohnhaus im Jahr 2005 wurde das Anwesen kontinuierlich und hochwertig modernisiert:
2005: Aufwendige Restaurierung der historischen Holzverkleidungen, Türen und Dielenböden (geschliffen, lackiert, aufgearbeitet). Kompletterneuerung der Elektroinstallation inkl. Smart-Home, aller Heizungs- und Wasserleitungen, Installation einer neuen und hochwertigen Einbauküche, eines modernen Badezimmers sowie der Einbau eines Specksteinofens im Wohn-Ess-Bereich und eines Pelletofens.
2006: Errichtung eines Carports am Nebengebäude sowie einer gemauerten Grillstelle mit Sitzbereich.
2008: Einbau einer Ölzentralheizung mit 15.000-Liter-Tank.
2011: Bau des Gartenhauses (Lugarde) auf Fundament mit Gasheizung – ideal als Atelier, Hobbyraum oder Gästehaus.
2012: Neubau der Außensauna im OG mit Edelstahlgeländer und herrlichem Ausblick sowie vollständige Erneuerung des Wintergartens im EG.
2013: Errichtung eines Gewächshauses für Pflanzenliebhaber und Selbstversorger.
2014–2015: Austausch sämtlicher Außentüren, Anlage des Natur-Schwimmteichs mit Natursteinmauer, sowie Gestaltung der Terrassen mit Steinteppich und Natursteinverkleidung.
2015: Installation einer Alarmanlage.
2016: Errichtung eines Carports mit 3 Stellplätzen.
2017–2020: Komplette Neugestaltung des Hofbereichs
2018–2019: Austausch aller Fenster gegen moderne, zweifach verglaste Elemente.
2020: Neues Vordach über dem Eingangsbereich.
2021: Elektrisches Hoftor mit Steinpfosten und neue LED-Außenbeleuchtung für eine stimmungsvolle und sichere Einfahrt.
Diese laufenden Investitionen machen das Gebäude heute zu einem hochwertigen Wohnsitz, der seinen historischen Charakter bewahrt hat.
Das Haus erstreckt sich über drei Etagen und besticht durch seine handwerklich aufwendigen Details: Natursteinschieferböden, Parkett, Holztreppen und hohe Decken schaffen ein besonderes Wohngefühl.
Im Erdgeschoss erwarten Sie ein großzügiger Wohn- und Essbereich mit Specksteinofen und Zugang zum Wintergarten, der mit seinem Blick über die Hunsrücklandschaft begeistert. Die Küche mit angrenzender Speisekammer bietet viel Platz und Charme – Schieferfliesen und Holzdetails betonen die Verbindung von Tradition und Moderne. Ergänzt wird das Erdgeschoss durch ein Gästezimmer, ein Hauswirtschaftsraum sowie ein Gäste-WC.
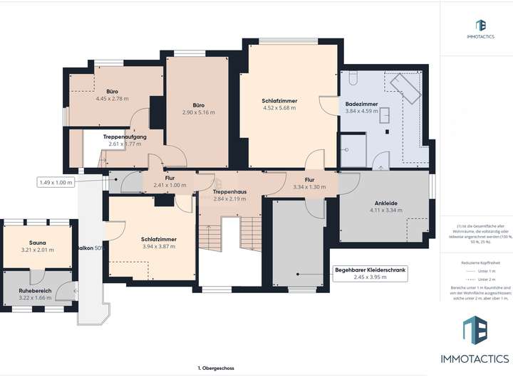
Das Obergeschoss dient als privater Rückzugsort mit einem großen Schlafzimmer, einer Ankleide und direktem Zugang zum stilvollen Badezimmer. Vier weitere Zimmer bieten sich als Kinderzimmer, Gästebereich oder Homeoffice an. Der Saunabereich mit Ruheraum und Balkon machen diese Etage zu einem persönlichen Wohlfühlrefugium – mit Panoramablick über die Natur.
Im Dachgeschoss befinden sich 3 weitere Zimmer, ebenfalls flexibel nutzbar als Gäste-, Fitness-, oder Arbeitsräume sowie ein praktischer Abstellraum.
Der Keller bietet viel Stauraum, eine Waschküche und zusätzliche Allzweckräume.
Das Anwesen liegt abgeschieden und alleinstehend – ein Paradies für alle, die Ruhe, Natur und Privatsphäre suchen.
Das weitläufige Grundstück mit Teichen, Gartenhaus und Terrassen lädt zum Entspannen, Gärtnern ode
Historisches Anwesen mit modernem Wohnkomfort und unvergleichlicher Alleinlage im Hunsrück
55758 Kempfeld
Die vollständige Adresse der Immobilie erhalten Sie vom Anbieter.
Auf Karte anzeigen
Die vollständige Adresse der Immobilie erhalten Sie vom Anbieter.
Finanzierungszertifikat
In nur zwei Minuten zu Ihrem persönlichen Finanzierungszertifkat.
Infos
| Haustyp | Besondere Immobilie |
|---|---|
| Etagenzahl | 3 |
| Wohnfläche ca. | 368 m2 |
| Nutzfläche | 74 m2 |
| Grundstücksfläche | 8.553 m2 |
| Bezugsfrei ab | Nach Vereinbarung |
| Zimmer | 14 |
| Schlafzimmer | 9 |
| Badezimmer | 3 |
| Anzahl Garage/Stellplatz | 6 |
Kosten
| Kaufpreis |
1.300.000 € |
|---|---|
| Provision |
3,57 % inkl. gesetzlicher Umsatzsteuer |
Finanzierungsrechner:
Kaufpreis:
600.000 €
Eigenkapital:
600.000 €
Monatliche Rate
0 €
Effektiver Jahreszins
0 %
Sollzinsbindung
10 Jahre
Bausubstanz & Energieausweis
| Baujahr | 1910 |
|---|---|
| Letzte Sanierung | 2018 |
| Bauphase | Haus fertig gestellt |
| Objektzustand | Saniert |
| Qualität der Austattung | Luxus |
| Heizungsart | Zentralheizung |
| Wesentliche Energieträger | Öl |
| Energieausweis | liegt vor |
| Energieausweistyp | Bedarfsausweis |
| Energieverbrauchskennwert | 204,6 kWh/(m²*a) |
| Energieeffizienzklasse | G |
204,6
kWh/(m²*a)
Energieeffizienzklasse G
- A+
- A
- B
- C
- D
- E
- F
- G
- H
- 0
- 25
- 50
- 75
- 100
- 125
- 150
- 175
- 200
- 225
- >250
Beschreibung des Objekts
Ausstattung
-Baujahr 10, Architekt: Albert Friedrich Speer
-Grundstücksgröße: 8.553 m²
-Wohnfläche 368 m²
-Drei Etagen mit großzügigem Raumkonzept
-Smart-Home Steuerungssystem
-Drei Bäder mit Bidet, Urinal, Fenster, Wanne und Dusche
-Einbauküche
-Sauna
-Kamin
-Wintergarten
-Drei Abstellräume
-Fußböden aus Parkett und Schiefer-Naturstein
-Zentralheizung (Öl, 15.000-Liter-Tank, Einbau 2008)
-Neue Fenster mit 2-fach-Verglasung (2018)
-Dach mit Schiefereindeckung
-Gewächshaus
-Gartenhaus mit Gasheizung
-Scheune
-Fischteich und Natur-Schwimmteich
-zwei Carports mit insgesamt 4 Stellplätzen
-mehrere Parkmöglichkeiten direkt vor der Tür
-E-Ladestation
Lage
Mit herrlichem Blick über die Hunsrückhöhen befindet sich dieses attraktive Objekt in zentraler Lage der idyllischen Gemeinde Kempfeld. Wanderwege und Panoramaausblicke bieten unmittelbare Freizeitqualität.
Die Gemeinde selbst präsentiert sich als anerkannter Erholungsort, geprägt von einer geologischen Vielfalt und Teil der traditionsreichen Deutsche Edelsteinstraße – ein Umfeld mit Kulturwert und touristischer Bedeutung. Infrastruktur und Versorgung sind bequem durch die Nähe zu Birkenfeld und Idar-Oberstein erreichbar, ein Kindergarten und eine Grundschule befinden sich direkt im Ort.
Kurzum: Hier erwartet Sie ein Standort mit starker naturräumlicher Prägung, reizvoller Aussicht und dem angenehmen Maßstäbchen eines Wohnortes mit Charakter – ein Platz, der Ruhe und Qualität verbindet.
Sonstige Angaben
Die in unserem Exposé enthaltenen Aussagen basieren ausschließlich auf Informationen, die uns vom Verkäufer und von Handwerkern zur Verfügung gestellt wurden.
Wir übernehmen daher keine Gewähr für die Vollständigkeit und Richtigkeit der Angaben.
Das Immobilienangebot ist freibleibend.
Irrtum und Zwischenverkauf bleiben vorbehalten.
Weitere Details zum Objekt erläutern wir Ihnen gerne bei einem Besichtigungstermin.
Wir bitten um Ihr Verständnis dafür, dass wir nur Anfragen mit vollständigen Adressdaten inklusive Vor- und Zuname, Anschrift, Telefon-/Mobilnummer und Email Adresse bearbeiten können.
Sie suchen nach der passenden Finanzierung? Wir finden sie!
Als ungebundene Finanzierungsvermittler vergleichen wir über 900 Banken und finden einen optimalen Kredit für Sie.
Sparen Sie Geld und Zeit! Mit Sicherheit günstiger als Ihre Hausbank.
Informieren Sie sich jetzt hier, kostenfrei und unverbindlich über Finanzierungsmöglichkeiten zu dieser Immobilie. Fördermittelberatung inklusive.
Wir freuen uns auf den Kontakt zu Ihnen.
Immotactics GmbH
0671 – 20272030
info@immotactics.de
Adresse
55758 Kempfeld
Interessante Orte
Preis- und Lageinformationen
Preistrend für Bestandsimmobilien in Kempfeld