Die zur Vermietung stehende Doppelhaushälfte verbindet ein modernes und energieeffizientes zuhause, das Wohnkomfort mit nachhaltiger Bauweise vereint. Die Immobilie ist nach Effizienzhaus-Standards errichtet und bietet eine Wohnfläche von ca. 105 m², verteilt auf zwei Ebenen mit insgesamt 4 Zimmern.
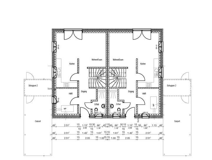
Bei der Raumaufteilung wurde die Präferenz vermehrt auf Komfort und Effizienz gelegt. So befindet sich im Erdgeschoss, neben einem Praktischen HWR/Abstellraum auch ein Gäste-WC mit Dusche sowie der offene Wohn- und Essbereich mit integrierter EBK und Ausgang auf die Terrasse.
Die Küche des Hauses präsentiert sich als Highlight – eine Einbauküche mit moderner Spüle und einem Induktionsherd samt Backofen erfüllt alle Ansprüche an zeitgemäße Küchengestaltung.
Die Schlafzimmer (insgesamt 3) im Obergeschoss sind gut geschnitten und haben – aufgrund der Stadthausbauweise– keine Dachschrägen. Ein großzügiges Vollbad im OG rundet die Wohnetage ab.
Ein weiteres Plus an Komfort bietet die Fußbodenheizung, die sich über das gesamte Haus erstreckt.
Zum praktischen Gesamtpaket gehört auch ein eigener Carport-Stellplatz, der den Komfort dieses modernen Eigenheims abrundet. Insgesamt präsentiert sich diese Neubau Doppelhaushälfte als ein zeitgemäßes, nachhaltiges und komfortables zuhause für anspruchsvolle Bewohner.
Als voraussichtlicher Mietbeginn dieser schönen Immobilie ist der 01.07.2026 angedacht
Wir bitten um Beachtung, dass sich das Objekt noch in der Bauphase befindet. Eventuelle Änderungen der Ausstattung, Bodenbeläge und insbesondere der Küche sind möglich.
Neubau – Wohnen auf dem Land: Doppelhaushälfte mit Carport und Schuppen in Seestermühe
25371 Seestermühe
Die vollständige Adresse der Immobilie erhalten Sie vom Anbieter.
Auf Karte anzeigen
Die vollständige Adresse der Immobilie erhalten Sie vom Anbieter.
Infos
| Haustyp | Doppelhaushaelfte |
|---|---|
| Wohnfläche ca. | 105 m2 |
| Grundstücksfläche | 312 m2 |
| Bezugsfrei ab | 01.07.2026 |
| Zimmer | 4 |
| Schlafzimmer | 3 |
| Badezimmer | 1 |
| Garage/Stellplatz | Carport |
| Anzahl Garage/Stellplatz | 1 |
Kosten
| Kaltmiete |
1.700 € |
|---|---|
| Nebenkosten | + 100 € |
| Heizkosten | keine Angabe |
| Gesamtmiete | 1.800 € |
| Kaution o. Genossenschaftsanteile | € 4.800,00 |
Weiter mieten oder doch kaufen?
Wer in Miete wohnt, überweist dem Vermieter im Laufe der Jahre hohe Summen, die sich
auch in die eigenen vier Wände investieren lassen könnten.
Bausubstanz & Energieausweis
| Baujahr | 2026 |
|---|---|
| Objektzustand | Erstbezug |
| Qualität der Austattung | Gehoben |
| Heizungsart | Wärmepumpe |
| Energieausweis | liegt vor |
| Energieausweistyp | Bedarfsausweis |
| Energieverbrauchskennwert | 23,3 kWh/(m²*a) |
Beschreibung des Objekts
Ausstattung
• Geräumige, energieeffiziente Neubau-Doppelhaushälfte
• Gäste-WC mit Dusche
• Vollbad im OG
• Moderner Vinyl-Boden
• Carport-Stellplatz mit Abstellraum
• Weiterer Abstellraum auf der Terrasse
• Familienfreundliche Wohnlage von Seestermühe
• Wärmepumpe
• Fußbodenheizung im gesamten Haus
Lage
Seestermühe ist eine charmante und traditionsreiche Gemeinde im Kreis Pinneberg und liegt eingebettet in die landschaftlich reizvolle Elbmarsch. Das Ortsbild wird geprägt von historischen Gebäuden, dem bekannten Seestermüher Schloss sowie weiten Feldern und Grünflächen, die für eine hohe Lebensqualität sorgen.
Die Gemeinde bietet Ruhe und Erholung im ländlichen Umfeld, ohne auf eine gute Infrastruktur verzichten zu müssen. Einkaufsmöglichkeiten, Schulen und Ärzte befinden sich in den umliegenden Nachbarorten. Die nächstgelegenen Städte wie Elmshorn, Uetersen oder Pinneberg sind in kurzer Fahrzeit erreichbar. Auch die Metropole Hamburg liegt nur etwa 35 Kilometer entfernt und ist über die Bundesstraße B431 sowie die nahegelegene A23 schnell erreichbar.
Besonders hervorzuheben ist die Nähe zur Elbe mit ihren weitläufigen Deichlandschaften, die ein ideales Umfeld für Freizeit, Sport und Erholung schaffen. Ob Radfahren, Spazierengehen oder Natur genießen – Seestermühe bietet einen hohen Freizeitwert inmitten einer grünen Umgebung.
Damit vereint die Lage die Vorzüge des ruhigen Landlebens mit einer guten Anbindung an die Städte der Metropolregion Hamburg.
Sonstige Angaben
DIE ANGEGEBENE STRAßE DIENT NUR ZUR ORIENTIERUNG. Das Objekt liegt im HELGOLÄNDER WEG (Straße im Neubaugebiet).
Wir bitten um Verständnis, dass wir nur E-Mail-Anfragen bearbeiten können, die Angaben zu Namen, Anschrift und Telefonnummer enthalten. Von Vorteil sind komplette Angaben mit Mobiltelefonnummer und E-Mail-Adresse.
Eine Mindestmietdauer von 24 Monaten ist erwünscht.
Wir weisen ausdrücklich darauf hin, dass die von uns weitergegebenen Objektinformationen, Unterlagen, Pläne etc. vom Verkäufer bzw. Vermieter stammen. Eine Haftung für die Richtigkeit oder Vollständigkeit der Angaben übernehmen wir - trotz selbstverständlicher Überprüfung nach bestem Wissen und Gewissen auf Fehler – daher nicht. Es obliegt unseren Kunden, die darin enthaltenen Objektinformationen und Angaben auf ihre Richtigkeit hin zu überprüfen.
Alle Immobilienangebote sind freibleibend und vorbehaltlich Irrtümer, Zwischenverkauf- und Vermietung oder sonstiger Zwischenverwertung.
Grundriss
Grundriss EG
>
>
Grundriss OG
>
>
Adresse
25371 Seestermühe
Interessante Orte
Preis- und Lageinformationen
Preistrend für Bestandsimmobilien in Seestermühe