Das kernsanierte Gesamtensemble (Energieeffizienzklasse A) befindet sich im Münchner Westen, dem Stadtteil Pasing, nur wenige Minuten vom Pasinger Stadtkern entfernt.
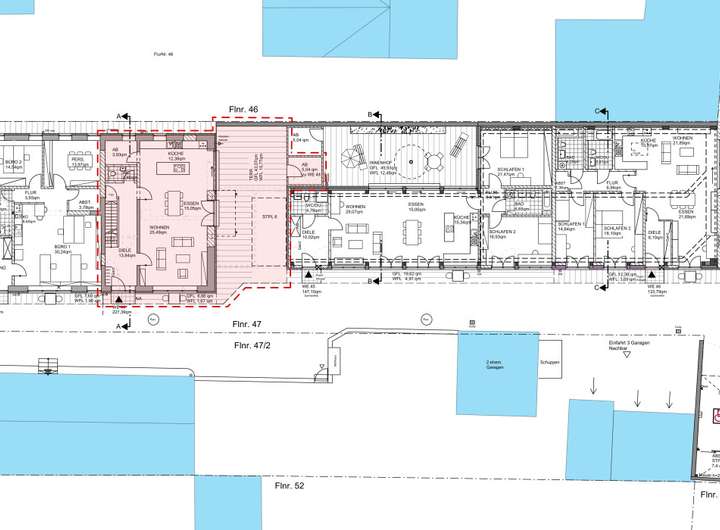
Das Objekt liegt auf einem langgezogenen Grundstück zwischen der Planeggerstraße und dem Otto-Dischner-Weg.
Hier sind im Jahr 2017 sieben kernsanierte und hochwertig ausgestattete Wohneinheiten mit individuellem Charakter und Charme entstanden (ehemalige Schreinerei).
Das hier vorgestellte Reihenendhaus liegt weg von der Planeggerstraße und bildet die rückwärtige Einheit des Vordergebäudes mit großer Terrasse und zwei Balkonen.
Es orientiert sich in Richtung Süden und Osten und ist ruhig und sonnig gelegen.
Das Reihenendhaus erstreckt sich vom Keller und EG über 1. OG und Dachgeschoss mit Galerieebene.
Es bietet sich beispielsweise hervorragend zur Nutzung als Mehrgenerationen-Haus, für große Familien oder zum Wohnen und Arbeiten an.
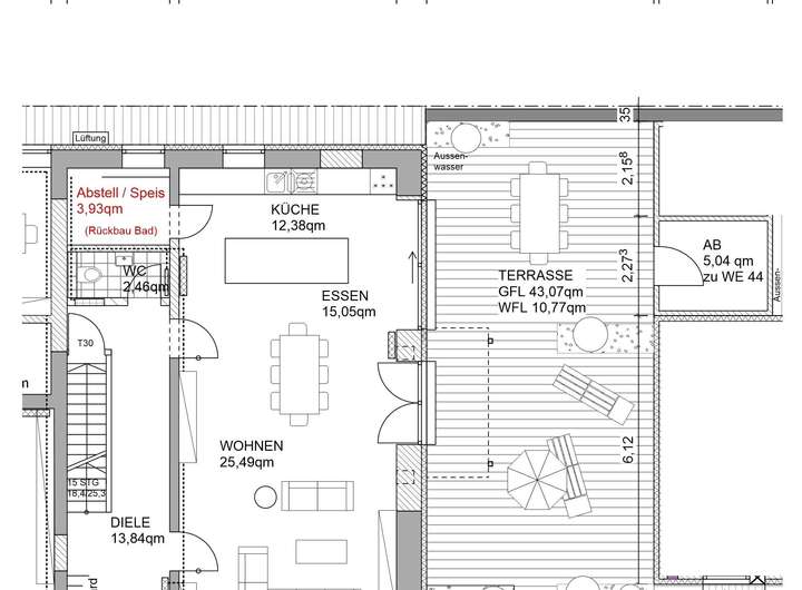
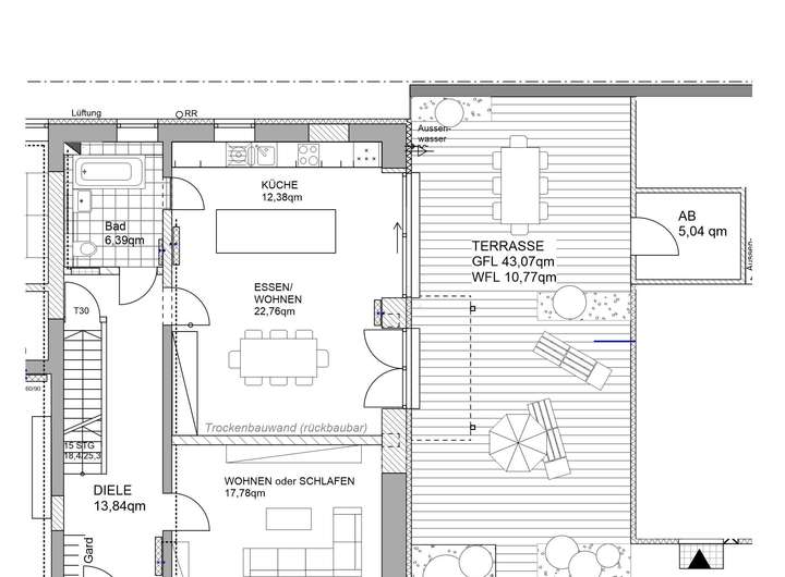
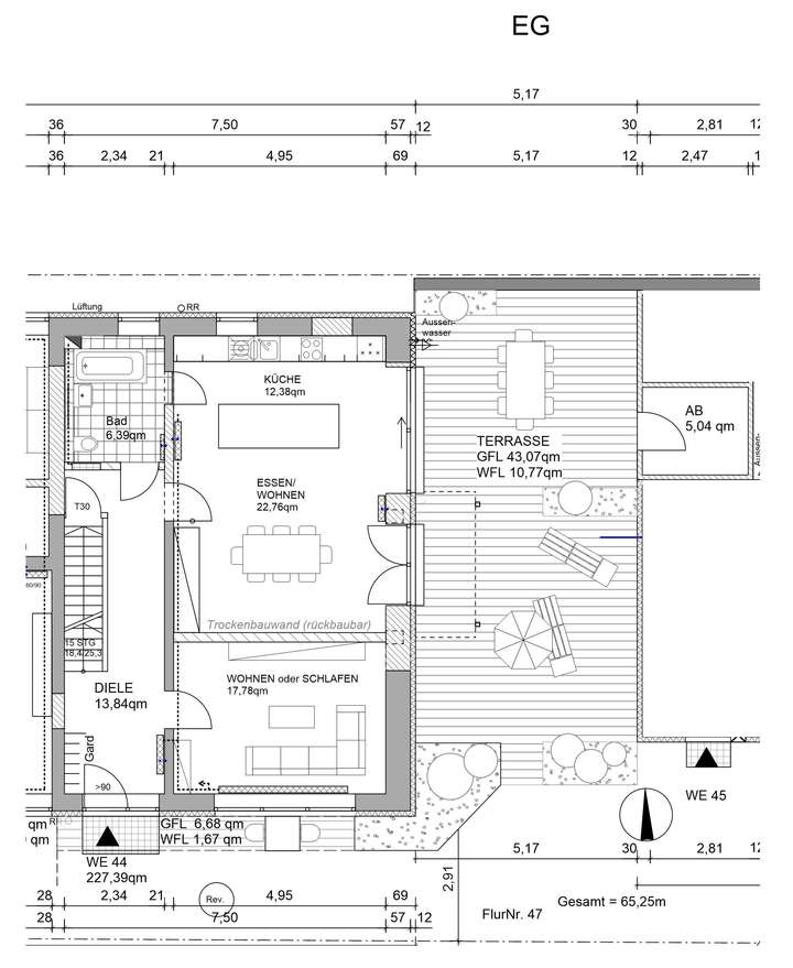
Es verfügt im EG über einen Eingangsbereich mit Garderobe und Flur, einen Wohnraum oder Schlafzimmer, einen modernen Ess-/Kochbereich mit großer Terrasse sowie ein großzügiges Bad mit Badewanne.
Eine hochwertige Einbauküche mit Siemens-Geräten ist eingebaut.
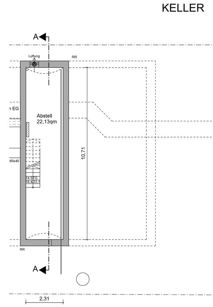
An die Terrasse angrenzend befindet sich ein 5 qm großer Abstellraum, der z.B. für Gartenmöbel genutzt werden kann.
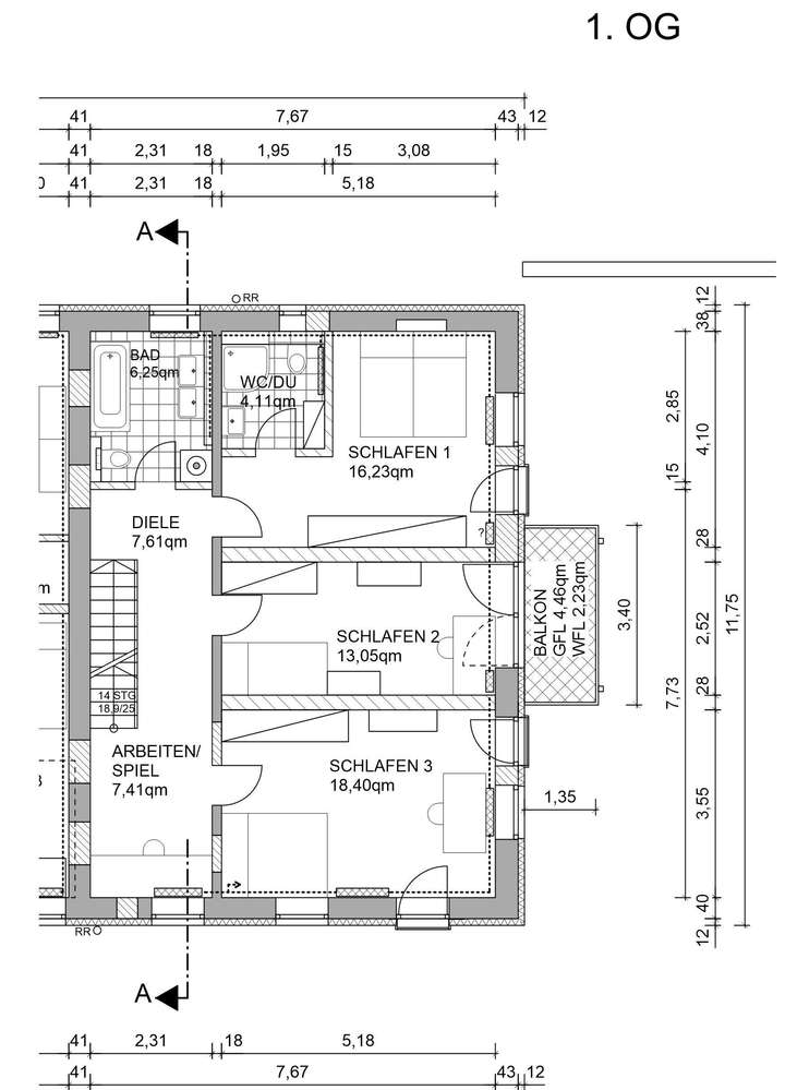
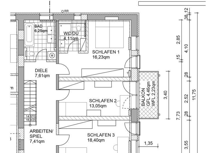
Im 1. OG befinden sich 3 Schlafzimmer, eines davon mit Duschbad en suite, sowie ein großzügiges Wannenbad.
Eines der Schlafzimmer verfügt über einen eigenen Balkon in Richtung Osten. In der Diele befindet sich außerdem ein Arbeits-/Spielbereich mit 7,4qm.
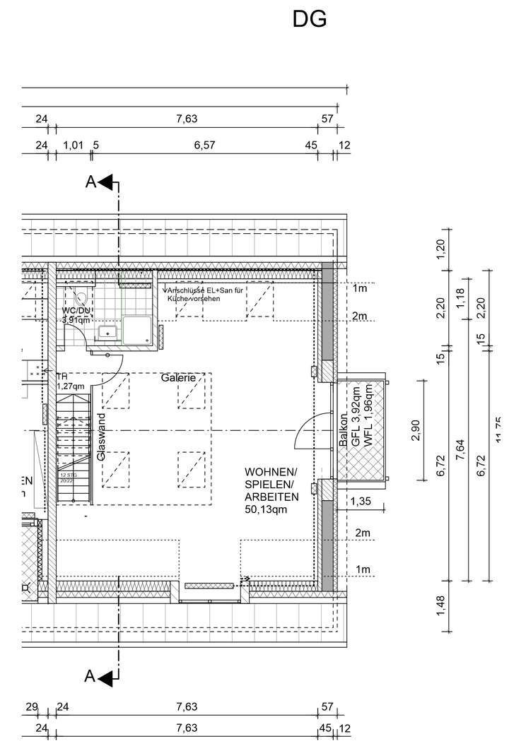
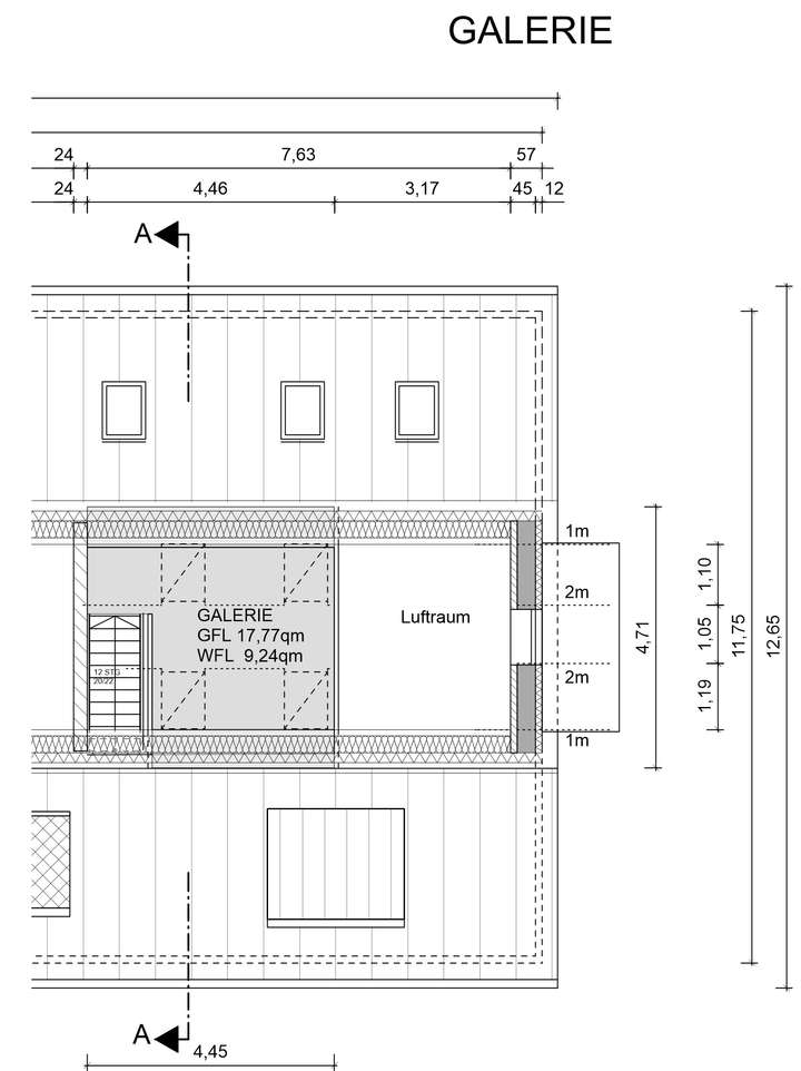
Im lichtdurchfluteten Dachgeschoss mit einer Raumhöhe von 4,90m unter dem First schwebt eine Galerie über der Hälfte des Dachraums.
Das großzügige DG-Studio ist zum Treppenhaus hin durch eine Glaswand abgeschlossen und lässt vielfältige Nutzungsmöglichkeiten zu: Vom großzügigen Wohnzimmer, seperatem Büro, Eltern- oder Au-Pair Bereich bis hin zum Hobby- oder Fernsehraum.
Im Dachgeschoss ist außerdem ein weiterer Küchenanschluss vorgesehen, der eine zweite Küchennutzung ermöglicht (siehe Fotos).
Vom Balkon aus genießt man hier einen weitläufigen Blick auf die begrünten Flachdächer der Anlage.
Im DG ist ebenfalls ein Duschbad vorhanden. Hierdurch lässt sich die DG Einheit mit Galerie gut seperat nutzen.
Auch das EG bietet flexible Nutzungsmöglichkeiten:
GRUNDRISS VARIANTE 1:
Das Bad im EG kann bei Bedarf auch zu einem kleinen Gäste-WC und einer Speisekammer im Anschluss an die Küche umgebaut werden.
Zudem können Ess- und Wohnzimmer, die aktuell durch eineTrockenbauwand getrennt sind, entweder durch eine Tür miteinander verbunden werden oder die Trockenbauwand kann ohne Rückstände komplett rückgebaut werden, sodass ein großzügiger Wohn- / Essbereich entsteht (siehe Grundriss Variante 1).
GRUNDRISS VARIANTE 2:
Im Erdgeschoss gibt es auch grundsätzlich die Möglichkeit, durch das Verschließen von 2 Türen in Richtung Flur eine von den Obergeschossen komplett unabhängige Wohneinheit zu bilden, die barrierefrei zugänglich ist und vom Hausflur aus erschlossen wird. Der Keller ist weiterhin für die oberen Geschosse vom Hausflur aus zugänglich. Terrasse und Außen-Abstellraum sind weiterhin ggf. gemeinschaftlich nutzbar.
Die Nutzung der seperaten Einheit im Haus ist beispielsweise ideal für Senioren, ein erwachsenes Kind, ein Au-Pair oder Pflegepersonal.
Das Reihenendhaus bietet sich durch seine vielfältige Nutzungsmöglichkeit hervorragend als Mehrgenerationen-Haus oder für zeitgemäßes Wohnen und Arbeiten an.
Kernsaniertes Dachgeschoss, Stadthaus am Pasinger Stadtpark, flexible Nutzung, provisionsfrei
81241 München
Die vollständige Adresse der Immobilie erhalten Sie vom Anbieter.
Auf Karte anzeigen
Die vollständige Adresse der Immobilie erhalten Sie vom Anbieter.
Finanzierungszertifikat
In nur zwei Minuten zu Ihrem persönlichen Finanzierungszertifkat.
Infos
| Wohnungskategorie | Dachgeschoss |
|---|---|
| Etagenzahl | 3 |
| Wohnfläche ca. | 227 m2 |
| Nutzfläche | 111,8 m2 |
| Bezugsfrei ab | Sofort |
| Zimmer | 6,5 |
| Schlafzimmer | 5 |
| Badezimmer | 4 |
| Garage/Stellplatz | Carport |
| Anzahl Garage/Stellplatz | 1 |
Kosten
| Kaufpreis |
1.648.000 € |
|---|---|
| Preis für Garage/Stellplatz | 18.000 € |
| Provision | Nein |
Finanzierungsrechner:
Kaufpreis:
600.000 €
Eigenkapital:
600.000 €
Monatliche Rate
0 €
Effektiver Jahreszins
0 %
Sollzinsbindung
10 Jahre
Bausubstanz & Energieausweis
| Baujahr | 1860 |
|---|---|
| Letzte Sanierung | 2017 |
| Objektzustand | Neuwertig |
| Qualität der Austattung | Luxus |
| Heizungsart | Zentralheizung |
| Wesentliche Energieträger | Gas |
| Energieausweis | liegt vor |
| Energieausweistyp | Bedarfsausweis |
| Energieverbrauchskennwert | 43,0 kWh/(m²*a) |
| Energieeffizienzklasse | A |
43,0
kWh/(m²*a)
Energieeffizienzklasse A
- A+
- A
- B
- C
- D
- E
- F
- G
- H
- 0
- 25
- 50
- 75
- 100
- 125
- 150
- 175
- 200
- 225
- >250
Beschreibung des Objekts
Ausstattung
* Balkone und Terrasse mit Süd-Ost Ausrichtung. Ein Teil der Terrasse kann auch in Rasenfläche zu einem kleinen Garten umgewandelt werden.
*Energieeffizienzklasse A
* Geölte und gebürstete Eichendielenböden in allen Räumen
* Treppen mit Eichenvollholzstufen
* Hochwertige Einbauküche mit Siemens-Geräten
* Alle Bäder sind mit italienischen Feinsteinzeugfliesen, hochwertigen Accessoires inkl. großem Spiegel und Beleuchtung ausgestattet
* LED Lichtschienen im Dachgeschoss, dimmbar
* Einbauleuchten unter der Galerie
* Elektrische Raffstores an den südlich gelegenen Wohn- und Schlafräumen
* Glasfaseranschluss
* Möglichkeit zur Herstellung einer barrierefreien, seperaten EG Einheit oder eines geräumigen Wohn-/ Esszimmers mit ca. 53qm
Lage
* Die ruhige Anliegerstraße an der Südseite des Objekts zwischen Planeggerstraße und Otto-Dischner-Weg eignet sich als Spielstraße für Kinder.
* Zentrumsnahe Lage direkt am vielfältigen Pasinger Stadtpark mit Bachlauf der Würm, Spielplätzen und Sportmöglichkeiten
* Alle Einkaufsmöglichkeiten des täglichen Bedarfs sowie ärztliche Versorgung und das Pasinger Krankenhaus befinden sich in unmittelbarer Umgebung
* Der Pasinger Marienplatz mit seinem neu gestalteten Ortskern und Trambahnlinie 19 ist in 5 Minuten fußläufig erreichbar
* Haltestelle der Buslinien 56, 57, 259 und 265 in 100m Entfernung
* 12 Gehminuten bis zum Pasinger Bahnhof mit S-Bahn und ICE-Anschluss; ab hier 15 Minuten bis zum Münchner Marienplatz
* 4 Fahrminuten bis zur Autobahn
* Alle Schulformen, die Hochschule Pasing, Kinderbetreuungseinrichtungen, Westbad mit Eislaufplatz in direktem Umfeld
Sonstige Angaben
Die Dachbegrünung auf allen Flachdächern des Rückgebäudes und der Carports sowie der angrenzende Stadtpark sorgen für ein grünes Ambiente.
Bepflanzung und Gestaltung der Außenanlagen erfolgte durch eine Landschaftsarchitektin.
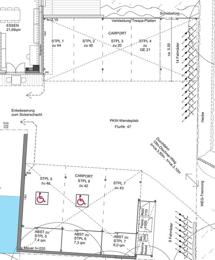
Dem Haus ist ein Carport zugeordnet (Kaufpreis: 18.000.-€).
Lademöglichkeiten für E-Mobilität sind vorgesehen.
Das Hausgeld beträgt 630€ / Monat.
Der Verkauf des Objekts erfolgt provisionsfrei direkt durch den Eigentümer und Projektentwickler Völkner GmbH.
Bei Interesse kann über das Kontaktformular oder telefonisch gerne ein Besichtigungstermin vereinbart werden.
Grundriss
Isometrie d. Gesamtensembles
>
>
Übersichtsplan WE 44
>
>
Grundriss EG mit Terrasse
>
>
Grundriss OG
>
>
Grundriss DG
>
>
Grundriss Galerie
>
>
Grundriss Keller
>
>
VARIANTE 1: Großes Wo-/Ess Zi
>
>
VARIANTE 2:Seperate Einheit EG
>
>
Carport zu WE 44
>
>
Adresse
81241 München
Interessante Orte
Preis- und Lageinformationen
Preistrend für Bestandsimmobilien in Pasing