Das ansprechende Einfamilienhaus wurde 2019 in solider Bauweise auf einem wunderschönen großzügigem Baugrundstück erstellt. Die Räume wirken ansprechend und gemütlich, sie sind lichtdurchflutet und mit hochwertigen, zeitlosen Materialien ausgestattet. Die Küche ist ein großzügiger Raum mit viel Platz für den Essbereich.Das Wohnzimmer mit Kaminofen wirkt einladend. Ohne großen Aufwand kann es zur Küche hin geöffnet werden. Vom Wohnraum und der Küche aus betritt man eine große Terrasse mit Blick in den herrlichen, naturnahen Garten, der an Feld und Wiese grenzt. Im Erdgeschoss befinden sich zudem ein kleines Büro, ein Hauswirtschaftsraum und eine Speis sowie ein Gäste-WC , hier ist bereits eine Dusche vorbereitet, sie lässt sich ohne großen Aufwand installieren.
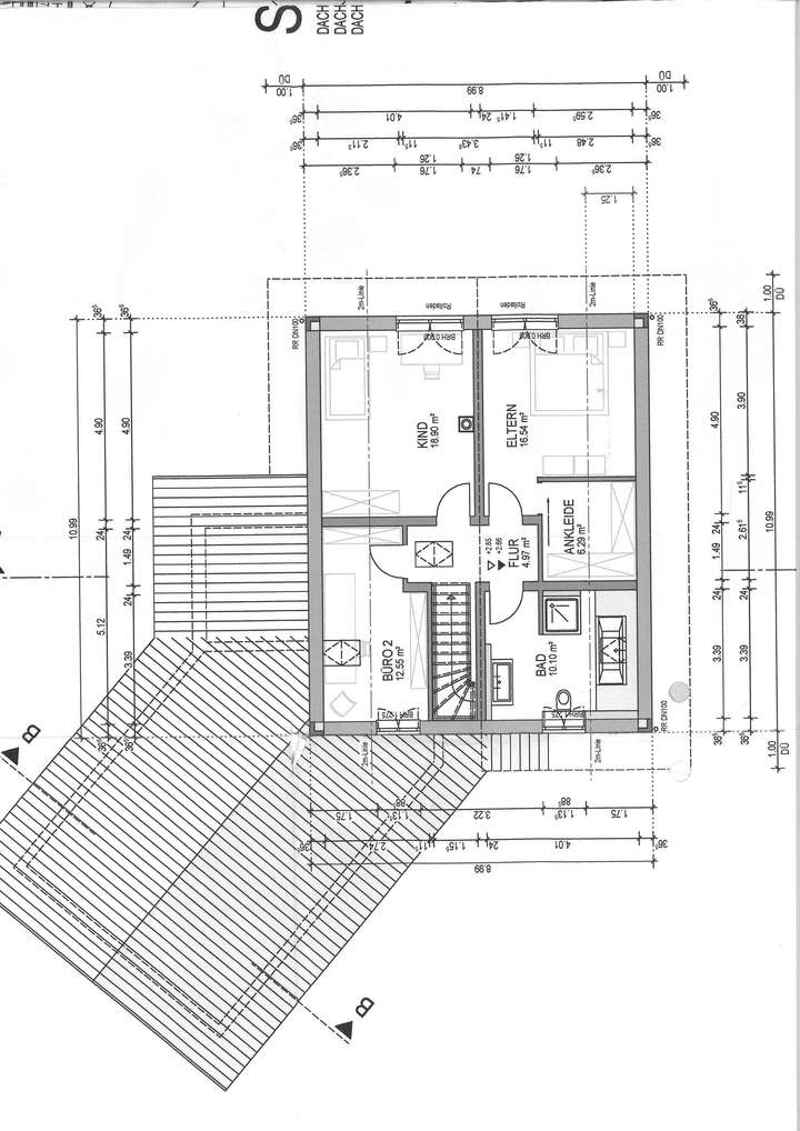
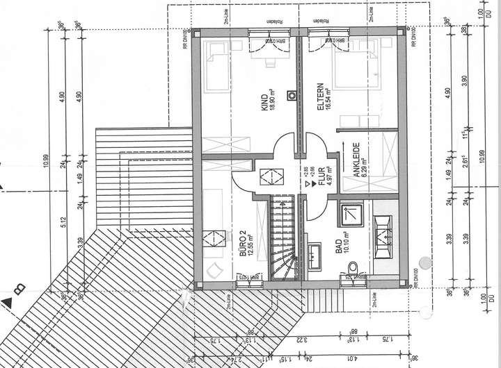
Über eine geschwungene Holztreppe kommt man in das DG mit 3 Räumen, ein Schlafzimmer mit Ankleide sowie 2 Kinderzimmer und einem modernen Bad mit Wanne, begehbarer großer Dusche und Fenster.
Über einem der Kinderzimmer befindet sich ein kleiner Speicher.
Das Haus ist nicht unterkellert, hat aber eine sehr große Doppelgarage mit Speicher und direktem Zugang zum Hauswirtschaftsraum, somit ist genügend Abstellbereich vorhanden.
In diesem neuwertigen Einfamilienhaus fühlt sich eine Familie sicherlich sehr wohl, ebenso wie Paare mit Haustieren und Liebe zur Natur und zum Garten.
Ländliches, modernes Domizil für gemütliches Wohnen am Ortsrand gelegen - nahe Mühldorf
84562 Mettenheim
Die vollständige Adresse der Immobilie erhalten Sie vom Anbieter.
Auf Karte anzeigen
Die vollständige Adresse der Immobilie erhalten Sie vom Anbieter.
Finanzierungszertifikat
In nur zwei Minuten zu Ihrem persönlichen Finanzierungszertifkat.
Infos
| Haustyp | Einfamilienhaus |
|---|---|
| Etagenzahl | 1 |
| Wohnfläche ca. | 140 m2 |
| Grundstücksfläche | 980 m2 |
| Bezugsfrei ab | 01.01.2026 |
| Zimmer | 5 |
| Schlafzimmer | 3 |
| Badezimmer | 1 |
| Garage/Stellplatz | Garage |
| Anzahl Garage/Stellplatz | 2 |
Kosten
| Kaufpreis |
645.000 € |
|---|---|
| Provision |
3,57 % incl. MwSt. |
Finanzierungsrechner:
Kaufpreis:
600.000 €
Eigenkapital:
600.000 €
Monatliche Rate
0 €
Effektiver Jahreszins
0 %
Sollzinsbindung
10 Jahre
Bausubstanz & Energieausweis
| Baujahr | 2019 |
|---|---|
| Objektzustand | Neuwertig |
| Qualität der Austattung | Gehoben |
| Heizungsart | Fußbodenheizung |
| Wesentliche Energieträger | Strom |
| Energieausweis | liegt vor |
| Energieausweistyp | Bedarfsausweis |
| Energieverbrauchskennwert | 38,5 kWh/(m²*a) |
| Energieeffizienzklasse | A |
38,5
kWh/(m²*a)
Energieeffizienzklasse A
- A+
- A
- B
- C
- D
- E
- F
- G
- H
- 0
- 25
- 50
- 75
- 100
- 125
- 150
- 175
- 200
- 225
- >250
Beschreibung des Objekts
Ausstattung
- Heizung : Luft-Wärmepumpe Marke Buderus
- Solaranlage für Warmwasser
- Klimaanlage
- PV-Anlage mit 7,2 kwp ist im Kaufpreis inbegriffen.
- Enthärtungsanlage Fa. Grünbeck
- Böden: Fliesen oder Vinylböden in Holzoptik
- Fenster: Holz-Alu-Fenster mit 3-fach Verglasung
- Bad: moderne, hochwertige Ausstattung z.B. Wanne, begehbare Glasdusche, Fenster
- Dachflächenfenster mit Rollos
- gepflegte, zeitlose Einbauküche
- ein Kaminofen vermittelt Behaglichkeit
- Regenwasserzisterne
Lage
Das sonnige, gemütliche Landhaus ist wunderschön am Ortsrand von Gumattenkirchen gelegen, direkt angrenzend an Feld und Wiese. Das Grundstück liegt an einer reinen Anliegerstraße mit sehr geringem Verkehrsaufkommen und netten Nachbarn. In ländlicher Umgebung und doch stadtnah, können Sie hier Ihren Wohnträume wahr werden lassen. Vom Grundstück aus eröffnet sich ein weiter Blick in die Landschaft. Gumattenkirchen ist ein Dorf, das zur Gemeinde Mettenheim gehört. Hier befinden sich auch die Grundschule und der Kindergarten, sowie die Kindertagesstätte. Eine lebendige Dorfgemeinschaft mit jungen Familien und eine herrliche, natürliche Umgebung, nur wenige Fahrminuten von Mühldorf, Ampfing und Neumarkt St. Veit entfernt, vermitteln Lebensqualität. Die Kreisstadt Mühldorf, ca. 80 km östlich von München, liegt eingebettet in das Inntal. Die historische Altstadt mit einer Vielzahl an attraktiven Geschäften, Cafés und Lokalen, sowie umfangreiche kulturelle Angebote, vermitteln einen hohen Freizeitwert. Mühldorf verfügt über mehrere Einkaufmeilen mit einem großen Angebot an Geschäften aller Sparten, Ämter, Ärzte und Krankenhaus sowie weiterführende Schulen.
Gumattenkirchen, ländlich und gemütlich liegt nördlich von Mühldorf. Der Autobahnanschluss und der Bahnhof sind von Gumattenkirchen in ca. 10 Fahrminuten erreichbar.
Entfernungen/ Fahrzeit
Mühldorf am Inn ist 8 km entfernt
Bahnhof Mühldorf: 10 Minuten
Bahnhof Ampfing: 15 Minuten
Neumarkt St. Veit : 10 Minuten
Haag: 34 Minuten
Waldkraiburg: 20 Minuten
Landshut: 40 Minuten
München Flughafen: 45 Minuten
München 45 Minuten
Sonstige Angaben
Das Haus ist ab Januar 2026 beziehbar.
Eine Besichtigung ist nach Absprache gerne möglich.
Grundriss
Grundriss DG
>
>
Adresse
84562 Mettenheim
Interessante Orte
Preis- und Lageinformationen
Preistrend für Bestandsimmobilien in Mettenheim