Objektbeschreibung
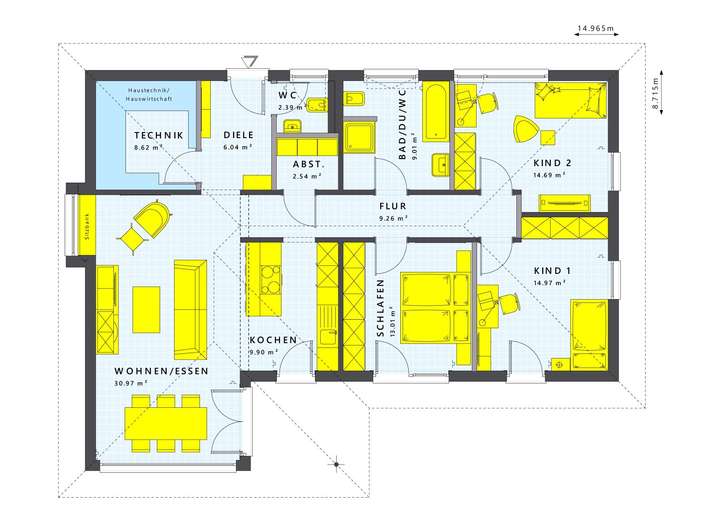
Der Bungalow SOL 110 überzeugt mit einem offenen, großzügigen Grundriss und viel Raum für individuelle Gestaltung.
Der zentrale Wohn- und Essbereich mit offener Küche ist das Herzstück des Hauses - hier treffen sich Familie und Freunde z
Ausum gemeinsamen Leben, Genießen und Entspannen.
Bodentiefe Fenster sorgen für ein helles, freundliches Ambiente und schaffen fließende Übergänge zwischen Innen- und Außenbereich.
Ein separates Schlafzimmer mit Ankleide, zwei weitere Zimmer (ideal als Kinder-, Gäste- oder Arbeitszimmer), ein modernes Bad sowie ein praktischer Hauswirtschaftsraum runden das Raumkonzept perfekt ab.
Ca. 110 m² Wohnfläche auf einer Ebene
Offener Wohn-/Ess-/Kochbereich mit Terrasse
3 Zimmer + Bad + Hauswirtschaftsraum
Bodentiefe Fenster für optimale Lichtverhältnisse
Energieeffiziente Bauweise nach KfW-Standard
Individuelle Gestaltungsmöglichkeiten bei Grundriss und Ausstattung
Mit Photovoltaikanlage!! Optional mit Smart-Home-System und Garage/Carport
WOHNEN AUF EINER EBENE - DEIN TRAUMHAUS VON LIVING HAUS INKL: GRUNDSTÜCK IN ENSDORF
66806 Ensdorf
Die vollständige Adresse der Immobilie erhalten Sie vom Anbieter.
Auf Karte anzeigen
Die vollständige Adresse der Immobilie erhalten Sie vom Anbieter.
Finanzierungszertifikat
In nur zwei Minuten zu Ihrem persönlichen Finanzierungszertifkat.
Infos
| Haustyp | Einfamilienhaus |
|---|---|
| Etagenzahl | 1 |
| Wohnfläche ca. | 110 m2 |
| Grundstücksfläche | 505 m2 |
| Zimmer | 4 |
| Schlafzimmer | 3 |
| Badezimmer | 1 |
Kosten
| Kaufpreis |
470.000 € |
|---|---|
| Provision | Nein |
Finanzierungsrechner:
Kaufpreis:
600.000 €
Eigenkapital:
600.000 €
Monatliche Rate
0 €
Effektiver Jahreszins
0 %
Sollzinsbindung
10 Jahre
Bausubstanz & Energieausweis
| Baujahr | unbekannt |
|---|---|
| Energieausweis | liegt vor |
| Energieausweistyp | Bedarfsausweis |
| Energieverbrauchskennwert | 18,0 kWh/(m²*a) |
| Energieeffizienzklasse | A+ |
18,0
kWh/(m²*a)
Energieeffizienzklasse A+
- A+
- A
- B
- C
- D
- E
- F
- G
- H
- 0
- 25
- 50
- 75
- 100
- 125
- 150
- 175
- 200
- 225
- >250
Beschreibung des Objekts
Ausstattung
Alles auf einer Ebene, Ihr Traumhaus SOL110 von Living Haus
Der Living Haus SOL 110 steht für modernes, komfortables und barrierefreies Wohnen auf einer Ebene. Mit seiner durchdachten Architektur, lichtdurchfluteten Räumen und klaren Linien bietet dieser Bungalow höchsten Wohnkomfort für jedes Alter.
Der SOL 110 ist das perfekte Haus für alle, die modern, komfortabel und zukunftssicher wohnen möchten. Ob als Familienhaus, barrierefreies Zuhause oder Altersruhesitz - mit Living Haus gestalten Sie Ihr Eigenheim genau nach Ihren Vorstellungen.
Lage
Das Grundstück ist verfügbar und im Preis mit einkalkuliert.
*Möglicher Zwischenverkauf nicht ausgeschlossen
Alle Projektierungen sind auf realen zum Verkauf stehenden Bauplätzen/Baulücken projektiert.
Bitte sehen Sie von reinen Grundstücksanfrage ab.
Als Hausverkäuferin trete ich als Vermittlerin auf und unterstütze Sie dabei, Ihr Traumgrundstück zu kaufen und auf diesem Bauplatz ihr Zuhause zu realisieren.
Vereinbaren Sie noch heute einen persönlichen Beratungstermin und sichern Sie sich diese einzigartige Gelegenheit für Ihre Familie und Ihr zukünftiges Heim mit Living Haus.
Wichtiger Hinweis:
Ich lege großen Wert auf Qualität und Leidenschaft beim Bau von Häusern. Daher werde ich Grundstücksdaten nur nach einem persönlichen Gespräch zum Thema Hausbau weitergeben. Es werden keine Ausnahmen gemacht.
Jessica N'Guer
Telefon: 0177/6797704
E-Mail: jessica.nguer@livinghaus.de
Sonstige Angaben
Entdecke das sichere Ausbauhaus-Konzept von Living Haus. Konzentriere dich auf das, was dir wichtig ist. Wir kümmern uns um den Rest. Deine Vorteile bei Living Haus:
- 18 Monate Festpreisgarantie
- bei fallenden Baupreisen sinkt auch dein Hauspreis
- 30 Jahre Garantie auf die Grundkonstruktion
- Bauversicherungen inklusive
- Zuhause-Darlehen: 250.000 EUR Sonderdarlehen bis zu 0,5% unter Marktpreis
- Bauherren-App mit allen wichtigen Infos zu deinem Projekt
- hohe Nachhaltigkeit (DGNB-Zertifizierung in Gold)
- alle Häuser sind KFN-förderfähig (bis zu 100.000 EUR Förderkredit)
- I-KON-Konzept: PV-Anlage mit Speicher inklusive
- individuell geplante Küche für dein Haus inklusive
- komplettes, individuell bemustertes Innenausbaumaterial inklusive
- 3 Tage Coaching für den Innenausbau inklusive
Adresse
66806 Ensdorf
Interessante Orte
Preis- und Lageinformationen
Preistrend für Bestandsimmobilien in Ensdorf