Der Preis beinhaltet das projektierte Ausbauhaus inkl. Grundstück. Im Hauspreis enthalten sind: Bodenplatte, Luft-Wärmepumpe, Sanitärrohinstallation, Elektroinstallation, Innentreppe, Estrich, komplettes Innenausbaumaterial, individuell planbare Küche, PV-Anlage inkl. Speicher. Ein Betonkeller, sowie die Energiestandards KfW40 und KfW40+ sind gegen Aufpreis möglich. Baubeginn und Fertigstellung nach Absprache. Viele Angebote in Ihrer Region verfügbar!
ALLES AUF EINER EBENE - EIN BUNGALOW DER SPAß MACHT! PREIS INKLUSIVE REELLEM GRUNDSTÜCK
66839 Schmelz
Die vollständige Adresse der Immobilie erhalten Sie vom Anbieter.
Auf Karte anzeigen
Die vollständige Adresse der Immobilie erhalten Sie vom Anbieter.
Finanzierungszertifikat
In nur zwei Minuten zu Ihrem persönlichen Finanzierungszertifkat.
Infos
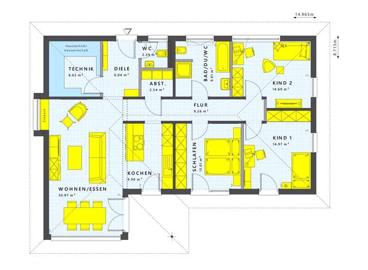
| Haustyp | Einfamilienhaus |
|---|---|
| Etagenzahl | 1 |
| Wohnfläche ca. | 110 m2 |
| Grundstücksfläche | 650 m2 |
| Zimmer | 4 |
| Schlafzimmer | 3 |
| Badezimmer | 1 |
Kosten
| Kaufpreis |
409.000 € |
|---|
Finanzierungsrechner:
Kaufpreis:
600.000 €
Eigenkapital:
600.000 €
Monatliche Rate
0 €
Effektiver Jahreszins
0 %
Sollzinsbindung
10 Jahre
Bausubstanz & Energieausweis
| Baujahr | unbekannt |
|---|
Beschreibung des Objekts
Sonstige Angaben
Entdecke das sichere Ausbauhaus-Konzept von Living Haus. Konzentriere dich auf das, was dir wichtig ist. Wir kümmern uns um den Rest. Deine Vorteile bei Living Haus:
- 18 Monate Festpreisgarantie
- bei fallenden Baupreisen sinkt auch dein Hauspreis
- 30 Jahre Garantie auf die Grundkonstruktion
- Bauversicherungen inklusive
- Zuhause-Darlehen: 250.000 EUR Sonderdarlehen bis zu 0,5% unter Marktpreis
- Bauherren-App mit allen wichtigen Infos zu deinem Projekt
- hohe Nachhaltigkeit (DGNB-Zertifizierung in Gold)
- alle Häuser sind KFN-förderfähig (bis zu 100.000 EUR Förderkredit)
- I-KON-Konzept: PV-Anlage mit Speicher inklusive
- individuell geplante Küche für dein Haus inklusive
- komplettes, individuell bemustertes Innenausbaumaterial inklusive
- 3 Tage Coaching für den Innenausbau inklusive
Adresse
66839 Schmelz
Interessante Orte
Preis- und Lageinformationen
Preistrend für Bestandsimmobilien in Schmelz