Individuell planbares Living Haus in Hüttersdorf / Schwalbach (Saarland)
Verwirklichen Sie Ihren Traum vom Eigenheim gemeinsam mit mir und dem Marktführer auf einem attraktiven Grundstück in Schwalbach! Mit einem modernen Living Haus, das nach Ihren Wünschen und Bedürfnissen individuell geplant werden kann, schaffen Sie sich Ihr ganz persönliches Zuhause. Profitieren Sie von einer ruhigen Lage im Grünen, einer guten Infrastruktur und hoher Wohnqualität, ideal für Familien und alle, die naturnah wohnen möchten.
Sie bekommen genau die finanzielle Transparenz, die es braucht, um klar und sicher rechnen zu können.
In unserer Bau- und Leistungsbeschreibung finden sie auf 84 Seiten alle wichtigen Informationen zu ihrem geplanten Living Haus.
Unterstützung bei der Finanzierung, kein Problem, auch hier können wir mit Profis an unserer Seite unterstützen.
Wir verfügen über ein Nachhaltigkeitszertifikat und bauen im Jahr in der Oikos Group etwa 1000 Häuser.
Living Haus gehört als direktes Tochterunternehmen zu Bien-Zenker und profitiert daher ebenfalls von einer Erfahrung aus 115 Jahren Fertighausbau
Melden Sie sich für Ihr ganz eigenes persönliches Gespräch bei mir, ich freue mich darauf!
Sie erreichen mich Mobil unter: 01776797704
Bei dem hier dargestellten Haus handelt es sich um eine Beispielbebauung.
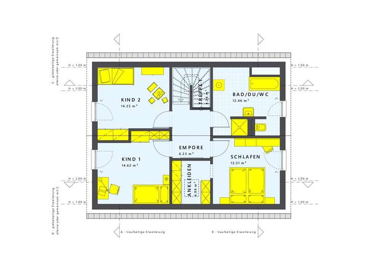
Haus: Sunshine 142
Haustyp: Einfamilienhaus
Gründung: Bodenplatte
Maße: 8,090m x 10,590m
Ausbaustufe: zum Ausbau vorbereitet
Es sind ca. 142 qm, aufgeteilt auf 6 Zimmer
Bei ihrem neuen Zuhause von Living Haus ist wirklich an alles gedacht worden.
Auf diese Leistungen können Sie definitiv mit uns bauen:
✅18 Monate Festpreisgarantie, mit Transparenz was nach Ablauf der 18 Monaten passiert, gedeckelt und kalkulierbar!
✅ Architektenleistungen, diese sind bei uns im Leistungsumfang enthalten!
✅ DNGB-Serienzertifizierung in GOLD, Nachhaltigkeit wird bei uns großgeschrieben!
✅ Preisanpassung an den Baupreisindex, falls dieser sinkt!
✅ Kostenloser Grundstücksservice, wir suchen Ihr Grundstück kostenlos und unkompliziert!
✅ auf Wunsch I-KON für jedes Haus vorkonfiguriert, Wärmepumpe, PV-Anlage, Batteriespeicher und Wechselrichter!
✅ Individuelle Küchenplanung, Marken-Traumküche zum fairen Preis!
✅ Hausbau-App, immer auf dem aktuellen Stand, mit Tipps um beim Ablauf an alles zu denken!
✅ Zuhause-Paket, wirklich alles, was für den Innenausbau benötigt wird, ist im Preis dabei!
✅ 3 Tage DIY-Ausbau-Coaching, auf Wunsch Hilfestellung von einem Profi dort wo Sie sie brauchen!
✅ Zuhause-Darlehen, 250.000 Euro Sonderdarlehen zu nochmal günstigeren Konditionen, ür eine bessere Rate!
✅ Wärmepumpe, keine fossilen Brfennstoffe, entweder ohne oder auch mit Fußbodenheizung ausführbar!
✅ Zuhause-Versicherungspaket, sicher durch die Bauphase, alle wichtigen Versicherungen sind im Hauspreis direkt mit dabei!
Lassen Sie uns gerne in einem persönlichen Gespräch über Ihre genauen Anforderungen an das eigene Traumhaus sprechen.
BAUGRUNDSTÜCK INKL. INDIVIDUELL PLANBAREM LIVING HAUS IN SCHWALBACH/HÜLZWEILER
66773 Schwalbach
Die vollständige Adresse der Immobilie erhalten Sie vom Anbieter.
Auf Karte anzeigen
Die vollständige Adresse der Immobilie erhalten Sie vom Anbieter.
Finanzierungszertifikat
In nur zwei Minuten zu Ihrem persönlichen Finanzierungszertifkat.
Infos
| Haustyp | Einfamilienhaus |
|---|---|
| Etagenzahl | 2 |
| Wohnfläche ca. | 140 m2 |
| Grundstücksfläche | 610 m2 |
| Zimmer | 3 |
| Schlafzimmer | 3 |
| Badezimmer | 2 |
Kosten
| Kaufpreis |
495.000 € |
|---|
Finanzierungsrechner:
Kaufpreis:
600.000 €
Eigenkapital:
600.000 €
Monatliche Rate
0 €
Effektiver Jahreszins
0 %
Sollzinsbindung
10 Jahre
Bausubstanz & Energieausweis
| Baujahr | unbekannt |
|---|---|
| Energieausweis | liegt vor |
| Energieausweistyp | Bedarfsausweis |
| Energieverbrauchskennwert | 18,0 kWh/(m²*a) |
Beschreibung des Objekts
Ausstattung
Bei Living Haus sind die Architektenleistungen, von der Planung bis zum Bauantrag, ebenso wie das Bodengutachten, die Baustellentoilette, der Container und sämtliche Bauversicherungen bereits im Preis enthalten.
Lage
Exklusives Grundstück in schöner Lage - Ihr Traumgrundstück in Schwalbach Hülzweiler! 850qm
Sonstige Angaben
Sicherheit beim Hausbau hat höchste Priorität!
Deshalb inkludiert Living Haus automatisch vier essenzielle Versicherungen:
✅Bauherren-Haftpflichtversicherung
✅Bauleistungsversicherung
✅Bauhelfer-Unfallversicherung
✅Wohngebäudeversicherung inkl. Glasdeckung.
Nicht enthalten sind individuelle Finish-Materialien sowie Außen-, Nebenanlagen-, Kauf-, und Baunebenkosten. Das Angebot stellt eine Beispiel-Bebauung dar; verschiedene Gestaltungsmöglichkeiten sind vorhanden, sprechen Sie mich darauf an!
Die projektierten Grundstücke stammen von Erschießungsträgern, Maklern oder Privatpersonen.
Unsere Rolle beschränkt sich auf den Bau als Unternehmen!
Mobil erreichbar unter: 0177/6797704
Adresse
66773 Schwalbach
Interessante Orte
Preis- und Lageinformationen
Preistrend für Bestandsimmobilien in Schwalbach