Dieses Einfamilienhaus aus dem Jahr 1933, das auf einem ca. 610 m² großen Grundstück rund 158 m² Wohnfläche und insgesamt 7 Zimmer bietet, steht zum Verkauf. Ideal für individuelle Wohnideen und vielseitige Gestaltungsmöglichkeiten!
Das Haus befindet sich in einem sanierungsbedürftigem Zustand und eröffnet damit vielfältige Gestaltungsmöglichkeiten – sei es für Eigennutzer, die sich ihren Wohntraum nach eigenen Vorstellungen schaffen möchten, oder für Investoren mit Blick auf Wertsteigerungspotenzial.
Ein großer Vorteil ist, dass das Haus komplett entkernt wurde und Sie sofort mit der Gestaltung Ihres neuen Heims loslegen können. Die großzügige Terrasse wurde wegen den umfassenden Entkernungsarbeiten abgebaut und steht dem neuen Eigentümer für den Wiederanbau zur Verfügung.
Wichtige Modernisierungen wurden bereits umgesetzt:
- Das Dach wurde 2010 erneuert, der Dachstuhl 2024 gedämmt.
- Die Fenster stammen überwiegend aus den Jahren 2006/2007.
- Versorgungsleitungen wurden 2005/2006 erneuert, die Wasserleitungen sind aus Kupfer, die Abwasserleitungen aus Kunststoff.
- Die Elektrikinstallation besteht aus Kupferkabel und wurde bereits zu ca. 50% (ohne Beanstandung) geprüft.
- Glasfaser liegt bereits an
Aktuell verfügt das Haus über keine funktionierende Heizungsanlage – ein Vorteil für Käufer, die direkt in ein modernes, effizientes Heizsystem investieren möchten. Gas liegt an, ist derzeit jedoch stillgelegt.
Im Inneren überzeugt das Haus durch seinen klassischen Grundriss, großzügige Zimmeraufteilungen und teils erhaltene alte Dielenböden, die nach Aufarbeitung wieder ihren ursprünglichen Charme entfalten können.
Die Grundrisse und Ansichten verdeutlichen die vielfältigen Nutzungsmöglichkeiten – von einer individuellen Familienimmobilie bis hin zu einer Kombination aus Wohnen und Arbeiten. Das Grundstück selbst bietet mit seiner Größe zusätzliche Freiflächen, die für Garten, Spielbereiche oder weitere Bauoptionen genutzt werden können.
Attraktive Lage: Komplett entkerntes EFH! | Gestaltungsspielraum und Charakter!
04442 Zwenkau
Die vollständige Adresse der Immobilie erhalten Sie vom Anbieter.
Auf Karte anzeigen
Die vollständige Adresse der Immobilie erhalten Sie vom Anbieter.
Finanzierungszertifikat
In nur zwei Minuten zu Ihrem persönlichen Finanzierungszertifkat.
Infos
| Haustyp | Einfamilienhaus |
|---|---|
| Etagenzahl | 3 |
| Wohnfläche ca. | 158 m2 |
| Grundstücksfläche | 610 m2 |
| Bezugsfrei ab | sofort |
| Zimmer | 7 |
| Badezimmer | 2 |
| Anzahl Garage/Stellplatz | 2 |
Kosten
| Kaufpreis |
320.000 € |
|---|---|
| Provision |
3,57% vom Kaufpreis (inkl. MwSt.) Provisionsteilung - hälftige Käufer- bzw. Verkäuferprovision in Höhe von je 3,57 % inkl. 19 % Umsatzsteuer vom endgültigen Erwerbspreis (fällig für den Käufer bei Vertragsabschluss und nach Eingang der Verkäuferprovision) |
Finanzierungsrechner:
Kaufpreis:
600.000 €
Eigenkapital:
600.000 €
Monatliche Rate
0 €
Effektiver Jahreszins
0 %
Sollzinsbindung
10 Jahre
Bausubstanz & Energieausweis
| Baujahr | 1933 |
|---|---|
| Letzte Sanierung | 2024 |
| Energieausweis | laut Gesetz nicht erforderlich |
Beschreibung des Objekts
Ausstattung
*** Highlights ***
- projektiertes EFH in Seenähe
- ruhige Lage
- 158,54 m² Wohnfläche
- 610 m² Grundstück
- 7 Zimmer
- 2 Bäder
- Terrasse
- Dach & Dachstuhl bereits erneuert/gedämmt
- Glasfaser liegt an
Lage
Das Haus befindet sich in einer ruhigen und gewachsenen Wohngegend in Zwenkau, einer charmanten Kleinstadt südlich von Leipzig. Hier genießen Sie die perfekte Kombination aus naturnahem Wohnen und guter Anbindung an die Metropolregion.
Nur wenige Minuten entfernt befindet sich der Zwenkauer See. Der größte See im Leipziger Neuseenland ist ein echtes Highlight: Ob Segeln, Surfen, Stand-up-Paddling, Baden oder gemütliche Spaziergänge und Radtouren entlang der Uferpromenade – hier eröffnet sich ein unvergleichlicher Freizeit- und Erholungswert direkt vor der Haustür.
Auch das kulturelle Leben rund um den See, mit Cafés, Restaurants und Veranstaltungen am Hafen, macht die Lage besonders attraktiv.
Die Innenstadt von Zwenkau mit Einkaufsmöglichkeiten für den täglichen Bedarf, Ärzten, Apotheken, Schulen und Kindergärten ist ebenfalls in kurzer Zeit erreichbar. Für Pendler ist die Anbindung ideal: Über die Bundesstraßen B2 und B95 sowie den öffentlichen Nahverkehr gelangen Sie schnell nach Leipzig und in die umliegenden Städte.
Die Lage verbindet somit ruhiges, familienfreundliches Wohnen mit einem hohen Freizeitwert und einer sehr guten Infrastruktur – ein Standort, der nicht nur heute, sondern auch in Zukunft attraktiv bleibt.
Sonstige Angaben
Hinweis zur Richtigkeit und Vollständigkeit der Angaben:
Der Makler weist darauf hin, dass die von ihm weitergegebenen Objektinformationen vom Verkäufer bzw. von einem vom Verkäufer beauftragten Dritten stammen und von ihm, dem Makler, auf ihre Richtigkeit nicht überprüft worden sind. Es ist Sache des Kunden, diese Angaben auf ihre Richtigkeit hin zu überprüfen. Der Makler, der diese Informationen nur weitergibt, übernimmt für die Richtigkeit keinerlei Haftung.
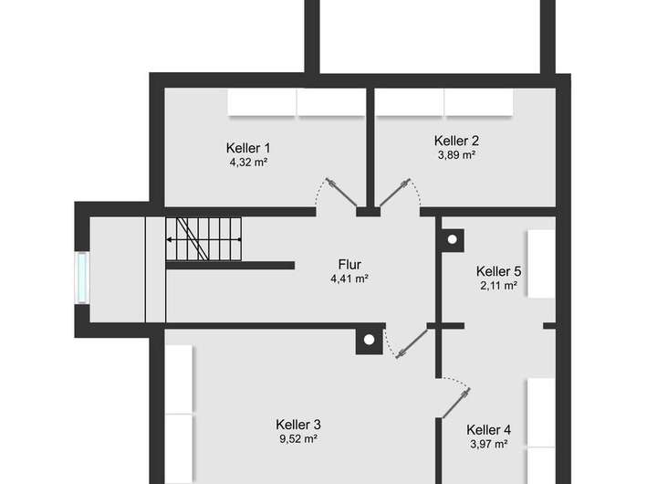
Grundriss
Grundriss UG Bestand
>
>
Grundriss EG Bestand
>
>
Grundriss OG Bestand
>
>
Grundriss DG Bestand
>
>
Adresse
04442 Zwenkau
Interessante Orte
Preis- und Lageinformationen
Preistrend für Bestandsimmobilien in Zwenkau