Dieser attraktive, sehr geschmackvoll und hochwertig modernisierte Winkelbungalow befindet sich in ruhiger und grüner Lage von Erkrath-Hochdahl.
Er überzeugt vor allem durch die durchdachte, neuwertige und zukunftsweisende Energietechnik. Von Außen nicht erkennbar, verfügt das Haus über eine sehr große und vollwertig nutzbare Fläche im Untergeschoss. Die reine Wohnfläche beträgt 140m², die hochwertig nutzbare Nutzfläche 60m².
Helle, lichtdurchflutete Räume und die Lage an einer verkehrsberuhigten Anliegerstraße ohne Durchgangsverkehr machen dieses Haus zu einem attraktiven neuen Zuhause.
Sehr gepflegter und exklusiv ausgestatteter Bungalow mit viel zusätzlicher Nutzfläche in ruhiger ...
40699 Erkrath
Die vollständige Adresse der Immobilie erhalten Sie vom Anbieter.
Auf Karte anzeigen
Die vollständige Adresse der Immobilie erhalten Sie vom Anbieter.
Finanzierungszertifikat
In nur zwei Minuten zu Ihrem persönlichen Finanzierungszertifkat.
Infos
| Haustyp | Bungalow |
|---|---|
| Etagenzahl | 2 |
| Wohnfläche ca. | 200 m2 |
| Grundstücksfläche | 395 m2 |
| Bezugsfrei ab | Sofort |
| Zimmer | 4 |
| Schlafzimmer | 2 |
| Badezimmer | 2 |
| Garage/Stellplatz | Garage |
| Anzahl Garage/Stellplatz | 1 |
Kosten
| Kaufpreis |
750.000 € |
|---|---|
| Provision |
2,38% Käuferprovision inkl. MwSt., fällig und verdient mit Abschluss des notariellen Kaufvertrages. Der Makler hat mit dem Verkäufer einen Makleralleinauftrag mit gleicher Provisionsregelung abgeschlossen. |
Finanzierungsrechner:
Kaufpreis:
600.000 €
Eigenkapital:
600.000 €
Monatliche Rate
0 €
Effektiver Jahreszins
0 %
Sollzinsbindung
10 Jahre
Bausubstanz & Energieausweis
| Baujahr | 1971 |
|---|---|
| Letzte Sanierung | 2024 |
| Objektzustand | Vollständig Renoviert |
| Qualität der Austattung | Gehoben |
| Heizungsart | Fernwärme |
| Wesentliche Energieträger | Solarheizung, Pelletheizung, Fernwärme |
| Energieausweis | liegt vor |
| Energieausweistyp | Verbrauchsausweis |
| Energieverbrauchskennwert | 97,2 kWh/(m²*a) |
| Energieeffizienzklasse | C |
97,2
kWh/(m²*a)
Energieeffizienzklasse C
- A+
- A
- B
- C
- D
- E
- F
- G
- H
- 0
- 25
- 50
- 75
- 100
- 125
- 150
- 175
- 200
- 225
- >250
Beschreibung des Objekts
Ausstattung
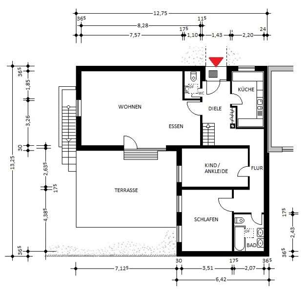
Der große und helle Wohn-Essbereich mit wunderbarem Blick auf die Terrasse und in den nahezu uneinsehbaren Garten ist der Mittelpunkt des Hauses.
Der offene Wohnraum mit elegantem Parkettboden und den großen, bodentiefen Fenstern sorgt für Helligkeit und ein angenehmes Wohnklima.
Die Küche ist hochwertig ausgestattet und ist zusammen mit allen Einbaugeräten bereits Bestandteil der Kaufsache.
Ein großes Schlafzimmer, ein modernes und geschmackvolles Badezimmer mit Dusche sowie ein weiterer, flexible als Arbeits- Ankleide- oder Kinderzimmer nutzbarer Raum komplettieren zusammen mit einem eleganten Gäste WC im großzügigen Entrée die Ausstattung der Wohnebene.
Glastüren sowie Oberlichter in Flur und Gäste-WC ermöglichen eine effektive Ausnutzung des Tageslichtes.
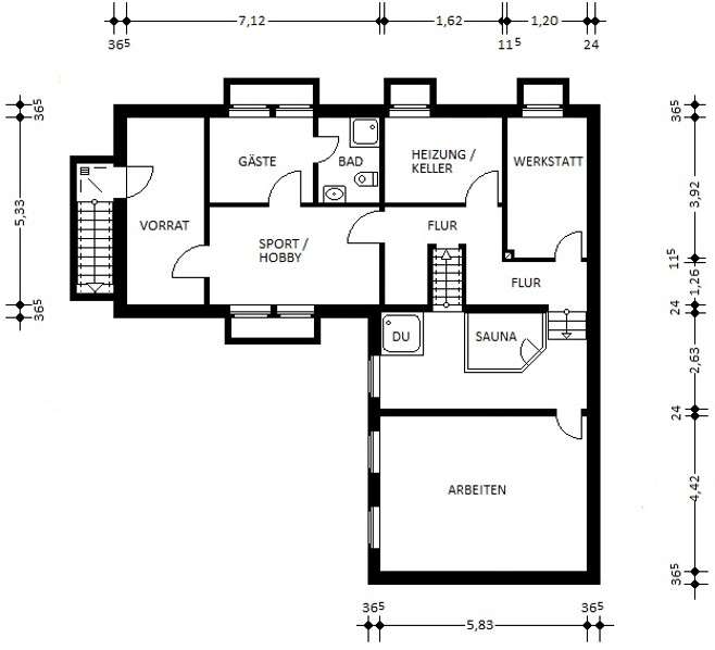
Das Untergeschoss bietet viel zusätzliche Nutzfläche mit einem sehr großen Raum, z.B. als Arbeitszimmer, einem Gästezimmer mit Duschbad ensuite sowie einem Werkraum und einem großen Vorratsraum, der mit einer Tür zum Garten hin ausgestattet ist.
Der Sportbereich und eine moderne, schwedische Dampfsauna mit angrenzender Dusche ist Ihre persönliche Wellnessoase.
Im Technikraum befindet sich neben dem Übergabepunkt der Fernwärme, der Wärmetauscher mit Pufferspeicher, die Entkalkungsanlage sowie der Stellplatz für Waschmaschine und Trockner. Im angrenzenden Flurbereich ist die Technik für die Solaranlage installiert und der Batteriespeicher für den Solarstrom aufgestellt.
Im schönen Innenhof punktet die große Terrasse, das im japanischen Stil gehaltene Gartenhaus und das hochwertige Edelstahlwasserspiel. Die vollelektrische Markise spendet nicht nur Schatten auf der Süd-Terrasse, sondern kann diese auch dimmbar beleuchten.
Die Einzelgarage mit elektrischem Tor und hochwertiger Ausstattung befindet sich direkt neben dem Haus.
Die Ausstattung ist ausgesprochen gepflegt und wer ein Haus sucht, welches mit wenig Aufwand bezugsfertig ist, hat ein wirklich passendes Angebot gefunden.
Insbesondere die Energie- und Sicherheitstechnik macht Ihr neues Zuhause zu einer sicheren Investition in die Zukunft. RC-2 Fenster und die Alarmanlage mit der Möglichkeit einer 24/7 Aufschaltung auf einen Sicherheits-dienst sorgen für ein gutes Gefühl.
Gerne erläutern wir Ihnen dies und andere Besonderheiten der Immobilie in einem persönlichen Gespräch und im Rahmen einer Besichtigung vor Ort.
Die ausführliche Austattungsliste und die Auflistung der umfangreichen Modernisierungen finden Sie im ausführlichen Exposé, welches wir Ihnen gerne zur Verfügung stellen.
Lage
Das Haus befindet sich in sehr guter Wohnlage von Erkrath-Hochdahl an einer verkehrsberuhigten Anliegerstraße auf einem knapp 400 m² großen Grundstück mit uneinsehbaren Innenhof und viel Privatsphäre.
Die Nachbarschaft besteht aus gehobener Ein- und Mehrfamilienhausbebauung und das Landschaftsschutzgebiet Hildener Heide mit all seinen Erholungsmöglichkeiten befindet sich unweit Ihres neuen Zuhauses.
Das Stadtzentrum von Erkrath-Hochdahl, Schulen, Kindergärten, Ärzte, Apotheken und Einkaufsmöglichkeiten sind wenige Fahrminuten entfernt, bzw. teilweise fußläufig zu erreichen.
Die Anbindung an den öffentlichen Nahverkehr und an die Autobahn A3 in Richtung Köln und Oberhausen sowie die A46 nach Düsseldorf und Wuppertal ist ideal. Die Landeshauptstadt sowie der Flughafen von Düsseldorf sind in 20 Autominuten erreicht.
Die Kombination aus der sehr guten, gepflegten Umgebung und der dennoch zentralen Lage machen Ihr neues Zuhause zu einem idealen Ausgangspunkt für Beruf und Freizeit.
Sonstige Angaben
Zögern Sie nicht einen persönlichen Besichtigungstermin zu vereinbaren.
Bitte haben Sie dafür Verständnis, dass wir Anfragen nur nach Bekanntgabe Ihrer kompletten Kontaktdaten bearbeiten können.
Vielen Dank
Grundriss
Grundriss EG
>
>
Grundriss UG
>
>
Adresse
40699 Erkrath
Interessante Orte
Preis- und Lageinformationen
Preistrend für Bestandsimmobilien in Erkrath