Dieser ebenerdige großzügige Walmdachbungalow wurde 1973 auf einem ca. 1032 m² großen Grundstück gebaut. Die insgesamt ca. 152 m² Wohnfläche verteilen sich auf eine ca. 118 m² große Wohnung im Haupthaus mit drei Schlafzimmern, Wohnzimmer, eine offene Küche mit angrenzendem Esszimmer, Abstellraum, Hauswirtschaftsraum, Diele, Badezimmer und Gäste WC. Das Gäste WC wurde 2009 erneuert. Vom Wohnzimmer aus gelangt man auf die überdachte Terrasse, von der man einen schönen Blick in den Garten genießen kann. Besonders hervorzuheben isst der vorhandene Außenkamin.
Im Jahr 1982 wurden zwei Räume angebaut und sind zurzeit als ca. 34 m² große Einliegerwohnung mit eigenen Eingangsbereich vermietet. Die dazugehörige Terrasse bietet die Möglichkeit die tägliche Sonnenscheindauer möglichst lange zu genießen.
Alle Versorgungsleitungen laufen zentral im Haupthaus zusammen. Die Heizungsanlage stammt aus dem Jahr 2021.
Die doppelt verglasten Holzfenster wurden 2022 zum Teil durch Kunststofffenster ersetzt.
2024 wurde eine Garage mit einem elektrischen Garagentor errichtet.
Die Hauptwohnung und die Einliegerwohnung sind zurzeit vermietet. Die Nettokaltmiete liegt bei 1400,00 € monatlich.
Walmdachbungalow mit Einliegerwohnung in Apen-Roggenmoor - attraktiv vermietete Kapitalanlage
26689 Apen
Die vollständige Adresse der Immobilie erhalten Sie vom Anbieter.
Auf Karte anzeigen
Die vollständige Adresse der Immobilie erhalten Sie vom Anbieter.
Finanzierungszertifikat
In nur zwei Minuten zu Ihrem persönlichen Finanzierungszertifkat.
Infos
| Haustyp | Einfamilienhaus |
|---|---|
| Etagenzahl | 1 |
| Wohnfläche ca. | 152 m2 |
| Grundstücksfläche | 1.032 m2 |
| Zimmer | 7 |
| Schlafzimmer | 4 |
| Badezimmer | 2 |
Kosten
| Kaufpreis |
228.000 € |
|---|---|
| Provision |
3,57 % incl. MwSt. |
Finanzierungsrechner:
Kaufpreis:
600.000 €
Eigenkapital:
600.000 €
Monatliche Rate
0 €
Effektiver Jahreszins
0 %
Sollzinsbindung
10 Jahre
Bausubstanz & Energieausweis
| Baujahr | 1973 |
|---|---|
| Objektzustand | Renovierungsbedürftig |
| Qualität der Austattung | Einfach |
| Heizungsart | Zentralheizung |
| Wesentliche Energieträger | Gas |
| Energieausweis | liegt vor |
| Energieausweistyp | Bedarfsausweis |
| Energieverbrauchskennwert | 251,5 kWh/(m²*a) |
| Energieeffizienzklasse | H |
251,5
kWh/(m²*a)
Energieeffizienzklasse H
- A+
- A
- B
- C
- D
- E
- F
- G
- H
- 0
- 25
- 50
- 75
- 100
- 125
- 150
- 175
- 200
- 225
- >250
Beschreibung des Objekts
Ausstattung
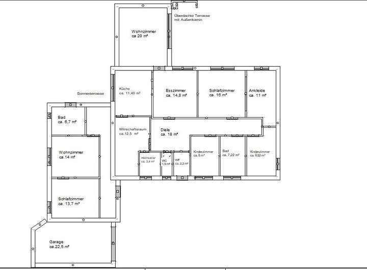
Die Wohnfläche teilt sich wie folgt auf:
Haupthaus:
Wohnen: ca. 20 m²
Küche/Esszimmer: ca. 26,2 m²
Schlafzimmer Eltern: ca. 16 m²
Ankleidezimmer: ca. 11 m ²
Kinderzimmer I: ca. 9,52 m ²
Kinderzimmer II: ca. 8 m ²
Diele: ca. 18 m ²
Windfang: ca. 2,2 m²
Bad: ca. 7,22 m²
WC: ca. 1,9 m²
Wirtschaftsraum: ca. m²
Hochkeller: ca. 3,4 m²
überdachte Terrasse mit Außenkamin
Einliegerwohnung:
Wohnzimmer : ca. 14 m²
Schlafzimmer: ca. 13,7 m²
Bad: ca. 6,7 m²
Terrasse mit Abendsonne
Der Dachboden ist zum größten Teil isoliert und bietet noch Ausbaureserven.
Für weitere Informationen oder einen Besichtigungstermin stehen wir Ihnen gerne zur Verfügung.
Lage
Die Immobilie befindet sich im idyllischen Ortsteil Roggenmoor der Gemeinde Apen im Landkreis Ammerland. Die Umgebung besticht durch ihre ruhige und naturnahe Lage, die von weitläufigen Moor- und Wiesenflächen geprägt ist. In unmittelbarer Nähe lädt das Naturschutzgebiet Roggenmoor mit seinen charakteristischen Hochmoorlandschaften und Spazierwegen zu erholsamen Stunden in der Natur ein. Auch die reizvolle Kieskuhle Roggenmoor mit ihrem kleinen See und dem angrenzenden Moorbirkenwald ist ein beliebtes Ziel für Spaziergänger und Naturfreunde.
Trotz der ländlichen Atmosphäre ist die Infrastruktur sehr gut: Die Ortschaften Apen und Augustfehn sind in wenigen Fahrminuten erreichbar und bieten sämtliche Einrichtungen des täglichen Bedarfs wie Einkaufsmöglichkeiten, Schulen, Kindergärten, Ärzte und Restaurants. Über die nahegelegene Bundesautobahn A 28 besteht zudem eine gute Verkehrsanbindung in Richtung Oldenburg, Leer und Bremen.
Roggenmoor zeichnet sich durch eine aufgelockerte Bebauung mit überwiegend Einfamilienhäusern und großzügigen Grundstücken aus. Die Lage vereint somit auf ideale Weise ländliche Ruhe und eine hohe Wohn- und Lebensqualität mit der Nähe zu allen wichtigen Versorgungseinrichtungen.
Sonstige Angaben
Übergabe dieser Immobilie nach Absprache!
Bei mehreren Interessenten behalten wir uns vor, in ein Bieterverfahren zu gehen.
Es wird darauf hingewiesen, dass die Objektinformationen, Unterlagen, Pläne etc. vom Eigentümer stammen. Eine Haftung für die Richtigkeit oder Vollständigkeit der Angaben wird daher vom Makler nicht übernommen.
Nach Unterzeichnung des Notarvertrages ist eine Käuferprovision in Höhe von 3,57 % inkl. der gesetzlichen Mehrwertsteuer, vom Käufer an die Firma iad Deutschland zu zahlen. Wir haben einen provisionspflichtigen Maklervertrag in gleicher Höhe mit dem Verkäufer abgeschlossen (§656c BGB)
Grundriss
Grundriss Haupthaus und Einlie
>
>
Adresse
26689 Apen
Interessante Orte
Preis- und Lageinformationen
Preistrend für Bestandsimmobilien in Apen