Diese einzigartige, lichtdurchflutete Dachterrassenwohnung sucht ihresgleichen! In einem erst 2015 fertiggestellten, ansprechenden Wohnensemble befindet sich die Wohnung als Penthouse und erstreckt sich über die gesamte Etage. Genießen Sie täglich aufs Neue ein weitläufiges Wohngefühl mit tollen Blickbezügen.
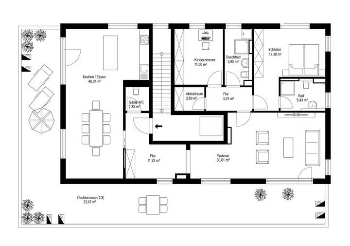
Der individuelle Grundriss begeistert auf Anhieb. Auf ca. 155m² Wohnfläche verteilen sich zwei Schlafzimmer, zwei Bäder, ein Wohnzimmer, ein Gäste-WC und ein schicker Koch-/Essbereich. Die Dachterrasse mit einer Fläche von rund 70m² ist mit zwei elektrischen Markisen ausgestattet und wurde zu 1/3 in der Wohnfläche angerechnet. Die Dachterrasse bietet einen unschätzbaren Mehrwert und stellt eine tolle Erweiterung des Wohnraums dar. Sonnige Stunden unter freiem Himmel mit Blick in Richtung Olchinger See verheißen Entspannung und Genuss.
Der Schlaftrakt ist ausgeklügelt konzipiert: Das Masterschlafzimmer mit Bad en Suite ist quasi ein abgeschlossener Bereich. Für das zweite Schlafzimmer, welches auch ideal als Kinder-, Gäste-, oder Arbeitszimmer genutzt werden kann, steht ein eigenes Duschbad zur Verfügung. Im Flurbereich befindet sich ein praktischer Abstellraum.
Die Wohnung ist mit einem gefälligen Feinsteinzeug-Boden ausgestattet, verfügt über Fußbodenheizung und elektrische Rollläden. Die tolle Einbauküche mit Kochinsel ist, genauso wie die Einbauten, bereits im Kaufpreis enthalten. Es stehen zwei sehr geräumige Kellerabteile zur Verfügung, weiter gehören zwei Einzel-Stellplätze in der Tiefgarage zur Wohnung.
Lassen Sie sich nachhaltig von dieser tollen Wohnung begeistern und vereinbaren Sie Ihren Besichtigungstermin.
Stadt & See: Dachterrassentraum in idealer Lage
82140 Olching
Die vollständige Adresse der Immobilie erhalten Sie vom Anbieter.
Auf Karte anzeigen
Die vollständige Adresse der Immobilie erhalten Sie vom Anbieter.
Finanzierungszertifikat
In nur zwei Minuten zu Ihrem persönlichen Finanzierungszertifkat.
Infos
| Wohnungskategorie | Penthouse |
|---|---|
| Etage | 2 von 2 |
| Wohnfläche ca. | 155 m2 |
| Nutzfläche | 47 m2 |
| Bezugsfrei ab | sofort |
| Zimmer | 4 |
| Schlafzimmer | 2 |
| Badezimmer | 2 |
| Garage/Stellplatz | Tiefgarage |
| Anzahl Garage/Stellplatz | 2 |
Kosten
| Kaufpreis |
998.000 € |
|---|---|
| Preis für Garage/Stellplatz | 60.000 € |
| Provision |
2,38% inkl. 19% MwSt. |
Finanzierungsrechner:
Kaufpreis:
600.000 €
Eigenkapital:
600.000 €
Monatliche Rate
0 €
Effektiver Jahreszins
0 %
Sollzinsbindung
10 Jahre
Bausubstanz & Energieausweis
| Baujahr | 2015 |
|---|---|
| Objektzustand | Gepflegt |
| Heizungsart | Fußbodenheizung |
| Wesentliche Energieträger | expose.parameter.energySourcesEnev2014.COMBINED_HEAT_AND_POWER_REGENERATIVE_ENERGY |
| Energieausweis | liegt vor |
| Energieausweistyp | Verbrauchsausweis |
| Energieverbrauchskennwert | 74,6 kWh/(m²*a) |
| Energieeffizienzklasse | B |
74,6
kWh/(m²*a)
Energieeffizienzklasse B
- A+
- A
- B
- C
- D
- E
- F
- G
- H
- 0
- 25
- 50
- 75
- 100
- 125
- 150
- 175
- 200
- 225
- >250
Beschreibung des Objekts
Ausstattung
- Exklusive Einbauküche mit Kochinsel
- Fußbodenheizung in der gesamten Wohnung
- Elektrische Rollläden
- Zwei Bäder mit Fenstern
- Moderne Feinsteinzeug-Fliesen in der gesamten Wohnung
- Separates Gäste-WC
- Abstellraum in der Wohnung
- Video-Gegensprechanlage
- Zwei geräumige Kellerabteile mit Steckdosen
- Lift vom Keller- bis ins Dachgeschoß
- Zwei nebeneinanderliegende TG-Stellplätze mit Elektro-Anschluss
- U.v.m.
Lage
Fußläufig zum See! Hier wird dieser Traum tatsächlich wahr. Olching, nordwestlich von München, ist eine beliebte kleine Stadt mit hohem Freizeitwert und sehr guter Infrastruktur. Olching empfiehlt sich als Lebensstil, bei dem sich urbane Aktivität und Naturverbundenheit angenehm ergänzen.
Olching verfügt über eine Vielzahl an Kindertageseinrichtungen, Schulen sind in vorbildlichem Umfang von der Grundschule bis hin zum Gymnasium vorhanden. Auch eine Montessorischule und eine Volkshochschule sind vorhanden. Freizeitmäßig überzeugt Olching gleich in mehreren Punkten: Besonders hervorzugeben sind dabei der Golfclub Olching mit einem top gepflegten 18-Loch Platz, welcher nur ca. 1,5km entfernt liegt, weiter das beliebte Hallenbad mit fairen Eintrittspreisen, die Kulturwerkstatt mit zahlreichen Veranstaltungen, zwei Sportvereine mit verschiedensten Sparten uvm. Das besondere Highlight speziell an dieser Lage ist die unmittelbare Nähe zum Olchinger See (ca. 5 Fahrradminuten) und die fußläufige Entfernung zur Olchinger Einkaufsstraße und zur S-Bahn.
Rundum eine tolle Lage mit hohem Freizeitwert.
Sonstige Angaben
Dieses Exposé soll in knapper Form die wesentlichen Daten des Objekts vermitteln. Die Erfahrung lehrt, dass zu einer vernünftigen Beurteilung eines Objekts alleine die Besichtigung vor Ort sowie das persönliche Gespräch mit uns gehören. Zu beidem stehen wir, ebenso wie für weitere Informationen und Rückfragen, selbstverständlich gerne zur Verfügung. Wir freuen uns auf Ihren Anruf! Alle in diesem Exposé gemachten Angaben beruhen auf Angaben des Verkäufers bzw. von Dritten. Trotz sorgfältiger Recherche kann für etwaige Irrtümer keine Haftung übernommen werden. Zwischenverkauf vorbehalten. 2,38% Käuferprovision inkl. 19% MwSt., fällig und verdient bei Abschluss eines notariellen Kaufvertrages. Wir haben mit dem Verkäufer einen provisionspflichtigen Maklervertrag in gleicher Höhe abgeschlossen (Maklervertrag gem. §656c BGB). Im Übrigen gelten unsere allgemeinen Geschäftsbedingungen.
Ihre WALSER IMMOBILIENGRUPPE
Grundriss
Grundriss
>
>
Adresse
82140 Olching
Interessante Orte
Preis- und Lageinformationen
Preistrend für Bestandsimmobilien in Olching