Diese außergewöhnliche Villa befindet sich auf einem Grundstück mit einer Größe von 1.184 m² und besticht durch einen direkten Zugang zum Alsterlauf mit Bootsanleger.
Die Villa ist im gegenwärtigen Zustand in drei abgeschlossene Wohnungen aufgeteilt, wurde allerdings im Jahr 1930 ursprünglich als prächtiges Einfamilienhaus konzipiert. Die Varianten der zukünftigen Nutzung sind vielfältig, ob als repräsentatives Einfamilienhaus, stilvolles Mehrgenerationenobjekt oder zur exklusiven Vermietung – alle Optionen stehen offen.
Die Rotklinkervilla bietet ca. 435 m² Wohnfläche, welche sich über die Beletage, das Ober- und Dachgeschoss sowie über eine Einliegerwohnung im Souterrain verteilt.
Die Villa ist renovierungs- bzw. sanierungsbedürftig – eine Chance für Visionäre, hier ein architektonisches Meisterwerk entstehen zu lassen, das Stil, Lage und Lebensqualität vereint.
Leben am Wasser in seiner schönsten Form: morgens das sanfte Plätschern der Alster, abends der Blick über ein Zuhause voller Wärme und Exklusivität. Besonders hervorzuheben ist das in vielen Teilen noch originale Treppenhaus, historische Stilelemente wie das elegante Eichenholzparkett, kunstvolle Bleiverglasungen – auch am Hallenfenster – und zum Teil original erhaltene Türen mit passenden Beschlägen und Gläsern.
Das Anwesen wird ohne Mietverhältnisse übergeben.
Ein seltenes Juwel – wir laden Sie herzlich zur Besichtigung ein.
Rotklinkervilla mit Bootsanleger am Alsterlauf
22297 Hamburg
Die vollständige Adresse der Immobilie erhalten Sie vom Anbieter.
Auf Karte anzeigen
Die vollständige Adresse der Immobilie erhalten Sie vom Anbieter.
Finanzierungszertifikat
In nur zwei Minuten zu Ihrem persönlichen Finanzierungszertifkat.
Infos
| Haustyp | Mehrfamilienhaus |
|---|---|
| Wohnfläche ca. | 435 m2 |
| Nutzfläche | 123 m2 |
| Grundstücksfläche | 1.184 m2 |
| Zimmer | 12,5 |
| Schlafzimmer | 7 |
| Badezimmer | 5 |
| Anzahl Garage/Stellplatz | 2 |
Kosten
| Kaufpreis |
3.950.000 € |
|---|---|
| Provision |
6,25 % inkl. ges. MwSt. |
Finanzierungsrechner:
Kaufpreis:
600.000 €
Eigenkapital:
600.000 €
Monatliche Rate
0 €
Effektiver Jahreszins
0 %
Sollzinsbindung
10 Jahre
Bausubstanz & Energieausweis
| Baujahr | 1930 |
|---|---|
| Objektzustand | Gepflegt |
| Heizungsart | Zentralheizung |
| Wesentliche Energieträger | Gas |
| Energieausweis | liegt vor |
| Energieausweistyp | Bedarfsausweis |
| Energieverbrauchskennwert | 200,3 kWh/(m²*a) |
| Energieeffizienzklasse | G |
200,3
kWh/(m²*a)
Energieeffizienzklasse G
- A+
- A
- B
- C
- D
- E
- F
- G
- H
- 0
- 25
- 50
- 75
- 100
- 125
- 150
- 175
- 200
- 225
- >250
Beschreibung des Objekts
Lage
Alsterdorf zählt zu den begehrtesten Wohnlagen Hamburgs – stadtnah und dennoch grün. Der Stadtteil vereint urbanes Lebensgefühl mit naturnaher Erholung. Besonders die Nähe zum idyllischen Alsterlauf macht die Lage einzigartig: Spaziergänge, Joggingrunden oder Radtouren entlang des Wassers bieten eine hohe Lebensqualität direkt vor der Haustür. Alter Baumbestand und die stilvolle Architektur prägen das charmante Straßenbild. Kindergärten sowie alle Schulformen befinden sich in der Nähe, ebenso Ärzte, Cafés und Restaurants. Die U-Bahn-Station "Lattenkamp" sowie diverse Buslinien gewährleisten eine exzellente Anbindung an die Innenstadt, den Flughafen und das Umland. Einkaufsmöglichkeiten in den nahegelegenen Stadtteilen Eppendorf und Winterhude erreicht man in wenigen Minuten mit dem Auto oder Fahrrad. Eine Lage, die für jede Lebensphase das passende Umfeld bietet – ruhig, grün, gut angebunden und voller Lebensqualität.
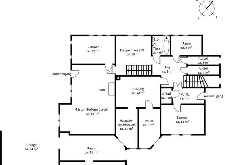
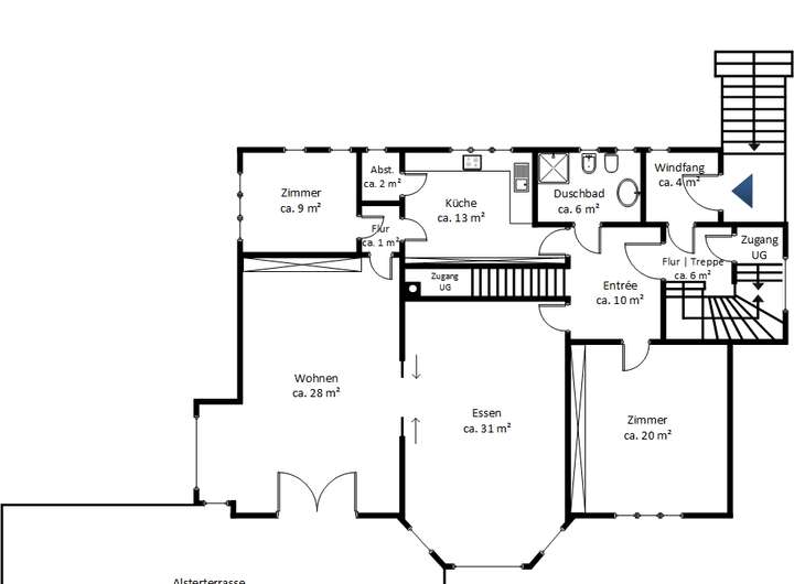
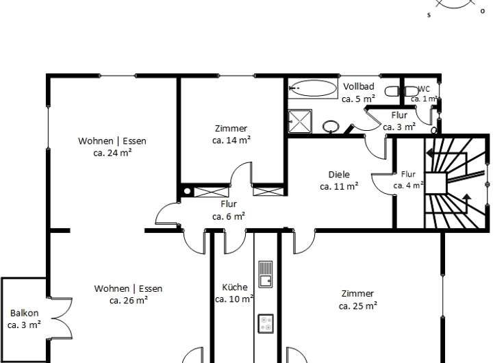
Grundriss
Beletage
>
>
Obergeschoss
>
>
Dachgeschoss
>
>
Untergeschoss
>
>
Adresse
22297 Hamburg
Interessante Orte
Preis- und Lageinformationen
Preistrend für Bestandsimmobilien in Alsterdorf