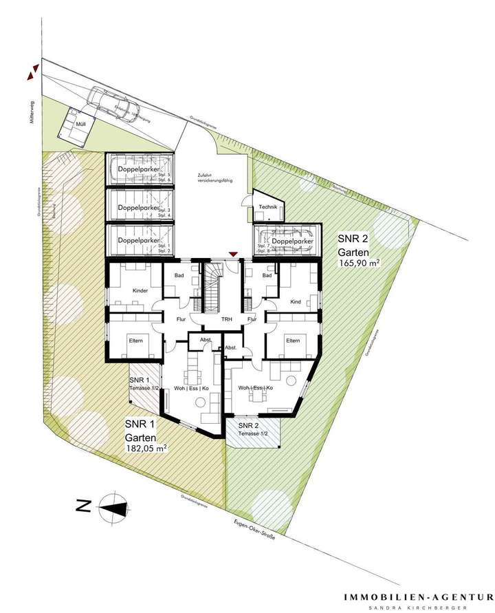
Diese ansprechende Erdgeschosswohnung ist ein ideales Investment für Kapitalanleger und bietet eine hervorragende Kombination aus modernem Design und nachhaltiger Technologie. Mit einer Wohnfläche von 89,1 m², einer großen Terrasse und einer großzügigen Gartenfläche von 182 m² präsentiert sich diese Immobilie im Erstbezug und überzeugt durch ihre gehobene Ausstattung. Der Baustart ist für das Frühjahr 2026 vorgesehen. Die Fertigstellung des Projekts wird voraussichtlich im 4. Quartal 2026 erfolgen.
Die Wohnung verfügt über drei Zimmer, darunter ein großzügiges Wohn-/Esszimmer mit offener Küche, ein geräumiges Schlafzimmer und ein Kinderzimmer bzw. Büro sowie ein modernes Badezimmer. Die Wohn- und Schlafbereiche sind mit hochwertigem Parkett ausgestattet, während das Bad mit eleganten Fliesen versehen ist. Ein praktischer Abstellraum sorgt für zusätzlichen Stauraum.
Als KfW40 QNG-zertifiziertes Haus punktet diese Immobilie mit außergewöhnlicher Energieeffizienz und Nachhaltigkeit. Die Luft-Wasser-Wärmepumpe und der Stromverbrauch sind optimiert, um Ihre Nebenkosten niedrig zu halten und gleichzeitig einen hohen Komfort zu gewährleisten.
Zu den weiteren Highlights gehören:
- Eigener Garten mit individueller Nutzungsmöglichkeit
- Zwei Duplex-Garagenplätze pro Wohnung – jeweils für 5.000 € verpflichtend zu erwerben.
- Hausgeld: 150 € monatlich
Die Lage in Schwandorf bietet eine ruhige Wohnatmosphäre mit guter Anbindung an die Stadt und allen notwendigen Annehmlichkeiten. Diese Immobilie ist nicht nur eine lohnende Investition, sondern auch ein komfortables Zuhause für anspruchsvolle Eigennutzer oder Mieter.
RESERVIERT - Exklusive Neubauwohnung mit eigenem Garten – nachhaltig Wohnen auf höchstem Niveau
92421 Schwandorf
Die vollständige Adresse der Immobilie erhalten Sie vom Anbieter.
Auf Karte anzeigen
Die vollständige Adresse der Immobilie erhalten Sie vom Anbieter.
Finanzierungszertifikat
In nur zwei Minuten zu Ihrem persönlichen Finanzierungszertifkat.
Infos
| Wohnungskategorie | Erdgeschosswohnung |
|---|---|
| Etage | 0 von 1 |
| Wohnfläche ca. | 89 m2 |
| Bezugsfrei ab | 4. Quartal 2026 |
| Zimmer | 3 |
| Schlafzimmer | 2 |
| Badezimmer | 1 |
| Garage/Stellplatz | Duplex |
| Anzahl Garage/Stellplatz | 2 |
Kosten
| Kaufpreis |
355.000 € |
|---|---|
| Hausgeld |
150 € |
| Preis für Garage/Stellplatz | 10.000 € |
| Provision |
Provisionsfrei für den Käufer! |
Finanzierungsrechner:
Kaufpreis:
600.000 €
Eigenkapital:
600.000 €
Monatliche Rate
0 €
Effektiver Jahreszins
0 %
Sollzinsbindung
10 Jahre
Bausubstanz & Energieausweis
| Baujahr | 2025 |
|---|---|
| Objektzustand | Erstbezug |
| Qualität der Austattung | Gehoben |
| Heizungsart | Wärmepumpe |
| Wesentliche Energieträger | Strom |
| Energieausweis | liegt vor |
| Energieausweistyp | Bedarfsausweis |
| Energieverbrauchskennwert | 5,0 kWh/(m²*a) |
| Energieeffizienzklasse | A+ |
5,0
kWh/(m²*a)
Energieeffizienzklasse A+
- A+
- A
- B
- C
- D
- E
- F
- G
- H
- 0
- 25
- 50
- 75
- 100
- 125
- 150
- 175
- 200
- 225
- >250
Beschreibung des Objekts
Ausstattung
- Energie-Effizienz KfW40 QNG-Standard
- Große Terrasse und eigener Garten
- Hochwertige Parkettböden in den Wohn- und Schlafbereichen (Landhausdiele oder Schiffsboden)
- Ansprechende Fliesen im Bad
- Großzügiger Wohnbereich mit offener Küche
- Geräumiges Schlafzimmer
- Kinderzimmer bzw. Büro
- Praktischer Abstellraum
- Dezentrale Lüftungsanlage für ein behagliches Wohlfühlklima
- Fußbodenheizung mit Einzelraumsteuerung in der gesamten Wohnung
- Bad mit bodengleicher großzügiger Regendusche
- Kunststoff-Fenster mit 3-fach Wärmeschutzverglasung und Stahlkerneinlage
- Elektrische Rollläden
- Video-Sprechanlage
- 2 Duplex-Garagen-Stellplätze sind zum Preis von je 5.000 € mit zu erwerben
- Waschmaschinenanschluß im Bad
- Beheizung über Luft-Wasser-Wärmepumpe
- Ruhige Lage - Wohnen im Grünen
Lage
Fronberg, ein charmanter Ortsteil von Schwandorf, bietet eine ideale Mischung aus ländlichem Flair und städtischer Nähe. Diese idyllische Lage zeichnet sich durch ihre ruhige Wohnatmosphäre und gleichzeitig gute Anbindung an das Stadtzentrum von Schwandorf aus.
Hier genießen Sie die Vorzüge einer kleinen Gemeinde mit engen Nachbarschaftsbeziehungen und gleichzeitigem Zugang zu allen Annehmlichkeiten einer größeren Stadt. Fronberg liegt eingebettet in eine wunderschöne Naturlandschaft, die zu Spaziergängen, Radtouren und Outdoor-Aktivitäten einlädt.
Die Infrastruktur ist hervorragend: Schulen, Kindergärten und ein Bäcker sind fußläufig erreichbar. Die Anbindung an den öffentlichen Nahverkehr gewährleistet eine bequeme Erreichbarkeit von Schwandorf und Umgebung. Zudem profitieren Bewohner von der hervorragenden Verkehrsanbindung, die eine schnelle Verbindung zu größeren Städten wie Regensburg und Nürnberg ermöglicht.
Fronberg ist der perfekte Ort für Familien, die Wert auf eine ruhige Wohngegend legen, aber dennoch die Vorteile einer gut angebundenen Lage schätzen.
Sonstige Angaben
Wir haben Ihr Interesse geweckt? Dann nehmen Sie Kontakt mit uns auf und vereinbaren Sie noch heute Ihren persönlichen Besichtigungstermin.
Bitte haben Sie Verständnis dafür, dass nur Anfragen mit vollständigen Kontaktdaten (Name, Adresse, Telefon, E-Mail) zeitnah beantwortet werden können.
Alle Angaben stammen vom Eigentümer. Angebot freibleibend – Änderungen, Irrtümer und Zwischenverkauf vorbehalten. Für weitere Informationen stehen wir Ihnen gerne zur Verfügung.
Grundriss
Wohnung 1_Page_1
>
>
Grundstück_W1_W2_Page_1
>
>
Adresse
92421 Schwandorf
Interessante Orte
Preis- und Lageinformationen
Preistrend für Bestandsimmobilien in Schwandorf