Objektnr: 1067999
Präsentiert wird eine Immobilie, die wahre Platzvielfalt schenkt! Stets pfleglich behandelt, präsentiert sich das 1964 erbaute Objekt heute in einem einladenden Zustand. Jüngste Modernisierungen wurden im Jahr 2021 durchgeführt.
Rund 323 m² großzügiger Wohnfläche mit 11 Zimmern, darunter 9 Schlafzimmer, werden in diesem Objekt geboten - ideal für große Familien. Daneben stehen 3 Badezimmer mit Dusche/Badewanne sowie 4 Gäste-WC's in der Immobilie bereit. Platz für mehr als nur das Nötigste bietet der Grundriss dank der großen Raumvielfalt - ob gemütliche Rückzugsorte, Bürozimmer oder Platz fürs Hobby. In puncto Ausstattung weiß die Immobilie bspw. mit drei Kaminöfen und einem Kachelofen, sowie teilweise Holzparkettböden zu überzeugen
Freuen Sie sich im Außenbereich nicht nur über zwei Balkone, sondern auch über ein ca. 1.152 m² großes Grundstück. Punkten kann das Haus durch einen großen Garten mit drei Terrasse, der zahlreiche Möglichkeiten eröffnet: Das großflächige Grundstück bietet vielfältige Nutzungsmöglichkeiten. Genießen Sie ungestörte Momente der Entspannung, abgeschirmt von neugierigen Blicken. Darüber hinaus stehen auf der unteren Etage 8 Kellerräume für weitere Stau- und Nutzfläche zur Verfügung. Zuletzt sind 4 Garagen und 4 Freistellplätze Bestandteil des Erwerbs und vervollständigen dieses Angebot.
Ideal für 2 Familien, kurzfristig bezugsfrei: Doppelhaus mit großem Gartengrundstück in Gauting,
82131 Gauting
Die vollständige Adresse der Immobilie erhalten Sie vom Anbieter.
Auf Karte anzeigen
Die vollständige Adresse der Immobilie erhalten Sie vom Anbieter.
Finanzierungszertifikat
In nur zwei Minuten zu Ihrem persönlichen Finanzierungszertifkat.
Infos
| Haustyp | Sonstige |
|---|---|
| Etagenzahl | 2 |
| Wohnfläche ca. | 323 m2 |
| Nutzfläche | 359,71 m2 |
| Grundstücksfläche | 1.152,12 m2 |
| Bezugsfrei ab | nach Absprache |
| Zimmer | 11 |
| Schlafzimmer | 9 |
| Badezimmer | 4 |
| Anzahl Garage/Stellplatz | 8 |
Kosten
| Kaufpreis |
1.749.000 € |
|---|---|
| Provision |
3,57 % Die Provision i.H.v. 3,57 % inkl. MwSt. ist mit Kaufvertragsbeurkundung fällig, sofern der Verkaufspreis über 83.000,00 € liegt. Liegt der Verkaufspreis dagegen bei/unter 83.000,00 €, ist die fest vereinbarte Mindestprovision i.H.v. mind. 5.950,00 € inkl. MwSt. mit Kaufvertragsbeurkundung fällig. Die Mindestprovision fällt insg. nur einmal an, wodurch Verkäufer und Käufer die Mindestprovision dann jeweils mit 2.975,00 € inkl. MwSt. tragen. |
Finanzierungsrechner:
Kaufpreis:
600.000 €
Eigenkapital:
600.000 €
Monatliche Rate
0 €
Effektiver Jahreszins
0 %
Sollzinsbindung
10 Jahre
Bausubstanz & Energieausweis
| Baujahr | 1964 |
|---|---|
| Letzte Sanierung | 2021 |
| Bauphase | Haus fertig gestellt |
| Objektzustand | Gepflegt |
| Qualität der Austattung | Normal |
| Heizungsart | Zentralheizung |
| Wesentliche Energieträger | Gas |
| Energieausweis | liegt vor |
| Energieausweistyp | Bedarfsausweis |
| Energieverbrauchskennwert | 240,0 kWh/(m²*a) |
| Energieeffizienzklasse | G |
240,0
kWh/(m²*a)
Energieeffizienzklasse G
- A+
- A
- B
- C
- D
- E
- F
- G
- H
- 0
- 25
- 50
- 75
- 100
- 125
- 150
- 175
- 200
- 225
- >250
Beschreibung des Objekts
Ausstattung
+ In ruhiger Umgebung im östlichen Gauting, beschaulich und sicher in einer Nebenstraße, optimal für eine individuelle Nutzung
+ Erholung pur: Der uneinsehbare Garten auf ca. 1.152 m² Grund lädt zum Verweilen ein - drei Terrassen und zwei Balkone bereichern das Erlebnis
+ Das Objekt präsentiert sich in einem gepflegten Zustand - zuletzt wurde das Haus 2021 modernisiert
+ Solide Ausstattung des familienfreundlich geschnittenen Hauses inkl. drei Kaminöfen und einem Kachelofen sowie teilweise Holzparkettböden
+ Das Objekt bietet jede Menge Staufläche im Keller sowie Platz für Pkw's dank 4 Garagen und 4 Freistellplätze
Lage
Lage: Attraktive Lage im östlichen Ortsrand Gautings
Bildung und Betreuung: weiterführende und Grundschulen, Kindergärten in max. 10 Fahrradminuten
Nahversorgung: Supermarkt, Apotheke, Ärzte mehrerer Fachrichtungen, Post- und Bankfiliale in max. 2 km
Anbindung: U- und S-Bahn; Autobahnen; Bushaltestelle schnell erreichbar
Sonstige Angaben
Vereinbaren Sie noch heute einen Besichtigungstermin!
_____________________________________________________
Alle Angaben sind ohne Gewähr und basieren ausschließlich auf Informationen, die uns von unserem Auftraggeber zur Verfügung gestellt wurden. Wir übernehmen keine Gewähr für die Vollständigkeit, Richtigkeit und Aktualität der Angaben.
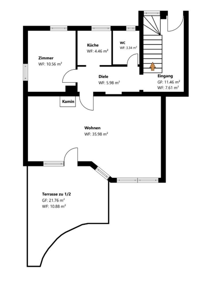
Grundriss
Grundriss Skizze Haus 1 EG
>
>
Grundriss Skizze Haus 1 OG
>
>
Grundriss Skizze Haus 1 DG
>
>
Grundriss Skizze Haus 1 UG
>
>
Grundriss Skizze Haus 2 EG
>
>
Grundriss Skizze Haus 2 OG
>
>
Grundriss Skizze Haus 2 DG
>
>
Grundriss Skizze Haus 2 UG
>
>
Adresse
82131 Gauting
Interessante Orte
Preis- und Lageinformationen
Preistrend für Bestandsimmobilien in Gauting