Dieses gepflegte Einfamilienhaus wurde 1948 in massiver Bauweise errichtet und vereint heute den Charme vergangener Zeiten mit modernem Wohnkomfort. Auf einer Wohnfläche von rund 105 m² bietet es eine harmonische Raumaufteilung mit insgesamt vier Zimmern, die sich ideal für Familien eignen. Das Grundstück umfasst etwa 450 m² und lädt mit seinem liebevoll angelegten Garten zum Verweilen im Freien ein.
Im Jahr 2016 wurde die gesamte Immobilie umfassend renoviert, sodass sie sich heute in einem sehr guten Zustand präsentiert. Neben der vollständigen Modernisierung der Wohnräume wurde auch das Untergeschoss saniert und mit einer weiteren Küche, einem zusätzlichen Bad sowie einem Gästezimmer ausgestattet. Damit eignet sich dieser Bereich hervorragend als eigenständige Einheit für Besucher oder als zusätzlicher Rückzugsort.
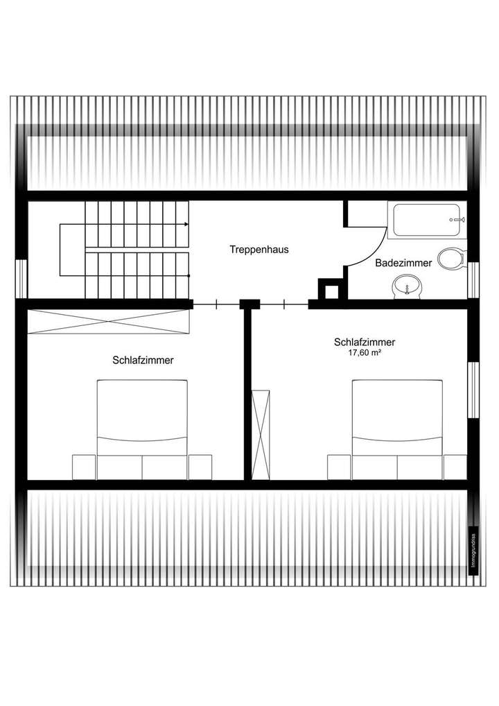
Die drei Schlafzimmer sind hell und freundlich gestaltet und bieten ausreichend Platz für die ganze Familie. Das Wohnzimmer vermittelt eine behagliche Wohnatmosphäre und die Küche bietet genügend Raum für eine gemütliche Essecke. Zwei modern ausgestattete Badezimmer mit hochwertigen Armaturen runden das Angebot ab.
Ein besonderes Highlight ist die sonnige Terrasse, die direkt in den Garten führt und im Sommer zum Entspannen oder zu geselligen Grillabenden einlädt. Ergänzt wird das Außenangebot durch eine Garage, die nicht nur Platz für ein Fahrzeug, sondern auch zusätzlichen Stauraum bereithält.
Technisch ist das Haus mit einer Gas-Zentralheizung, einem klassischen Satteldach und der Energieeffizienzklasse E ausgestattet. Die Kombination aus durchdachter Grundrissgestaltung, solider Bauweise und den umfassenden Sanierungsarbeiten macht diese Immobilie zu einem attraktiven Gesamtpaket.
Liebevoll saniertes Einfamilienhaus in Friedberg – mit zusätzlichen Nutzungsmöglichkeiten im UG
86316 Friedberg
Die vollständige Adresse der Immobilie erhalten Sie vom Anbieter.
Auf Karte anzeigen
Die vollständige Adresse der Immobilie erhalten Sie vom Anbieter.
Finanzierungszertifikat
In nur zwei Minuten zu Ihrem persönlichen Finanzierungszertifkat.
Infos
| Haustyp | Einfamilienhaus |
|---|---|
| Wohnfläche ca. | 106 m2 |
| Grundstücksfläche | 450 m2 |
| Zimmer | 4 |
| Schlafzimmer | 3 |
| Badezimmer | 2 |
Kosten
| Kaufpreis |
694.000 € |
|---|---|
| Provision |
2,50 % inkl. MwSt. (2,10 % netto) |
Finanzierungsrechner:
Kaufpreis:
600.000 €
Eigenkapital:
600.000 €
Monatliche Rate
0 €
Effektiver Jahreszins
0 %
Sollzinsbindung
10 Jahre
Bausubstanz & Energieausweis
| Baujahr | 1947 |
|---|---|
| Objektzustand | Vollständig Renoviert |
| Heizungsart | Zentralheizung |
| Wesentliche Energieträger | Erdgas leicht |
| Energieausweis | liegt vor |
| Energieausweistyp | Verbrauchsausweis |
| Energieverbrauchskennwert | 147,8 kWh/(m²*a) |
Beschreibung des Objekts
Ausstattung
- Baujahr 1948, massive Bauweise
- Kernsanierung und Modernisierung im Jahr 2016
- Wohnfläche ca. 105 m², Grundstücksgröße ca. 450 m²
- Untergeschoss (ca. 64,8 m²) komplett saniert mit zusätzlicher Küche, Bad und Gästezimmer, UG komplett beheizt
- Nordseite und Westseite gedämmt
- 4 Zimmer, davon 3 Schlafzimmer und 1 Wohnzimmer
- 2 moderne Badezimmer mit hochwertigen Sanitäranlagen
- Helle Küche mit Platz für eine Essecke
- Terrasse mit direktem Zugang in den Garten
- Gepflegter, großzügiger Gartenbereich
- Garage mit Stellplatz und zusätzlichem Stauraum
- Gas-Zentralheizung
- Ruhige, familienfreundliche Wohnlage mit guter Infrastruktur
- u.v.m.
Lage
Willkommen in Friedberg!
Diese Immobilie befindet sich in einer schönen Wohnsiedlung von Friedberg und verbindet auf ideale Weise die Vorzüge einer zentralen Lage mit der Behaglichkeit einer idyllischen Wohnumgebung. Eingebettet in die malerische Kulisse der Stadt, genießen Sie hier die perfekte Mischung aus urbanem Flair und historischem Charme.
Die nahegelegene Friedberger Altstadt lädt mit ihren charmanten Gassen, Cafés und Boutiquen zu entspannten Spaziergängen ein. Zugleich finden Sie hier alles für den täglichen Bedarf – von Einkaufsmöglichkeiten über Ärzte bis hin zu kulturellen Einrichtungen. Die exzellente Anbindung an den öffentlichen Nahverkehr ist ein weiteres Highlight: Der Bahnhof Friedberg ist nur etwa 300 Meter entfernt, und mehrere Bushaltestellen liegen in fußläufiger Entfernung. Diese Infrastruktur ermöglicht Ihnen schnelle Verbindungen nach Augsburg und München sowie in die umliegenden Regionen.
Freizeitliebhaber kommen ebenfalls auf ihre Kosten. Nur wenige Schritte entfernt befinden sich gepflegte Grünanlagen wie der Stadtgarten, die zum Entspannen oder für sportliche Aktivitäten im Freien einladen.
Auch für Pendler und Vielreisende bietet die Lage optimale Bedingungen. Die Autobahn A8 erreichen Sie in nur wenigen Minuten, wodurch Sie flexibel und komfortabel unterwegs sind. Der Münchner Flughafen liegt etwa 80 Kilometer entfernt und ist sowohl mit dem Auto als auch mit dem Zug bequem zu erreichen.
Die Stadt Friedberg überzeugt zudem mit ihrer harmonischen und attraktiven Bevölkerungsstruktur. Der historische Charme und die angenehme Nachbarschaft machen den Ort zu einer der begehrtesten Wohnlagen der Region.
Sonstige Angaben
Alle in diesem Exposé verwendeten Angaben beruhen auf Informationen von Dritten (z.B. Eigentümer, Hausverwaltung, etc.) und daher freibleibend und ohne jegliche Gewähr. Zahlenangaben sind immer als ca-Angaben zu verstehen. Irrtum, Änderungen, Zwischenverkauf oder Zwischenvermietung bleiben vorbehalten. Die Bekanntgabe der Objektadresse und von Objektdaten geschieht unter ausdrücklichem Hinweis auf unsere Provisionsforderung im Fall des Ankaufs. Die Höhe der Käuferprovision entnehmen Sie den Eckdaten dieses Exposés. Mit Übersendung des Exposés und Bekanntgabe der Objektadresse kommt ein Maklervertrag zustande. Sie wurden hierbei auf das Recht hingewiesen, binnen vierzehn Tagen ohne Angabe von Gründen diesen Vertrag zu widerrufen. Um ein bestehendes Widerrufsrecht auszuüben, genügt eine schriftliche Erklärung an EDE-Invest GmbH & Co. KG, Bavariaring 18, 80336 München. Möglicherweise haben Sie bei Erhalt des Exposees wirksam auf das Widerrufsrecht verzichtet. Haben Sie hingegen verlangt, dass unsere Dienstleistungen während der Widerrufsfrist beginnen sollen, ohne vorher auf das Widerrufsrecht zu verzichten, so haben Sie uns im Fall des Widerrufs einen angemessenen Betrag zu zahlen, der dem Anteil der bis zu dem Zeitpunkt, zu dem Sie uns den Widerruf erklären, bereits erbrachten Dienstleistungen im Vergleich zum Gesamtumfang der im Vertrag vorgesehenen Dienstleistungen entspricht. Ihr Widerrufsrecht erlischt vorzeitig, wenn wir auf Ihren ausdrücklichen Wunsch hin tätig geworden sind und der Vertrag vollständig erfüllt ist, bevor Sie Ihr Widerrufsrecht ausgeübt haben. Verpflichtungen zur Erstattung von Zahlungen müssen innerhalb von 30 Tagen erfüllt werden. Die Frist beginnt für Sie mit der Absendung Ihrer Widerrufserklärung, für uns mit deren Empfang.
Gewerbeerlaubnis gemäß § 34c GewO erteilt durch Aufsichtsbehörde gemäß § 34c GewO: Kreisverwaltungsreferat München, Ruppertstr. 19, 80466 München
Online-Streitbeilegung: http://ec.europa.eu/consumers/odr/
Grundriss
Dachgeschoss
>
>
Keller
>
>
Adresse
86316 Friedberg
Interessante Orte
Preis- und Lageinformationen
Preistrend für Bestandsimmobilien in Friedberg