Baujahr:
ca. 1958
Raumaufteilung:
Erdgeschoss:
großes Wohnzimmer mit Kamin und Essbereich, Küche, Gäste-WC, Diele, Windfang
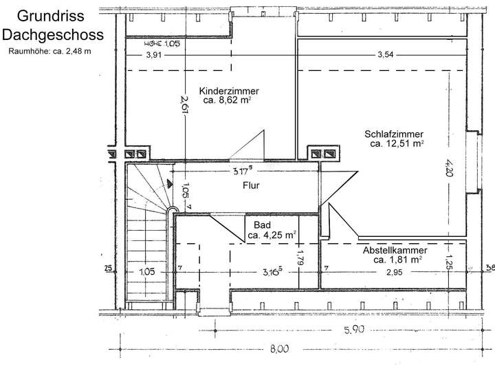
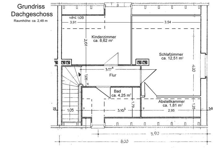
Ober- / Dachgeschoss:
Schlafzimmer mit Ankleide- / Abstellraum, Kinderzimmer, Bad, Flur
Unter- / Kellergeschoss:
vollständig unterkellert
Wohnfläche:
ca. 96 m²
Grundstück:
ca. 468 m²
Extras:
- ca. 2019 - Erneuerung der Innentreppe
- ca. 2019 - HARK-Specksteinkamin
- ca. 2020 - Einbauküche
- ca. 2024 - Klimaanlage im DG (2,5 kW)
- ca. 2019 - Vertikalabdichtung aller Außenwände
- ca. 2019 - Horizontalsperre an Giebelwand zum Nachbarn (Injektionsverfahren)
- ca. 2019 - Kellerausgang mit Granitstufen erneuert
- Garage vorhanden (ca. 2023 - Elektrik in der Garage teilweise erneuert)
- ca. 2019 - überdachte Gartenterrasse
- ca. 2019 - Grundstück vollständig eingezäunt
- ca. 2020 - elektrische Toranlage
Erschließung:
Strom, Wasser, Erdgas, Kanalisation, Kabelanschluss, Brunnenanschluss, Telefon, Internet
sanierte Doppelhaushälfte in bevorzugter Lage von Dessau-Ziebigk
06846 Dessau-Roßlau
Die vollständige Adresse der Immobilie erhalten Sie vom Anbieter.
Auf Karte anzeigen
Die vollständige Adresse der Immobilie erhalten Sie vom Anbieter.
Finanzierungszertifikat
In nur zwei Minuten zu Ihrem persönlichen Finanzierungszertifkat.
Infos
| Haustyp | Doppelhaushaelfte |
|---|---|
| Etagenzahl | 2 |
| Wohnfläche ca. | 96 m2 |
| Grundstücksfläche | 468 m2 |
| Zimmer | 4 |
| Schlafzimmer | 2 |
| Badezimmer | 1 |
| Garage/Stellplatz | Garage |
| Anzahl Garage/Stellplatz | 1 |
Kosten
| Kaufpreis |
310.000 € |
|---|---|
| Provision |
Die Provision beträgt 3,5 % vom Kaufpreis (zzgl. der geltenden MwSt.). |
Finanzierungsrechner:
Kaufpreis:
600.000 €
Eigenkapital:
600.000 €
Monatliche Rate
0 €
Effektiver Jahreszins
0 %
Sollzinsbindung
10 Jahre
Bausubstanz & Energieausweis
| Baujahr | 1958 |
|---|---|
| Letzte Sanierung | 2019 |
| Objektzustand | Gepflegt |
| Qualität der Austattung | Normal |
| Heizungsart | Gas-Heizung |
| Wesentliche Energieträger | Gas |
Beschreibung des Objekts
Ausstattung
Sanierung
Dach:
ca. 1996 - gedämmt und gedeckt
Fassade:
ca. 2019 - gedämmt, geputzt und gestrichen
Fenster:
ca. 1997 - Kunststoff weiß mit Jalousien
Türen:
ca. 2019 - weiße Holztüren, teilweise mit Glaseinsatz
ca. 2019 - Erneuerung der Kellertüren
ca. 2019 - Erneuerung der Hauseingangstür und Kellerausgangstür
Fußböden:
ca. 2019 - Parkett, Fliesen, Kork
Heizung:
ca. 2019 - Erdgas - Brennwerttherme (Firma Viessmann)
EG/DG: Fußbodenheizung
UG: Heizkörper
Sanitär:
ca. 2019 - Gäste-WC mit Waschbecken
ca. 2019 - DG: Bad mit Wanne und Dusche
ca. 2019 - UG: WC mit Waschbecken
Elektrik:
ca. 2019 - vollständig erneuert
Sonstige Angaben
Um der EnEV § 17 genüge zutun, werden wir bei Besichtigung des Objektes, eine Kopie eines Energieverbrauchs- oder Energiebedarfsausweises vorlegen. Die entsprechenden Pflichtangaben werden umgehend hier veröffentlicht. Die IFC Immobiliengesellschaft mbH haftet nicht für die vom Eigentümer gemachten Angaben.
Weitere Dokumente
EnergieausweisGrundriss
Grundriss Erdgeschoss
>
>
Grundriss Dachgeschoss
>
>
Grundriss Keller
>
>
Schnitt
>
>
Adresse
06846 Dessau-Roßlau
Interessante Orte
Preis- und Lageinformationen
Preistrend für Bestandsimmobilien in Siedlung