Das ansprechende Mittelreihenhaus wurde ca. 1999 von dem renommierten Bauträger Schaffarzyk KG errichtet und befindet sich in einem sehr gepflegten Zustand - Die Immobilie ist vermietet.
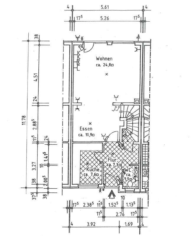
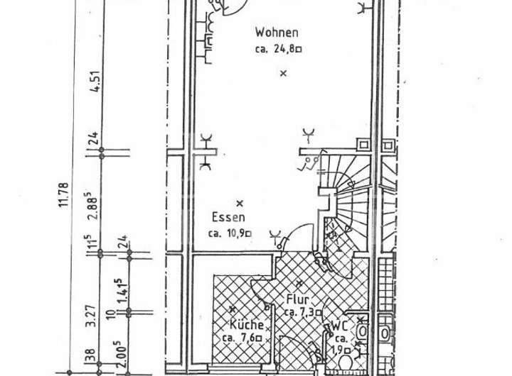
Über eine einladende Eingangsdiele gelangen Sie in das Haus. Im Erdgeschoss befinden sich neben dem großzügigen Wohn-/ Essbereich ein Gäste-WC mit Fenster sowie eine helle Einbauküche.
Das Wohn- und Esszimmer bietet mit ca. 36m² ausreichend Platz für die ganze Familie. Die bodentiefen Fenster zur Terrasse sorgen für eine angenehme Raumatmosphäre.
Die Fußböden in der Diele, im Gäste-WC und in der Küche sind mit hellen, einheitlichen Fliesen ausgestattet. Die Einbauküche verfügt über Ober-/Unterschränke, einen Backofen sowie einem Cerankochfeld - der Dunstabzug führt nach außen. Der Wohn- und Essbereich ist mit einem attraktiven Bodenbelag in dunkler Holzoptik versehen.
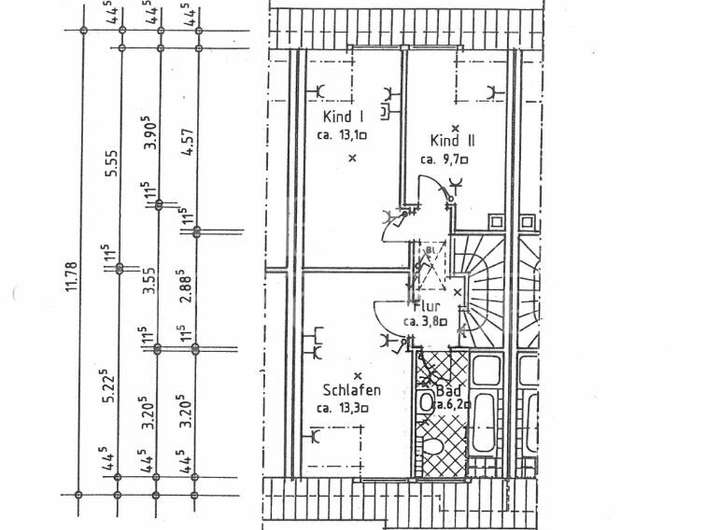
Im Obergeschoss befinden sich drei Zimmer sowie ein helles, ansprechendes Vollbad mit Badewanne, separater Dusche und Fenster. Der Flur im Obergeschoss ist mit Auslegware und die Zimmer sind mit Fußboden in Holzoptik versehen.
Zusätzlichen Stauraum bieten sowohl der Teilkeller als auch der Dachboden.
Die Grundstücksgröße beträgt gemäß Grundbuch ca. 204m² zuzüglich einer anteiligen Verkehrsfläche von ca. 33m². Sehr von Vorteil ist der zurückgelegene Wirtschaftsweg, so dass Sie Gartenabfälle direkt durch den Garten entsorgen können.
Ein PKW-Stellplatz ist der Immobilie zugeordnet.
Sehr gepflegtes Mittelreihenhaus in begehrter Lage von Ellerau - vermietet
25479 Ellerau
Die vollständige Adresse der Immobilie erhalten Sie vom Anbieter.
Auf Karte anzeigen
Die vollständige Adresse der Immobilie erhalten Sie vom Anbieter.
Finanzierungszertifikat
In nur zwei Minuten zu Ihrem persönlichen Finanzierungszertifkat.
Infos
| Haustyp | Reihenmittelhaus |
|---|---|
| Wohnfläche ca. | 102 m2 |
| Nutzfläche | 30 m2 |
| Grundstücksfläche | 204 m2 |
| Bezugsfrei ab | nach Vereinbarung |
| Zimmer | 4 |
| Schlafzimmer | 3 |
| Badezimmer | 1 |
| Garage/Stellplatz | Außenstellplatz |
| Anzahl Garage/Stellplatz | 1 |
Kosten
| Kaufpreis |
366.000 € |
|---|---|
| Provision |
3,1 % inkl. gesetzlicher Mehrwertsteuer auf den Kaufpreis Die Nachweis- und/oder Vermittlungsprovision in Höhe von 3,1 % inklusive gesetzlicher Mehrwertsteuer auf den Kaufpreis ist bei notariellem Vertragsabschluss verdient und fällig und vom Käufer an die BBI Immobilien KG zu zahlen. |
Finanzierungsrechner:
Kaufpreis:
600.000 €
Eigenkapital:
600.000 €
Monatliche Rate
0 €
Effektiver Jahreszins
0 %
Sollzinsbindung
10 Jahre
Bausubstanz & Energieausweis
| Baujahr | 1999 |
|---|---|
| Bauphase | Haus fertig gestellt |
| Objektzustand | Gepflegt |
| Heizungsart | Zentralheizung |
| Wesentliche Energieträger | Gas |
| Energieausweis | liegt vor |
| Energieausweistyp | Verbrauchsausweis |
| Energieverbrauchskennwert | 84,0 kWh/(m²*a) |
| Energieeffizienzklasse | C |
84,0
kWh/(m²*a)
Energieeffizienzklasse C
- A+
- A
- B
- C
- D
- E
- F
- G
- H
- 0
- 25
- 50
- 75
- 100
- 125
- 150
- 175
- 200
- 225
- >250
Beschreibung des Objekts
Ausstattung
ERDGESCHOSS
- Eingangsdiele
- Gäste-WC mit Fenster
- Helle Einbauküche
- Wohn-/Essbereich mit Zugang zur Terrasse
- Schöne Terrasse mit Gartenbereich
OBERGESCHOSS
- Flur mit Auslegware
- Drei Schlafräume mit Fußboden in Holzoptik
- Vollbad mit Badewanne und separater Dusche - ein Fenster ist hier gegeben
DACHBODEN (Ausbaureserve)
- Staufläche
TEILKELLER
- Großer Vorraum
- Hauswirtschafts -/ und Heizungsraum
- Vorratsraum
Lage
Das hier angebotene Mittelreihenhaus befindet sich in beliebter Wohnlage von Ellerau in einer verkehrsberuhigten Zone, direkt angrenzend an die aufstrebende Stadt Quickborn, im unmittelbaren nördlichen Randgebiet von Hamburg. Besonders die unmittelbare Nähe zu Hamburg unterstreicht die Wohnlage. Auch ohne Auto ist hier eine hervorragende Anbindung durch das öffentliche Nahverkehrsnetz gegeben.
Diverse Belange des täglichen Bedarfs wie Einkaufsmöglichkeiten (Bäcker, Cafe, Edeka, Aldi, etc), Ärzte, Schulen, Kindergärten, Restaurants, etc. befinden sich im Umfeld. Eine Vielzahl von Freizeitangeboten (Freibad, Tennis, Golf, etc.) sind gegeben.
In wenigen Minuten erreichen Sie die Bahnstation Ellerau. Bequem mit der Bahn (AKN) gelangen Sie in alle Richtungen (Hamburg, Neumünster, Norderstedt). Der Ausbau für die S-Bahn hat bereits begonnen. Des Weiteren besteht eine Busverbindung (Linie 194) nach Norderstedt bzw. Quickborn. Sollten Sie das Auto vorziehen, liegen Sie auch hier ebenfalls sehr zentral. Die Verkehrsverbindung nach Hamburg ist durch die A7 (Autobahnanschluss Quickborn) und B4 ausgezeichnet. Die City der Millionenmetropole Hamburg ist mit dem Auto als auch der Bahn und der Flughafen Hamburg-Fuhlsbüttel ist ebenso gut zu erreichen.
Der Sportpark Quickborn mit seiner Freizeitanlage auf ca. 8.000m² Clubfläche bietet ausreichend Platz und beste Luftverhältnisse. Hier erwartet Sie ein abwechslungsreiches Training durch neueste Fitnesstrends, ein großes Angebot an Aerobic-, Gesundheits- und Indoor Cycling-Kursen, Gerätetraining in der Gruppe (Zirkeltraining). Mehrere Saunen und ein Außenpool runden das umfangreiche Angebot ab.
Sonstige Angaben
Courtage/Sonstiges
Die Nachweis- und/oder Vermittlungsprovision in Höhe von 3,1 % inklusive gesetzlicher Mehrwertsteuer auf den Kaufpreis ist bei notariellem Vertragsabschluss verdient und fällig und vom Käufer an die BBI Immobilien KG zu zahlen. Die BBI Immobilien KG hat einen provisionspflichtigen Maklervertrag mit dem Verkäufer in gleicher Höhe abgeschlossen. Alle Angaben sind ohne Gewähr und basieren ausschließlich auf Informationen, die uns von unserem Auftraggeber übermittelt wurden. Wir übernehmen keine Gewähr für die Vollständigkeit, Richtigkeit und Aktualität dieser Angaben. Irrtum und Zwischenverkauf vorbehalten. Die Grunderwerbsteuer, Notar- und Grundbuchkosten sind vom Käufer zu tragen. Auf Wunsch stehen wir Ihnen mit weiteren Informationen zum Objekt und zum Eigentümer gerne zur Verfügung. Die Besichtigung kann jederzeit nach Vereinbarung mit einem unserer Mitarbeiter/Beauftragten erfolgen. Der Maklervertrag mit uns kommt entweder durch schriftliche Vereinbarung oder auch durch die Inanspruchnahme unserer Maklertätigkeit auf der Basis des Objekt Exposés und seiner Bedingungen zustande. Sollte das von uns nachgewiesene Objekt bereits bekannt sein, teilen Sie uns dieses innerhalb von 5 Tagen schriftlich mit. Der Energieausweis wurde durch einen zertifizierten Aussteller erstellt. Wir übernehmen keine Haftung für die Richtigkeit der Daten des Energieausweises.
Datenschutz
Datenschutz und Transparenz sind für uns Selbstverständlichkeiten. Wir haben unsere Datenschutzerklärung entsprechend der Datenschutz-Grundverordnung (EU-DSGVO) für Sie bereitgestellt.
Bitte informieren Sie sich auf unserer Website www.BBI-Hamburg.de (Datenschutz).
Grundriss
Grundriss Erdgeschoss
>
>
Grundriss Dachgeschoss
>
>
Grundriss Spitzboden
>
>
Grundriss Teilkeller
>
>
Adresse
25479 Ellerau
Interessante Orte
Preis- und Lageinformationen
Preistrend für Bestandsimmobilien in Ellerau