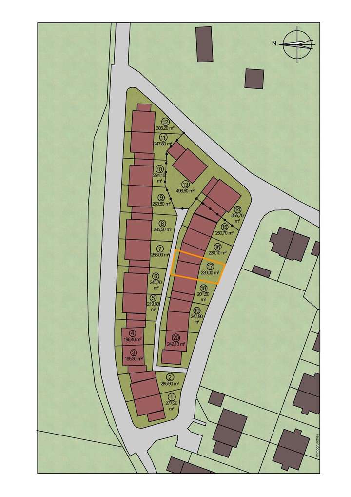
Dieses kompakte und attraktive Baugrundstück mit einer Fläche von ca. 220 m² bietet die Möglichkeit zur Bebauung eines Doppelhauses und ist damit ideal für private Bauherren oder Kapitalanleger geeignet. Die Grundflächenzahl (GRZ) von 0,4 ermöglicht eine optimale Nutzung der Fläche für modernes und effizientes Wohnen.
Ein Doppelhaus bietet zahlreiche Vorteile, wie die Kombination aus großzügigem Wohnraum, kompakter Grundstücksnutzung und einem attraktiven Preis-Leistungs-Verhältnis. Zudem eignet sich das Projekt ideal für Familien, die den Traum vom Eigenheim in einer ruhigen und gleichzeitig gut angebundenen Lage verwirklichen möchten.
Dieses Baugrundstück bietet eine attraktive Gelegenheit zur Realisierung eines Doppelhauses in einer ruhigen und familienfreundlichen Lage. Egmating überzeugt durch seine Nähe zur Natur, die hervorragende Anbindung nach München und die ideale Infrastruktur für Familien und Pendler.
Nutzen Sie die Gelegenheit, sich dieses attraktive Grundstück zu sichern. Gerne stehen wir Ihnen für weitere Informationen oder zur Vereinbarung eines Besichtigungstermins zur Verfügung.
Wir freuen uns auf Ihre Kontaktaufnahme!
Attraktives Baugrundstück in Egmating – Perfekt für Ihre Doppelhaushälfte
85658 Egmating
Die vollständige Adresse der Immobilie erhalten Sie vom Anbieter.
Auf Karte anzeigen
Die vollständige Adresse der Immobilie erhalten Sie vom Anbieter.
Finanzierungszertifikat
In nur zwei Minuten zu Ihrem persönlichen Finanzierungszertifkat.
Infos
| Vermarktungsart | Kaufen |
|---|---|
| Grundstücksfläche | 220 m2 |
| Erschließung | Erschlossen |
| Empfohlene Nutzung | Doppelhaus |
| Grundflächenzahl (GRZ) | 0.4 |
| Geschossflächenzahl (GFZ) | 2.66 |
| Bebaubar nach | Bebauungsplan |
Kosten
| Miete pro Jahr |
0 € |
|---|---|
| Provision |
3,57% inkl. gesetzl. Mwst. |
Finanzierungsrechner:
Kaufpreis:
600.000 €
Eigenkapital:
600.000 €
Monatliche Rate
0 €
Effektiver Jahreszins
0 %
Sollzinsbindung
10 Jahre
Beschreibung des Objekts
Lage
Das Grundstück befindet sich in Egmating, einer idyllischen Gemeinde im südöstlichen Einzugsgebiet von München. Hier verbindet sich ländlicher Charme mit der Nähe zur Landeshauptstadt.
- Verkehrsanbindung: Egmating bietet eine schnelle Anbindung an die Münchner Innenstadt (ca. 30 Minuten Fahrzeit) sowie an die Autobahnen A8 und A99.
- Öffentliche Verkehrsmittel zu den nahegelegenen S-Bahn-Anschlüssen sind gut erreichbar.
- Nahversorgung: Einkaufsmöglichkeiten, Bäckereien, Apotheken und Ärzte sind im nahen Umfeld vorhanden. Weitere Angebote stehen in den Nachbarorten Oberpframmern, Höhenkirchen-Siegertsbrunn und Ebersberg zur Verfügung.
- Familienfreundlichkeit: Egmating überzeugt durch ein ruhiges Wohnumfeld, ideale Bedingungen für Familien sowie Kitas und Schulen im Umkreis.
- Freizeitmöglichkeiten wie Spielplätze, Sportvereine und Radwege sind leicht zugänglich.
- Natur & Erholung: Die Umgebung punktet mit weiten Feldern, Wäldern und nahegelegenen Golfplätzen.
- Zahlreiche Rad- und Wanderwege laden zu Ausflügen ins Grüne ein.
- u.v.m.
Sonstige Angaben
Alle in diesem Exposé verwendeten Angaben beruhen auf Informationen von Dritten (z.B. Eigentümer, Hausverwaltung, etc.) und daher freibleibend und ohne jegliche Gewähr. Zahlenangaben sind immer als ca-Angaben zu verstehen. Irrtum, Änderungen, Zwischenverkauf oder Zwischenvermietung bleiben vorbehalten. Die Bekanntgabe der Objektadresse und von Objektdaten geschieht unter ausdrücklichem Hinweis auf unsere Provisionsforderung im Fall des Ankaufs. Die Höhe der Käuferprovision entnehmen Sie den Eckdaten dieses Exposés. Mit Übersendung des Exposés und Bekanntgabe der Objektadresse kommt ein Maklervertrag zustande. Sie wurden hierbei auf das Recht hingewiesen, binnen vierzehn Tagen ohne Angabe von Gründen diesen Vertrag zu widerrufen. Um ein bestehendes Widerrufsrecht auszuüben, genügt eine schriftliche Erklärung an EDE-Invest GmbH & Co. KG, Bavariaring 18, 80336 München. Möglicherweise haben Sie bei Erhalt des Exposees wirksam auf das Widerrufsrecht verzichtet. Haben Sie hingegen verlangt, dass unsere Dienstleistungen während der Widerrufsfrist beginnen sollen, ohne vorher auf das Widerrufsrecht zu verzichten, so haben Sie uns im Fall des Widerrufs einen angemessenen Betrag zu zahlen, der dem Anteil der bis zu dem Zeitpunkt, zu dem Sie uns den Widerruf erklären, bereits erbrachten Dienstleistungen im Vergleich zum Gesamtumfang der im Vertrag vorgesehenen Dienstleistungen entspricht. Ihr Widerrufsrecht erlischt vorzeitig, wenn wir auf Ihren ausdrücklichen Wunsch hin tätig geworden sind und der Vertrag vollständig erfüllt ist, bevor Sie Ihr Widerrufsrecht ausgeübt haben. Verpflichtungen zur Erstattung von Zahlungen müssen innerhalb von 30 Tagen erfüllt werden. Die Frist beginnt für Sie mit der Absendung Ihrer Widerrufserklärung, für uns mit deren Empfang.
Gewerbeerlaubnis gemäß § 34c GewO erteilt durch Aufsichtsbehörde gemäß § 34c GewO: Kreisverwaltungsreferat München, Ruppertstr. 19, 80466 München
Online-Streitbeilegung: http://ec.europa.eu/consumers/odr/
Grundriss
LAGEPLAN GRUNDSTÜCK 17
>
>