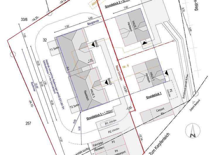
Das zum Verkauf stehende Grundstück ist Teil eines attraktiven Ensembles aus insgesamt drei Grundstücken und bietet vielfältige Bebauungsmöglichkeiten. Mit einer Grundstücksgröße von über 1.200 m² eignet sich dieses Grundstück ideal für die Errichtung eines großzügigen Einfamilienhauses oder alternativ eines Einfamilienhauses mit zwei Wohneinheiten gemäß den örtlichen bauplanungsrechtlichen Vorgaben.
Die Grundflächenzahl (GRZ) von 0,2 ermöglicht eine weitläufige und flexibel gestaltbare Bebauung. Somit lassen sich individuelle Wohnkonzepte ebenso wie moderne, großzügige Grundrisse realisieren.
Aktuell liegt eine bestehende Baugenehmigung vor, die auf Wunsch gemeinsam mit der projektierten Bebauung optional übernommen werden kann. Gerne stehen wir Ihnen für ein persönliches Gespräch zur Verfügung, um weitere Bebauungsoptionen sowie alternative Gestaltungsmöglichkeiten ausführlich zu erörtern.
Für Fragen rund um Architekten, Bauplanung, Bebauungspläne oder weitere Details zum Grundstück sind wir selbstverständlich jederzeit für Sie da.
Großzügiges Bauen in Böhl
25826 Sankt Peter-Ording
Die vollständige Adresse der Immobilie erhalten Sie vom Anbieter.
Auf Karte anzeigen
Die vollständige Adresse der Immobilie erhalten Sie vom Anbieter.
Finanzierungszertifikat
In nur zwei Minuten zu Ihrem persönlichen Finanzierungszertifkat.
Infos
| Vermarktungsart | Kaufen |
|---|---|
| Grundstücksfläche | 1.282 m2 |
| Grundflächenzahl (GRZ) | 0.2 |
Kosten
| Miete pro Jahr |
695.000 € |
|---|---|
| Provision |
3,57% inkl. MwSt. Die hier angegebene Maklerprovision beträgt 3,57% des Kaufpreises inklusive gesetzlicher Umsatzsteuer und ist verdient und fällig bei notariellem Vertragsabschluss. Bei Vertragsabschluss wird ein Provisionsanspruch gegenüber dem Käufer wirksam. Grunderwerbssteuer, Notar- und Gerichtskosten trägt der Käufer. Die Junker Immobilien GmbH handelt als provisionspflichtiger Makler im Sinne des Vertrags. |
Finanzierungsrechner:
Kaufpreis:
600.000 €
Eigenkapital:
600.000 €
Monatliche Rate
0 €
Effektiver Jahreszins
0 %
Sollzinsbindung
10 Jahre
Beschreibung des Objekts
Lage
Das Grundstück befindet sich im beliebten Ortsteil Böhl in einer ruhigen Verbindungsstraße zwischen der Böhler Landstraße und der Pestalozzi-Straße. Die Lage zeichnet sich durch ein harmonisches Wohnumfeld aus, in dem bereits mehrere ansprechende Reetdachhäuser entstanden sind und ein hochwertiges, nordfriesisch geprägtes Ortsbild bilden. Durch die geplante Ensemble-Bebauung aus insgesamt drei neuen Baukörpern entsteht hier ein besonders attraktives und stimmiges Gesamtumfeld mit hoher Wohnqualität. Der Ortsteil Böhl ist bekannt für sein naturnahes und entspanntes Wohngefühl. Der weitläufige Böhler Strand mit seinem berühmten Pfahlbau, der Böhler Leuchtturm sowie ausgedehnte Rad- und Wanderwege liegen nur wenige Minuten entfernt. Gleichzeitig bietet Böhl einen idealen Rückzugsort für all jene, die Ruhe schätzen und dennoch nicht auf eine gute Anbindung verzichten möchten. Der ebenso nahegelegene Ortsteil Dorf, das historische Zentrum von St. Peter-Ording, ist schnell erreichbar. Hier finden sich vielfältige Einkaufsmöglichkeiten, Restaurants, kleine Boutiquen, Ärzte und öffentliche Einrichtungen. Die charmante Dorfstraße mit ihren Geschäften, Cafés und Friesenhäusern bildet das Herzstück des Ortes und kombiniert Tradition, Kultur und tägliche Lebensqualität auf angenehme Weise. Die Gemeinde St. Peter-Ording zählt zu den gefragtesten Adressen an der Nordseeküste. Mit seinen beeindruckenden Sandstränden, den markanten Pfahlbauten, der weitläufigen Dünenlandschaft und dem Nationalpark Wattenmeer bietet der Ort eine einzigartige Mischung aus Naturerlebnis, Erholung und Freizeitwert. Ob Wassersport, Strandspaziergänge, Wellness oder Kulinarik, St. Peter-Ording bietet zu jeder Jahreszeit beste Voraussetzungen für ein entspanntes und lebenswertes Umfeld. Die Kombination aus ruhiger Wohnlage in Böhl, der Nähe zum lebendigen Ortsteil Dorf sowie den vielfältigen Natur- und Freizeitmöglichkeiten macht diese Grundstückslage besonders attraktiv, sowohl für Eigennutzer als auch für Kapitalanleger.
Sonstige Angaben
Sämtliche Angaben stammen von Informationen des Eigentümers, für deren Richtigkeit wir keine Gewähr übernehmen können. Wir bitten darum, uns unverzüglich zu Informieren, falls Ihnen dieses Angebot bereits bekannt ist. Beachten Sie bitte, dass dieses Angebot streng vertraulich ist, und jede unautorisierte Weitergabe zur Provisionspflicht führen kann. Irrtum und Zwischenkauf bleiben vorbehalten. Wir legen großen Wert auf die Vertraulichkeit dieser Informationen.