Wir projektieren Ihren Bungalow, welches Ihnen durch moderne und freie Architektur eine geräumige, helle und lichtdurchflutete Raumaufteilung bietet.
Alle unsere Häuser entsprechen der EnEv 2016 (Energie-Einspar-Verordnung) und wir erreichen die Energieeffizienz EE40. Da es sich um eine Neubau-Projektentwicklung handelt, wird der genaue Energieausweis bzw. Wert auf Ihr Haus bezogen, während der Planung genau erstellt und ausgewiesen.
Dieses Haus ist „Schlüssel-fertig“ in einer Fertigbauweise als KFW-Energieeffizienzhaus auf Bodenplatte inklusive dem Bauplatz kalkuliert und projektiert.
Ihr Haus wird selbstverständlich individuell nach Ihren Wünschen und Vorstellungen geplant, kalkuliert und realisiert. Alle unsere Preisangaben verstehen sich exklusive Baunebenkosten. Ein Richtwert für die Bestimmung dieser Kosten liegt bei 10% des Hauspreises. Sie sind darüber hinaus frei, dieses Hauses mit einem zusätzlichen ISO-Keller zu bauen.
Die Abbildungen können Sonderausstattungen enthalten, die im Preis nicht enthalten sind.
Neubau Bungalow inkl. Grundstück Sinsheim-OT
74889 Sinsheim
Die vollständige Adresse der Immobilie erhalten Sie vom Anbieter.
Auf Karte anzeigen
Die vollständige Adresse der Immobilie erhalten Sie vom Anbieter.
Finanzierungszertifikat
In nur zwei Minuten zu Ihrem persönlichen Finanzierungszertifkat.
Infos
| Haustyp | Bungalow |
|---|---|
| Etagenzahl | 1 |
| Wohnfläche ca. | 118 m2 |
| Nutzfläche | 10 m2 |
| Grundstücksfläche | 420 m2 |
| Zimmer | 4 |
| Schlafzimmer | 3 |
| Badezimmer | 1 |
Kosten
| Kaufpreis |
500.000 € |
|---|---|
| Provision | Nein |
Finanzierungsrechner:
Kaufpreis:
600.000 €
Eigenkapital:
600.000 €
Monatliche Rate
0 €
Effektiver Jahreszins
0 %
Sollzinsbindung
10 Jahre
Bausubstanz & Energieausweis
| Baujahr | 2026 |
|---|---|
| Bauphase | Haus in Planung (projektiert) |
| Objektzustand | Erstbezug |
| Qualität der Austattung | Gehoben |
| Heizungsart | Wärmepumpe |
| Wesentliche Energieträger | Strom |
| Energieausweis | liegt vor |
| Energieausweistyp | Verbrauchsausweis |
| Energieverbrauchskennwert | 40,0 kWh/(m²*a) |
| Energieeffizienzklasse | A |
40,0
kWh/(m²*a)
Energieeffizienzklasse A
- A+
- A
- B
- C
- D
- E
- F
- G
- H
- 0
- 25
- 50
- 75
- 100
- 125
- 150
- 175
- 200
- 225
- >250
Beschreibung des Objekts
Ausstattung
Das schlüsselfertige Fertighaus von Hanse Haus wird komplett nach Ihren Wünschen einzugsbereit fertiggestellt.
Ein klarer Vorteil im Vergleich zum Ausbauhaus, technikfertigen und fast fertigen Haus: es ist kein handwerkliches Können und kein Zeitaufwand für Eigenleistung notwendig.
Nach der Schlüsselübergabe Ihres Traumhauses fehlen nur noch die passende Küche und Ihre individuelle Hauseinrichtung.
Die Hanse-Haus-Gebäudehülle entspricht mit der ThermoEffizienz-Wand einem KFW-Energieeffizienzhaus 40 Plus im Standard. Alle Hanse-Häuser inklusive Keller und Bodenplatte haben einen DGNB-Gold (Deutsche Gesellschaft für Nachhaltiges Bauen) Zertifikat serienmäßig.
Das Haus ist bezugsfertig bereits sehr hochwertig ausgestattet.
Gerne kann nach Wunsch auch Eigenleistung mit eingebracht werden.
Lage
Der hier angebotene Bungalow inklusive einem Grundstück in Sinsheim Ortsteil ist in einer schönen Lage geplant und wird nach Kundenauftrag im Jahr 2026 in die Umsetzung kommen.
Sonstige Angaben
Besuchen Sie unser Ausstellungshaus Vita in Mannheim und lassen Sie sich über moderne Architektur, Technologien, Energieeinsparung und eine clevere Kostenplanung mit maximalen Förderungen informieren.
Freie Handelsvertretung Jana Korke der Hanse Haus GmbH & Co. KG
Tel: 0176/47188395
email: jana.korke@hanse-haus.de
Xaver-Fuhr-Straße 111/31
68163 Mannheim
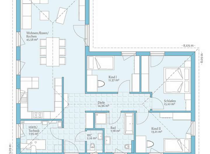
Grundriss
Grundriss Variante
>
>
Grundriss Variante 1
>
>
Grundriss Variante 2
>
>
Grundriss Variante 3
>
>
Adresse
74889 Sinsheim
Interessante Orte
Preis- und Lageinformationen
Preistrend für Bestandsimmobilien in Sinsheim