Wir freuen uns, Ihnen dieses freistehende Einfamilienhaus, Baujahr 1960, präsentieren zu dürfen. Es bietet auf ca. 81 Quadratmetern Wohnfläche eine solide Basis, um nach einer Neugestaltung und Modernisierung Ihr ganz persönliches Zuhause zu werden.
Das herausragende Merkmal dieser Immobilie ist das großzügige Grundstück von ca. 1.270 Quadratmetern. Es ist eine Seltenheit und ein echtes Highlight, das Ihnen eine außergewöhnliche Freiheit bei der Gestaltung Ihres Außenbereichs ermöglicht – von weitläufigen Grünflächen über einen Gemüsegarten bis hin zu individuellen Freizeitbereichen.
Ein wichtiger Komfortfaktor wurde bereits geschaffen: Die Wärmeversorgung erfolgt über eine im Jahr 2024 neu installierte Gas-Heizungsanlage, die für zeitgemäße Effizienz und zuverlässige Funktion sorgt.
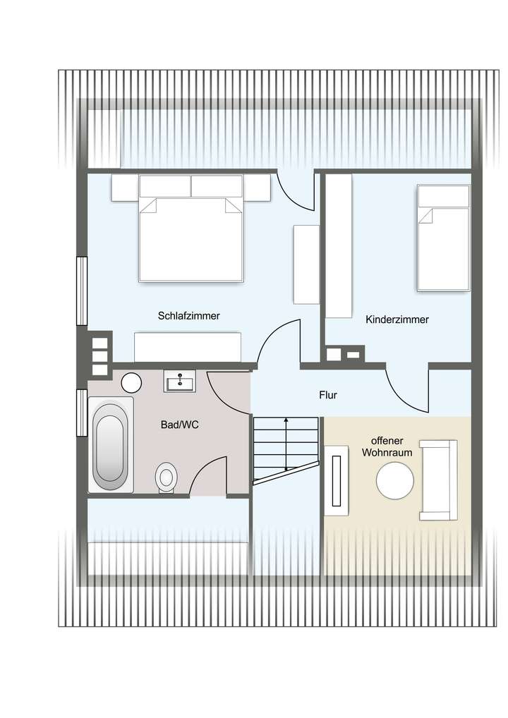
Die Wohnfläche verteilt sich auf zwei Ebenen und bietet eine klassische und funktionale Aufteilung. Im Erdgeschoss finden Sie die Küche, zwei Zimmer, die sich ideal als Wohn- und Essbereich oder als Büro eignen, sowie ein separates WC. Das Obergeschoss beherbergt zwei weitere Zimmer, die als Schlaf- oder Kinderzimmer genutzt werden können, sowie ein Tageslichtbad.
Ergänzend zur Wohnfläche stehen Ihnen praktische Nutzflächen zur Verfügung: Das Haus ist vollunterkellert, bietet eine Garage und verfügt über ein Nebengelass, welches zusätzlichen Stauraum oder Platz für Hobbys und Werkstattarbeiten bietet.
Das Objekt steht nicht unter Denkmalschutz, was Ihnen maximale Gestaltungsfreiheit bei der anstehenden Modernisierung gibt. Nutzen Sie diese hervorragende Gelegenheit, um mit Kreativität und Engagement ein einmaliges Eigenheim in einer grünen Umgebung zu schaffen.
Freistehendes Einfamilienhaus mit herausragendem Grundstück und vielseitigem Potenzial
04779 Wermsdorf
Die vollständige Adresse der Immobilie erhalten Sie vom Anbieter.
Auf Karte anzeigen
Die vollständige Adresse der Immobilie erhalten Sie vom Anbieter.
Finanzierungszertifikat
In nur zwei Minuten zu Ihrem persönlichen Finanzierungszertifkat.
Infos
| Haustyp | Einfamilienhaus |
|---|---|
| Etagenzahl | 2 |
| Wohnfläche ca. | 81 m2 |
| Grundstücksfläche | 1.271 m2 |
| Zimmer | 4 |
| Badezimmer | 1 |
Kosten
| Kaufpreis |
150.000 € |
|---|---|
| Provision |
3.57 % inkl. gesetzl. MwSt. |
Finanzierungsrechner:
Kaufpreis:
600.000 €
Eigenkapital:
600.000 €
Monatliche Rate
0 €
Effektiver Jahreszins
0 %
Sollzinsbindung
10 Jahre
Bausubstanz & Energieausweis
| Baujahr | 1960 |
|---|---|
| Objektzustand | Renovierungsbedürftig |
| Wesentliche Energieträger | Gas |
| Energieausweis | liegt zur Besichtigung vor |
Beschreibung des Objekts
Ausstattung
Fliesen
Dielenboden
Vollunterkellert
Lage
Das charmante Einfamilienhaus befindet sich in ruhiger und naturnaher Lage im Ortsteil Luppa der Gemeinde Wermsdorf. Die Umgebung ist geprägt von einer idyllischen ländlichen Kulisse, die Ruhe und Entspannung fernab des städtischen Trubels verspricht – ideal für alle, die ein Zuhause im Grünen suchen.
Luppa selbst ist bekannt für seine hervorragende Anbindung an die Natur und insbesondere das beliebte Naturbad Luppa. Dieses Naherholungsgebiet mit seiner großen Wasserfläche und dem Sandstrand ist ein wertvolles Freizeitangebot in unmittelbarer Nähe und lädt in den Sommermonaten zum Baden und Erholen ein. Auch der umliegende Wermsdorfer Wald bietet ein umfangreiches Netz an Rad- und Wanderwegen für ausgedehnte Touren.
Die Gemeinde Wermsdorf mit ihren Ortsteilen bietet eine gute Basisversorgung. Die Anbindung an die überregionale Infrastruktur ist durch die Nähe zur Bundesstraße B6 gewährleistet, die eine schnelle Erreichbarkeit von größeren Städten wie Oschatz und auch der Autobahn A14 in etwa 15 bis 20 Minuten Fahrzeit ermöglicht.
Die Lage kombiniert die Vorteile des ruhigen Wohnens mit der schnellen Erreichbarkeit der Naturhighlights der Region, was sie besonders attraktiv für Naturliebhaber und Familien macht.
Sonstige Angaben
Der Makler-Vertrag mit uns kommt durch die Beauftragung der Maklertätigkeit in Textform (z.B. E-Mail mit Bestätigung der gewollten Inanspruchnahme) zustande. Die Höhe der Courtage richtet sich nach den ab dem 23.12.2020 in Kraft getretenen gesetzlichen Regelungen zur Teilung der Maklercourtage. Hiernach wird die Courtage regelmäßig für beide Parteien (Eigentümer und Käufer) jeweils in Höhe von 3 % zuzüglich Umsatzsteuer in jeweils geltender Höhe, derzeit also insgesamt 3,57 % des Kaufpreises einschließlich Umsatzsteuer bei notariellem Vertragsabschluss verdient und fällig. Die Höhe der Bruttocourtage unterliegt einer Anpassung bei Steuersatzänderung. Grunderwerbssteuer, Notar- und Gerichtskosten trägt der Käufer. Alle Angaben sind ohne Gewähr und basieren ausschließlich auf Informationen, die uns von unserem Auftraggeber übermittelt wurden. Wir übernehmen keine Gewähr für die Vollständigkeit, Richtigkeit und Aktualität dieser Angaben. Zwischenverkauf bleibt vorbehalten. Sollte das von uns nachgewiesene Objekt bereits bekannt sein, teilen Sie uns dieses bitte unverzüglich mit. Die Weitergabe dieses Exposees an Dritte ohne unsere Zustimmung löst gegebenenfalls Courtage- bzw. Schadensersatzansprüche aus. Im Übrigen gelten die beigefügten allgemeinen Geschäftsbedingungen für die Rechtsbeziehung zwischen Ihnen und der Saxonia Metropol GmbH (Lizenznehmer der Engel & Völkers Residential GmbH).
Grundriss
Keller
>
>
Erdgeschoss
>
>
Obergeschoss
>
>
Adresse
04779 Wermsdorf
Interessante Orte
Preis- und Lageinformationen
Preistrend für Bestandsimmobilien in Wermsdorf