Exklusive Unternehmer-Villa in Mainz-Kastel – Repräsentatives Wohnen auf höchstem Niveau.
Diese außergewöhnliche Unternehmer-Villa in begehrter Lage von Mainz-Kastel vereint stilvolle Architektur, Großzügigkeit und gehobenen Wohnkomfort. Auf drei Etagen eröffnet sich ein harmonisch gestalteter Wohntraum mit 6 Zimmern, lichtdurchfluteten Räumen und hochwertigen Materialien, die jeder Etage eine exklusive Atmosphäre verleihen.
Die repräsentative Eingangshalle führt in den weitläufigen Wohnbereich, der durch seine offenen Strukturen, hohe Decke und elegante Gestaltung beeindruckt – ideal für gesellschaftliche Anlässe, Business-Empfänge oder das entspannte Familienleben. Große deckenhohe Fensterfronten schenken ein helles, freundliches Ambiente und bieten einen schönen Blick in den Garten.
Die moderne, voll ausgestattete Designer-Küche mit ihrem großzügigen Essbereich lässt keine Wünsche offen und erfüllt höchste Ansprüche an Funktionalität und Stil. Die Privatbereiche der Villa begeistern mit großzügigen Schlafzimmern, luxuriösen Bädern sowie flexibel nutzbaren Räumen – perfekt als Home-Office, Studio oder auch als Fitnessbereich.
Der Außenbereich überzeugt durch seine ruhige, gepflegte Gestaltung: Eine große überdachte Terrasse, die stilvolle Gartenanlage sowie Rückzugsorte machen das Anwesen zu einer wahren Wohlfühloase. Hier lassen sich entspannte Stunden genießen – fernab des Alltags, jedoch mitten im Rhein-Main-Gebiet.
Die Villa verfügt zudem über erstklassige technische Ausstattungen, die modernes Wohnen auf höchstem Niveau ermöglichen – von smarter Gebäudetechnik bis hin zu energieeffizienten Lösungen wie der Fußbodenheizung in Verbindung mit der Luft-Wärmepumpe und den zusätzlich verbauten Klimageräten.
Eine seltene Gelegenheit, eine repräsentative Stadtvilla in Mainz-Kastel zu erwerben – großzügig, stilvoll, hochwertig und perfekt geeignet für anspruchsvolles Wohnen und Arbeiten.
Wenn wir Sie neugierig gemacht haben, stehen wir Ihnen gerne für weitere Informationen bei einem individuellen Besichtigungstermin zur Verfügung.
Exklusive Stadtvilla provisionsfrei !
55252 Wiesbaden
Die vollständige Adresse der Immobilie erhalten Sie vom Anbieter.
Auf Karte anzeigen
Die vollständige Adresse der Immobilie erhalten Sie vom Anbieter.
Finanzierungszertifikat
In nur zwei Minuten zu Ihrem persönlichen Finanzierungszertifkat.
Infos
| Haustyp | Sonstige |
|---|---|
| Etagenzahl | 3 |
| Wohnfläche ca. | 355 m2 |
| Grundstücksfläche | 304 m2 |
| Bezugsfrei ab | Nach Vereinbarung |
| Zimmer | 6 |
| Schlafzimmer | 3 |
| Badezimmer | 2 |
| Garage/Stellplatz | Außenstellplatz |
| Anzahl Garage/Stellplatz | 2 |
Kosten
| Kaufpreis |
1.500.000 € |
|---|---|
| Provision |
Nein |
Finanzierungsrechner:
Kaufpreis:
600.000 €
Eigenkapital:
600.000 €
Monatliche Rate
0 €
Effektiver Jahreszins
0 %
Sollzinsbindung
10 Jahre
Bausubstanz & Energieausweis
| Baujahr | 2020 |
|---|---|
| Objektzustand | Neuwertig |
| Qualität der Austattung | Luxus |
| Heizungsart | Wärmepumpe |
| Wesentliche Energieträger | Strom |
| Energieausweis | liegt zur Besichtigung vor |
Beschreibung des Objekts
Ausstattung
- Massivbauweise
- Steinfliesen
- Einbauküche
- 3-fach Verglasung aller Fenster
- 2 Kfz-Stellplätze
- Klimaanlage
- Luftwärmepumpe
Lage
Die Stadtvilla steht in Mainz-Kastel. Dem am rechten Rheinufer gelegenen Stadtteil der Landeshauptstadt Wiesbaden. Er befindet sich unmittelbar gegenüber der Mainzer Altstadt und zeichnet sich durch seine verkehrsgünstige Lage sowie seine historische Bedeutung aus. Das Stadtbild wird geprägt von der Uferpromenade, dem Reduit und den Resten des römischen Kastells, die an die lange Siedlungsgeschichte des Ortes erinnern. Ihre kulturellen Einrichtungen, regelmäßige Veranstaltungen am Rheinufer und die Nähe zu beiden Innenstädten machen Mainz-Kastel zu einem funktional wichtigen und vielseitig genutzten Stadtteil.
Mainz-Kastel bietet eine gute Mischung aus Wohnbebauung, Einzelhandel und Gastronomie. Durch die direkte Anbindung über die Theodor-Heuss-Brücke sowie durch S-Bahn- und Busverbindungen ist Mainz-Kastel eng mit Mainz und den umliegenden Wiesbadener Stadtteilen vernetzt. Die Auffahrt zur A671 ist nur knapp 2 Kilometer entfernt.
Sonstige Angaben
Alle Angaben sind ohne Gewähr und basieren ausschließlich auf Informationen, die uns von unserem Auftraggeber zur Verfügung gestellt wurden. Wir übernehmen keine Gewähr für die Vollständigkeit, Richtigkeit und Aktualität dieser Angaben. Im Übrigen gelten unsere Allgemeinen Geschäftsbedingungen. Irrtum und Zwischenverkauf vorbehalten.
Die Bilder im Exposé können vom tatsächlichen Ergebnis abweichen.
Gezeigte Innenausstattungen gehören nicht zum Angebot.
GELDWÄSCHE: Wir weisen darauf hin, dass Immobilienmaklerunternehmen nach § § 1, 2 Abs. 1 Nr. 10, 4 Abs. 3 Geldwäschegesetz (GwG) vor dem Entstehen einer Geschäftsbeziehung zur Feststellung und Überprüfung des Vertragspartners verpflichtet sind. Dies erfolgt z.B. durch eine Kopie Ihres Personalausweises. Die Angaben hieraus müssen gemäß Geldwäschegesetz fünf Jahre aufbewahrt werden.
DATENSCHUTZ: Im Zuge Ihrer Anfrage werden von uns Ihre personenbezogenen Daten für den Zwecke der Vertragsanbahnung gespeichert. Wir verweisen in diesem Zusammenhang auf unsere Datenschutzerklärung.
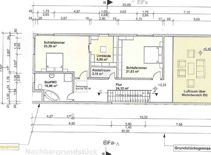
Grundriss
Grundriss EG
>
>
Grundriss 1.OG
>
>
Adresse
55252 Wiesbaden
Interessante Orte
Preis- und Lageinformationen
Preistrend für Bestandsimmobilien in Kastel