Der Startschuss für Ihr Eigenheim:
Im Angebotspreis enthalten sind das Grundstück und das Haus in der beschriebenen Ausfertigung. Selbstverständlich kann das Haus vergrößert oder verkleinert und Ihren Wünschen entsprechend umgeplant werden.
Wir können Ihnen in mehreren Regionen weitere BAUPLÄTZE anbieten!
***Nutzen Sie unseren aktuellen FÖRDERMITTEL-CHECK und vereinbaren Sie Ihren persönlichen Beratungstermin!***
Ihr neues Zuhause
36129 Gersfeld (Rhön)
Die vollständige Adresse der Immobilie erhalten Sie vom Anbieter.
Auf Karte anzeigen
Die vollständige Adresse der Immobilie erhalten Sie vom Anbieter.
Finanzierungszertifikat
In nur zwei Minuten zu Ihrem persönlichen Finanzierungszertifkat.
Infos
| Haustyp | Einfamilienhaus |
|---|---|
| Wohnfläche ca. | 109 m2 |
| Nutzfläche | 0 m2 |
| Grundstücksfläche | 531 m2 |
| Zimmer | 4 |
| Schlafzimmer | 3 |
| Badezimmer | 1 |
| Anzahl Garage/Stellplatz | 1 |
Kosten
| Kaufpreis |
407.557 € |
|---|---|
| Provision | Nein |
Finanzierungsrechner:
Kaufpreis:
600.000 €
Eigenkapital:
600.000 €
Monatliche Rate
0 €
Effektiver Jahreszins
0 %
Sollzinsbindung
10 Jahre
Bausubstanz & Energieausweis
| Baujahr | 2026 |
|---|---|
| Bauphase | Haus in Planung (projektiert) |
| Qualität der Austattung | Gehoben |
| Heizungsart | Wärmepumpe |
Beschreibung des Objekts
Ausstattung
Alle Schwabenhäuser werden hochwertig ausgestattet.
Unsere Antwort auf hohe Energiekosten lautet *Energie verwenden statt verschwenden*. . Wählen Sie Ihre intelligente Kombination aus Dämm-Paket, Heizungs-Paket und Technologie-Paket.
Diesem Angebot liegt die beliebte Schwabenhaus-Ausbaustufe SCHLÜSSELFERTIG zugrunde. Diese kann selbstverständlich noch entsprechend Ihrer geplanten Eigenleistungen angepasst werden.
Lage
Gersfeld (Rhön) ist eine Kleinstadt im osthessischen Landkreis Fulda. Details zum Bauplatz erfahren Sie in einem persönlichen Gespräch.
Sonstige Angaben
Das Grundstück wird in Kommission angeboten bzw. direkt von Dritten verkauft. Daher kann der o.g. Preis aufgrund aktueller Marktsituationen schwanken. Nähere Angaben zur Lage erhalten Sie in einem persönlichen Gespräch. Bilder zeigen möglicherweise Sonderausstattungen, die auf Wunsch gegen Preiskorrektur zusätzlich angeboten werden können. Abbildungen, Grundrisse und Flächenangaben sind beispielhaft und können Extras zeigen. Flächenangaben nach DIN 277.
Wir bitten um Ihr Verständnis, dass nur vollständige Anfragen inkl. E-Mail und Telefonnummer bearbeitet werden können.
Anbauteile, Carport, Garage und Keller können Extras sein, die als Sonderausstattung angeboten werden. Abbildungen, Grundrisse und Flächenangaben sind beispielhaft und können Extras zeigen. Flächenangaben nach DIN 277.
Profitieren Sie jetzt von der Schwabenhaus Online Beratung und verwirklichen Sie Ihr Traumhaus https://www.schwabenhaus.de/anmeldung-hausbau-beratung-online/
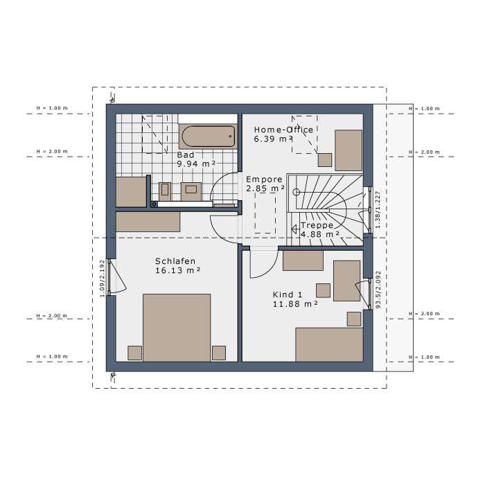
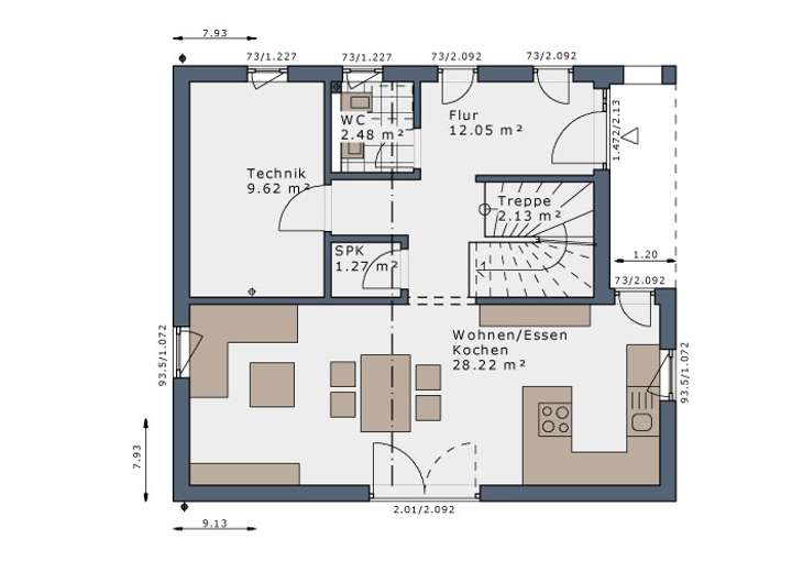
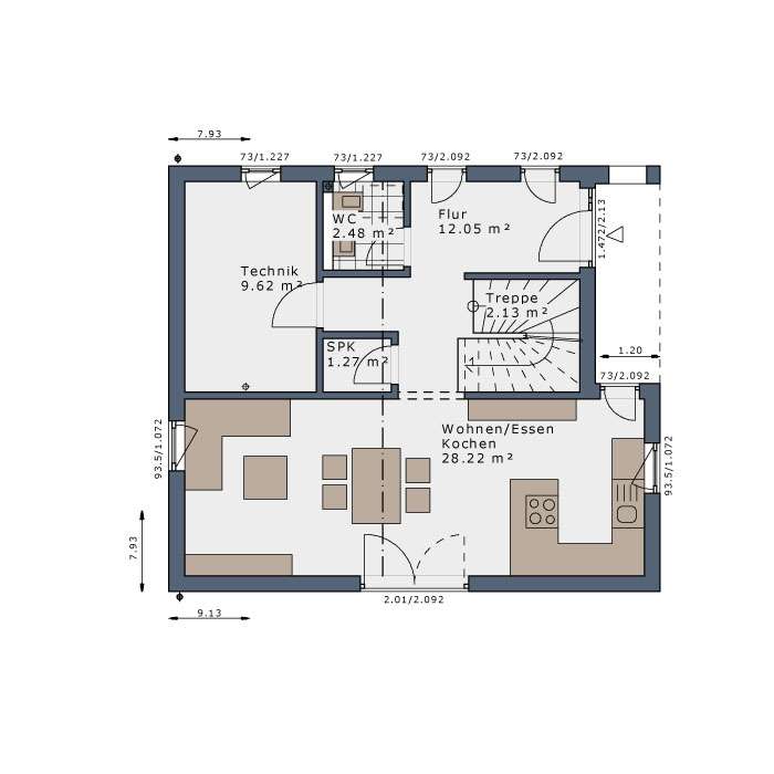
Grundriss
Erdgeschoss
>
>
Obergeschoss
>
>
Adresse
36129 Gersfeld (Rhön)
Interessante Orte
Preis- und Lageinformationen
Preistrend für Bestandsimmobilien in Gersfeld (Rhön)