Dieses moderne Wohn-und Bürohaus überzeugt durch klare Linien und hochwertige Ausstattung mit Terrassen und schön angelegtem Garten. Das Gebäude besteht aus drei Einheiten mit separaten ebenerdigen Zugängen, die bei Bedarf auch zusammengelegt werden können.
Der Hauptteil, mit Terrasse, wird derzeit als Büro genutzt. Die Wohnungen verfügen jeweils über eine Pantryküche mit allen notwendigen Geräten, Natursteinbäder mit Tageslicht sowie eine komfortable Fußbodenheizung.
Die lichtdurchfluteten Räume profitieren von bodentiefer Panoramaverglasung und elektrischer Beschattung, inklusive Wind- und Sonnenwächter. Ein Kamin ist vorbereitet. Dieser kann in zwei Geschossen genutzt werden.
Die größere Wohnung besticht zusätzlich durch eine wunderbare Terrasse mit Blick auf den Garten, während die kleinere Wohneinheit mit zwei Zimmern einen praktischen Abstellbereich für Fahrräder hat. Zudem lädt eine weitere Terrasse mit herrlichem Gartenblick zum Entspannen ein.
Das Anwesen ist in Splitlevelbauweise gebaut und liegt in leichter Hanglage. Außerdem wurde ein Niedrigenergiekonzept realisiert.
Die moderne Form, eine luxuriöse Innengestaltung mit edlen Naturmaterialien sowie ein gelungenes Raumkonzept verleihen dem Haus einen äußerst repräsentativen Charakter.
Im hinteren Teil des Gartens befindet sich eine separate kleine Wohnung, ebenfalls mit voll funktionsfähiger Einbauküche. Vielfach nutzbar und ideal für anspruchsvolles Wohnen in kombinierter Wohn- und Arbeitsnutzung.
Modernes Wohn-/Bürohaus am Mittelberg
88400 Biberach an der Riß
Die vollständige Adresse der Immobilie erhalten Sie vom Anbieter.
Auf Karte anzeigen
Die vollständige Adresse der Immobilie erhalten Sie vom Anbieter.
Finanzierungszertifikat
In nur zwei Minuten zu Ihrem persönlichen Finanzierungszertifkat.
Infos
| Haustyp | Sonstige |
|---|---|
| Etagenzahl | 2 |
| Wohnfläche ca. | 248 m2 |
| Grundstücksfläche | 435 m2 |
| Bezugsfrei ab | nach Absprache |
| Zimmer | 8 |
| Badezimmer | 3 |
| Garage/Stellplatz | Garage |
| Anzahl Garage/Stellplatz | 2 |
Kosten
| Kaufpreis |
1.290.000 € |
|---|---|
| Provision |
3,57 % inkl. ges. MwSt. Die Maklercourtage für den Käufer beträgt 3 % aus dem Kaufpreis zuzüglich der gesetzlichen MwSt., somit gesamt 3,57 %. |
Finanzierungsrechner:
Kaufpreis:
600.000 €
Eigenkapital:
600.000 €
Monatliche Rate
0 €
Effektiver Jahreszins
0 %
Sollzinsbindung
10 Jahre
Bausubstanz & Energieausweis
| Baujahr | 1966 |
|---|---|
| Letzte Sanierung | 2011 |
| Objektzustand | Gepflegt |
| Qualität der Austattung | Gehoben |
| Heizungsart | Zentralheizung |
| Wesentliche Energieträger | Gas |
| Energieausweis | liegt vor |
| Energieausweistyp | Verbrauchsausweis |
| Energieverbrauchskennwert | 71,0 kWh/(m²*a) |
| Energieeffizienzklasse | B |
71,0
kWh/(m²*a)
Energieeffizienzklasse B
- A+
- A
- B
- C
- D
- E
- F
- G
- H
- 0
- 25
- 50
- 75
- 100
- 125
- 150
- 175
- 200
- 225
- >250
Beschreibung des Objekts
Ausstattung
* 2011 komplett auf den Rohbau zurückgeführt und neu ausgebaut
und aufgestockt
* jedes Geschoss verfügt über Terrassen oder Gartenzugang
* bodentiefe Panoramaverglasungen
* elektrische Verschattungsjalousien mit Wind und Sonnenwächter
* Kamin mit Vorrichtung für Anschlüsse in 2 Geschossen
* Einbauschränke
* Parkett- und Feinsteinböden
* Dimmbare Deckenspots
* Pantry Einbauküchen mit Geräten
* moderne Naturstein Duschbäder
* mehrere Gartenterrasse
* zusätzliche Remise
* KAT-Verkabelung mit Telefonanlage
* Serverraum
* eine Doppelgarage und zwei Stellplätze
(davon ein Stellplatz an der Straße)
Lage
* Der Mittelberg in Biberach ist eine bevorzugte,
ruhige Wohngegend mit herrlichem Blick.
* Alles was für das tägliche Leben wichtig ist,
befindet sich am Berliner Platz.
* Es gibt drei Kindergärten, zwei Grundschulen und
zwei Privatschulen in der Nähe.
* Zwei Buslinien befinden sich in ca. 200 Metern Entfernung.
* Die Immobilie befindet sich in einem allgemeinen Wohngebiet
und kann daher sowohl als Wohnhaus als auch teilweise
von Freiberuflern genutzt werden.
Sonstige Angaben
Energieverbrauchsausweis Energiekennwert: 71,00 kWh/(qm*a) Energieeffizienz: Klasse B (kl.75) Heizung: Zentralheizung mit Gas Baujahr laut Energieausweis: 1966
2 x Garage, 2 x Stellplatz außen
* Veränderungen mit Schwerpunkt auf das Wohnen sind möglich
* Grundrisse folgen
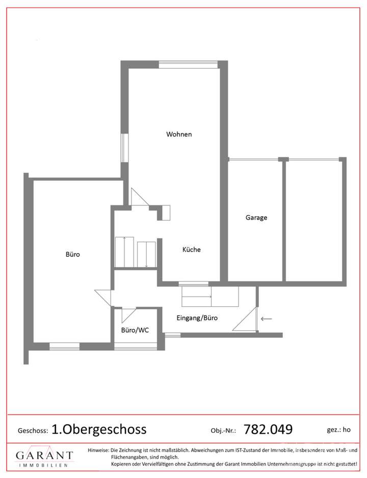
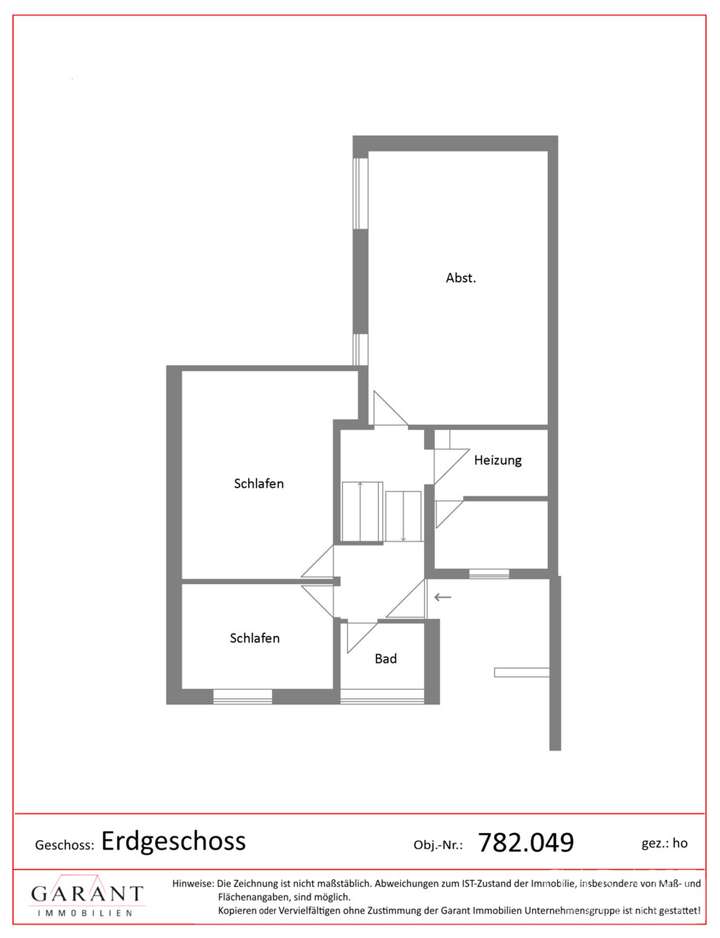
Grundriss
Grundriss/EG
>
>
Grundriss/1
>
>
Grundriss/2
>
>
Adresse
88400 Biberach an der Riß
Interessante Orte
Preis- und Lageinformationen
Preistrend für Bestandsimmobilien in Biberach an der Riß