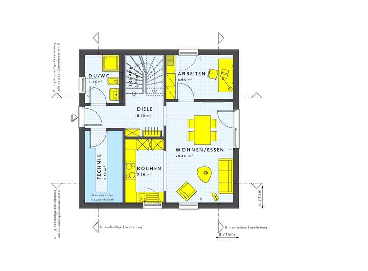
Stell dir vor, du betrittst dein neues Zuhause in Wedemark, das ganz nach deinen Wünschen und Vorstellungen gestaltet wurde. Dieses beeindruckende Einfamilienhaus mit einer großzügigen Wohnfläche von 124 Quadratmetern und einer Grundstücksgröße von 622 Quadratmetern bietet dir und deiner Familie Raum zum Entfalten. Mit fünf Zimmern, darunter drei Schlafzimmer und ein Badezimmer, findest du hier die perfekte Balance zwischen Wohnkomfort und Funktionalität. Die zwei Etagen, kombiniert mit einem klassischen Satteldach, verleihen deinem Zuhause eine zeitlose Eleganz. Der Erker oder Giebel erstreckt sich und vergrößert den Wohnbereich, während die bodentiefen Fenster nicht nur für einen lichtdurchfluteten Raum sorgen, sondern auch eine harmonische Verbindung zur Natur schaffen.
LivingHaus bietet dir nicht nur die Möglichkeit, dein Traumhaus zu bauen, sondern auch zahlreiche zusätzliche Leistungen, die dein Leben noch einfacher und schöner machen. Die hochwertige Traumküche von LivingHaus wird perfekt auf deinen Grundriss abgestimmt. Sie kommt mit modernster Technik, cleveren Stauraumlösungen und einem ästhetischen Design, sodass du sofort nach dem Einzug loskochen kannst. Das LivingHaus Bau-Cockpit sorgt dafür, dass du während des gesamten Bauprojekts den Überblick behältst. Mit der Bau-App hast du jederzeit Zugriff auf Zeitpläne, Dokumente und wichtige Informationen, damit du stressfrei bauen kannst.
Dank I-KON - Intelligentes Bauen wird dein Zuhause nachhaltig und energieeffizient gestaltet. Das I-KON Effizienzhaus 55 benötigt nur 55 % der Energie eines herkömmlichen Hauses, was nicht nur gut für die Umwelt, sondern auch für deinen Geldbeutel ist. Um den Traum vom Eigenheim zu finanzieren, steht dir das Zuhause-Darlehen zur Verfügung, mit dem du bis zu 250.000 Euro zu einem besonders günstigen Zinssatz erhalten kannst.
Das Zuhause-Paket stellt sicher, dass dein Haus mit einer hochwertigen Grundausstattung ausgeliefert wird, inklusive moderner Böden, edler Türen und stilvollen Sanitäranlagen. Und wenn du gerne selbst Hand anlegen möchtest, bietet dir das DIY-Ausbau-Coaching die Möglichkeit, in nur drei Tagen von Experten zu lernen, wie du den Innenausbau selbst meisterst.
LivingHaus bietet dir ein durchdachtes Gesamtkonzept, das deinen Traum vom Eigenheim Wirklichkeit werden lässt - von der Planung über die Finanzierung bis hin zur individuellen Ausgestaltung.
Dein individuelles Traumhaus in Wedemark - Mit LivingHaus die Zukunft gestalten
30900 Wedemark
Die vollständige Adresse der Immobilie erhalten Sie vom Anbieter.
Auf Karte anzeigen
Die vollständige Adresse der Immobilie erhalten Sie vom Anbieter.
Finanzierungszertifikat
In nur zwei Minuten zu Ihrem persönlichen Finanzierungszertifkat.
Infos
| Haustyp | Einfamilienhaus |
|---|---|
| Etagenzahl | 2 |
| Wohnfläche ca. | 124 m2 |
| Nutzfläche | 124 m2 |
| Grundstücksfläche | 622 m2 |
| Zimmer | 5 |
| Schlafzimmer | 3 |
| Badezimmer | 1 |
Kosten
| Kaufpreis |
563.541 € |
|---|
Finanzierungsrechner:
Kaufpreis:
600.000 €
Eigenkapital:
600.000 €
Monatliche Rate
0 €
Effektiver Jahreszins
0 %
Sollzinsbindung
10 Jahre
Bausubstanz & Energieausweis
| Baujahr | 2026 |
|---|---|
| Bauphase | Haus in Planung (projektiert) |
| Qualität der Austattung | Gehoben |
| Energieausweis | liegt vor |
| Energieausweistyp | Bedarfsausweis |
| Energieverbrauchskennwert | 18,0 kWh/(m²*a) |
| Energieeffizienzklasse | A+ |
18,0
kWh/(m²*a)
Energieeffizienzklasse A+
- A+
- A
- B
- C
- D
- E
- F
- G
- H
- 0
- 25
- 50
- 75
- 100
- 125
- 150
- 175
- 200
- 225
- >250
Beschreibung des Objekts
Ausstattung
Die Ausstattung deines neuen Hauses ist nicht nur funktional, sondern auch stilvoll. Du erhältst moderne Böden, edle Türen und hochwertige Sanitäranlagen, alles optimal aufeinander abgestimmt und fix und fertig geliefert. Darüber hinaus profitierst du von einer individuell geplanten Küche, die ohne unverbindliche Gutscheine direkt in deinem neuen Zuhause installiert wird. Die modernen Fliesen für das gesamte Erdgeschoss und die bodengleichen Duschen mit Echtglasabtrennung sorgen für ein zeitgemäßes Ambiente. Durch den hohen Vorfertigungsgrad wird der Bauprozess effizient gestaltet, und du erhältst eine 30-jährige Garantie auf die Grundkonstruktion. Ob Bodenplatte oder Keller, alles wird aus einer Hand abgewickelt. Zudem sorgen aluminiumgeschäumte Rollläden für zusätzlichen Hitzeschutz im Sommer und verbessern die Wärmedämmung im Winter. Dein »Wie ich es will Fertighaus« wartet auf dich!
Lage
Wedemark ist der perfekte Ort für Familien, Naturliebhaber und Pendler. Du findest hier eine Vielzahl an Bildungseinrichtungen, darunter mehrere Grundschulen und weiterführende Schulen, die alle gut erreichbar sind. Besonders die Grundschule in Bissendorf wird von Eltern hoch geschätzt. Für die Kleinsten gibt es zahlreiche Kindergärten in der Umgebung, die eine liebevolle und fördernde Betreuung bieten.
Einkaufsmöglichkeiten sind ebenfalls reichlich vorhanden. Supermärkte wie REWE und Edeka sowie zahlreiche Fachgeschäfte sorgen dafür, dass du alles für den täglichen Bedarf schnell erreichen kannst. Auch Ärzte und Apotheken sind in der Nähe, sodass du bei gesundheitlichen Anliegen gut versorgt bist.
Freizeitangebote kommen in Wedemark nicht zu kurz. Ob Wanderungen im schönen Naturpark Lüneburger Heide, Radtouren entlang der Aller oder Ausflüge zu den nahegelegenen Badeseen - die Umgebung bietet unzählige Möglichkeiten für aktive Erholung. Zudem ist die Anbindung an den öffentlichen Nahverkehr und die Autobahn vorbildlich, was Pendeln in die nahegelegenen Städte wie Hannover oder Celle zum Kinderspiel macht. Du siehst, Wedemark ist nicht nur ein Ort zum Leben, sondern ein Ort zum Wohlfühlen!
Adresse
30900 Wedemark
Interessante Orte
Preis- und Lageinformationen
Preistrend für Bestandsimmobilien in Wedemark