Sie suchen eine repräsentative Villa in einer sehr guten Wohnlage in Lotte?
Im klassischen Stil erbaut erwartet Sie hier ein solides Anwesen auf einem Eigentumsgrundstück von ca. 1.500 m². Die Immobilie besteht aus zwei abgeschlossenen Wohneinheiten mit getrennten Eingängen und pflegeleicht angelegten Gartenbereichen in perfekter Südausrichtung.
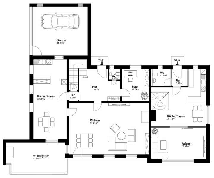
Die freigestellte größere Wohneinheit überzeugt durch seine überaus moderne Raumaufteilung und einen zeitgemäßen Grundriss. Eine Wohnfläche von rund 240 m² und eine zusätzliche zum Wohnen geeigneten Nutzfläche von 25 m² bietet Platz für eine große Familie.
Schon im Eingangsbereich zeigt sich die individuelle Architektur der Immobilie.
Das Highlight des Hauses ist der repräsentative ca. 50 m² große Wohnbereich mit Kamin und Zugang sowohl zum Essbereich als auch zum lichtdurchfluteten Wintergarten. Edles Parkett verleiht dem Raum Wärme und Eleganz.
Der durchdachte, aktuelle Grundriss bietet mehrere Durchgänge zum getrennten Essbereich mit offener Küche und Tresen. Von der Küche bietet ein direkter Zugang zur Doppelgarage die Möglichkeit trockenen Fußes seine Einkäufe in das Haus zu transportieren.
Der sonnige Wintergarten zur Südseite mit Blick ins Grüne schafft eine fließende Verbindung zwischen Innen und Außen. Hier können Sie in der Sonne relaxen.
Ein Büro und ein Gäste-WC runden das Raumangebot im Erdgeschoss ab.
Im Obergeschoss eröffnet sich eine private Rückzugsoase für die ganze Familie: Drei helle Kinderzimmer und ein großzügiges Elternschlafzimmer bieten Raum für Individualität und Komfort. Zwei Bäder unterstreichen den gehobenen Wohnstandard.
Zwei der Zimmer im Obergeschoss haben jeweils unter dem Dach des Wintergartens bzw. über der Garage noch eine zusätzliche, zum Wohnen geeignete Nutzfläche. Für Teenies um mit Freunden in Ruhe zu chillen oder alternativ auch eine Möglichkeit, um abseits des Trubels im Haus in Ruhe zu arbeiten.
Willkommen in Ihrem neuen Zuhause
Klassische Villa in Bestlage
49504 Lotte
Die vollständige Adresse der Immobilie erhalten Sie vom Anbieter.
Auf Karte anzeigen
Die vollständige Adresse der Immobilie erhalten Sie vom Anbieter.
Finanzierungszertifikat
In nur zwei Minuten zu Ihrem persönlichen Finanzierungszertifkat.
Infos
| Haustyp | Mehrfamilienhaus |
|---|---|
| Wohnfläche ca. | 350 m2 |
| Nutzfläche | 25 m2 |
| Grundstücksfläche | 1.505 m2 |
| Zimmer | 11 |
| Badezimmer | 5 |
Kosten
| Kaufpreis |
625.000 € |
|---|---|
| Provision |
3,57% Käuferprovision inkl. MwSt. |
Finanzierungsrechner:
Kaufpreis:
600.000 €
Eigenkapital:
600.000 €
Monatliche Rate
0 €
Effektiver Jahreszins
0 %
Sollzinsbindung
10 Jahre
Bausubstanz & Energieausweis
| Baujahr | 1984 |
|---|---|
| Objektzustand | Gepflegt |
| Wesentliche Energieträger | Gas |
| Energieausweis | liegt vor |
| Energieausweistyp | Verbrauchsausweis |
| Energieverbrauchskennwert | 109,5 kWh/(m²*a) |
| Energieeffizienzklasse | D |
109,5
kWh/(m²*a)
Energieeffizienzklasse D
- A+
- A
- B
- C
- D
- E
- F
- G
- H
- 0
- 25
- 50
- 75
- 100
- 125
- 150
- 175
- 200
- 225
- >250
Beschreibung des Objekts
Ausstattung
Die Immobilie ist voll unterkellert. Es befindet sich dort eine Sauna und ein weiteres Bad, um zu entspannen. Sämtliche Versorgungseinheiten befinden sich im Keller. Es gibt einen direkten Ausgang in den Garten.
Ein riesiger Dachboden gibt Ihnen die Möglichkeit jegliche Sammelleidenschaft zu pflegen.
Eine weitere Doppelgarage und ein Geräteschuppen fügen sich harmonisch in das gepflegte Gesamtbild der Liegenschaft ein.
Im Jahr 2000 wurde die Immobilie in zwei Wohneinheiten unterteilt, da die Immobile von Anfang an mit zwei Eingangsbereichen konzipiert wurde.
Derzeit ist die kleinere Wohneinheit an eine Familie vermietet. Ursprünglich wurde dieser Teil der Immobilie von den Eigentümern als Arztpraxis genutzt.
Das Anwesen bietet nach einer entsprechenden Modernisierung viel Potential für individuelle Nutzungskonzepte.
Lage
Lotte liegt idyllisch im Tecklenburger Land, eingebettet in grüne Felder und ruhige Wohnviertel. Die Ortschaft verbindet ländliche Atmosphäre mit guter Anbindung: Die Gemeinde Lotte ist bekannt durch das Autobahnkreuz Lotte/Osnabrück, an dem sich die Autobahnen A1 und A30 kreuzen. Dadurch liegt Lotte verkehrstechnisch sehr gut. Auch der Flughafen Münster-Osnabrück (FMO) ist schnell erreichbar. Zum Oberzentrum Osnabrück im angrenzenden Niedersachsen sind es bis in die City 10 km. Sowohl mit dem Auto als auch mit dem Bus ist Osnabrück gut zu erreichen.
Lotte bietet eine ausgewogene Infrastruktur mit Einkaufsmöglichkeiten, Ärzten, Apotheken, Schulen und Kindergärten im näheren Umfeld. Die Nahversorgung ist in den zentraleren Ortsteilen wie Alt-Lotte oder Wersen sehr gut ausgebaut. Darüber hinaus genießen Bewohner ein ruhiges, familienfreundliches Wohnumfeld mit viel Grün, Spazier- und Radwegen sowie einem breiten Freizeit- und Sportangebot. Der Fußballverein des VfL Sportfreunde Lotte ist weit über die Region hinaus bekannt und hat viele Fans.
Sonstige Angaben
Bitte haben Sie Verständnis dafür, dass wir nur Anfragen beantworten können, wenn eine vollständige postalische Adresse, E-Mail-Adresse und eine Telefonnummer, unter der wir Sie tagsüber erreichen können, vorliegt. Wir danken Ihnen für Ihr Verständnis und freuen uns auf eine angenehme Kontaktaufnahme.
Wir weisen Sie darauf hin, dass bei Abschluss eines Kaufvertrages eine Käuferprovision in Höhe von 3,57% inkl. MwSt. vom beurkundeten Gesamtvertragswert zur Zahlung durch den Käufer an uns fällig wird. Ein MV in gleicher Höhe wurde mit dem Verkäufer abgeschlossen (§656cBGB).
Alle Angaben und Informationen basieren ausschließlich auf den von unseren Auftraggebern erteilten Auskünften. Eine Haftung für Richtigkeit und Vollständigkeit können wir nicht übernehmen. Es wird keine Prospekthaftung übernommen. Unsere Angebote sind freibleibend und unverbindlich. Der Auftraggeber hat alle Angaben vor Vertragsabschluss selbst zu prüfen. Irrtum und Zwischenverkauf bzw. Zwischenvermietung bleiben vorbehalten.
Es gelten unsere aktuellen AGB`s.
Zur Teilnahme an einem Streitbeilegungsverfahren vor einer Verbraucherschlichtungsstelle sind wir nicht verpflichtet und grundsätzlich nicht bereit.
Grundriss
Erdgeschoss
>
>
Obergeschoss
>
>
Adresse
49504 Lotte
Interessante Orte
Preis- und Lageinformationen
Preistrend für Bestandsimmobilien in Lotte