Objektnr: 1069148
Das charmante Anwesen in Gelsenkirchen-Hassel vereint den Charakter klassischer Altbau-Architektur mit modernen Nutzungsmöglichkeiten und attraktiven Entwicklungsperspektiven. Auf einem großzügigen Grundstück von rund 1.425 m² erstrecken sich zwei Doppelhaushälften, die sich sowohl für Selbstnutzer mit zusätzlich generierten Mieteinnahmen, als auch Mehrgenerationwohnen hervorragend eignen.
Die linke Haushälfte (Hausnummer A) verfügt über drei separate Wohneinheiten mit eigenem Eingang sowie einem abgetrennten Garten, sodass man als Eigentümer vollkommen autark lebt und gleichzeitig von stabilen Mieteinnahmen profitiert. Die Erdgeschosswohnung mit einer Wohnfläche von 67,02 m² ist seit dem 01.05.2022 für 429 € kalt vermietet und umfasst zusätzlich einen eigenen Gartenanteil, die letzte Mieterhöhung erfolgte im Januar 2025. Die Wohnung im 1. Obergeschoss verfügt über 69,02 m² und ist seit dem 01.02.2025 für 460 € kalt vermietet, während die Dachgeschosswohnung 94,25 m² umfasst, seit dem 01.11.2021 vermietet ist und derzeit eine Kaltmiete von 574 € einbringt; auch hier wurde die Miete zuletzt im Januar 2025 angepasst. Bis auf die Erdgeschosswohnung wurden alle Leitungen und Bäder erneuert, was die Attraktivität für Mieter langfristig sichert und Instandhaltungsrisiken deutlich reduziert.
Die rechte Haushälfte (Hausnummer B) wurde im Jahr 2016 umfassend von einem Dreifamilienhaus zu einem großzügigen Einfamilienhaus umgebaut und modernisiert. Mit einer Wohnfläche von insgesamt 189,68 m² überzeugt hier vor allem der direkte Zugang vom großen, offenen Wohnbereich in den gepflegten Garten, der ideale Rückzugsmöglichkeiten bietet und viel Raum für Familienleben schafft. Eine neu gepflasterte Einfahrt mit umzäunten Stellplätzen rundet das Gesamtbild ab und gewährleistet sowohl Komfort als auch Privatsphäre.
Mit einer Gesamtwohnfläche von ca. 419,97 m² und einer Jahresnettokaltmiete von aktuell rund 17.556 € bietet die Immobilie bereits heute eine sichere Grundlage. Gleichzeitig eröffnet die bezugsfreie Haushälfte vielfältige Perspektiven: Für Eigennutzer ergibt sich die Möglichkeit, den Traum vom Eigenheim zu realisieren und gleichzeitig durch die Mieteinnahmen der Nachbarhaushälfte eine spürbare finanzielle Entlastung zu erhalten. Für Familien oder Mehrgenerationenhaushalte bietet sich die Chance, Eltern, Geschwister oder Kinder direkt nebenan unterzubringen, ohne dabei auf die eigene Privatsphäre verzichten zu müssen. Für Kapitalanleger wiederum ist das Objekt nicht nur durch die bestehende Vermietung interessant, sondern auch durch das zusätzliche Ausbaupotenzial. Neben der Option, das großzügige Dachgeschoss weiter auszubauen, besteht hinter dem Gebäude die Möglichkeit, durch einen Anbau zusätzlichen Wohnraum zu schaffen. Darüber hinaus lässt die Grundstückssituation nach § 34 BauNVO NRW auch eine ergänzende Bebauung rechts und links des Gebäudes zu, wodurch sich langfristig erhebliche Wertsteigerungschancen ergeben.
Abgerundet wird dieses Angebot durch insgesamt vier Freistellplätze, die komfortables Parken gewährleisten, sowie durch die ruhige, gewachsene Wohnlage in Gelsenkirchen, die sowohl für Mieter als auch für Selbstnutzer attraktiv ist. Damit präsentiert sich dieses Anwesen als seltene Gelegenheit, eine vielseitige und großzügige Immobilie mit stabiler Renditebasis, Ausbaupotenzial und hervorragender Eignung für unterschiedliche Lebenskonzepte zu erwerben – sei es zur Erweiterung eines Immobilienportfolios oder zur Verwirklichung des eigenen Wohntraums.
Zwei autarke Haushälften – ideal für Familien & Entlastung durch Mieteinnahmen oder Mehrgenerationen
45896 Gelsenkirchen
Die vollständige Adresse der Immobilie erhalten Sie vom Anbieter.
Auf Karte anzeigen
Die vollständige Adresse der Immobilie erhalten Sie vom Anbieter.
Finanzierungszertifikat
In nur zwei Minuten zu Ihrem persönlichen Finanzierungszertifkat.
Infos
| Haustyp | Doppelhaushaelfte |
|---|---|
| Etagenzahl | 3 |
| Wohnfläche ca. | 420 m2 |
| Grundstücksfläche | 1.425,3 m2 |
| Bezugsfrei ab | nach Absprache |
| Zimmer | 17 |
| Schlafzimmer | 8 |
| Badezimmer | 5 |
| Garage/Stellplatz | Außenstellplatz |
| Anzahl Garage/Stellplatz | 6 |
Kosten
| Kaufpreis |
729.000 € |
|---|---|
| Provision |
5,95 % Käufer-Provision: 5,95 % inkl. MwSt., sofern der Verkaufspreis über 83.000,00 € liegt. Die Provision ist mit Beurkundung des Kaufvertrages fällig. Liegt der Verkaufspreis dagegen bei/unter 83.000,00 €, ist die fest vereinbarte Mindestprovision i.H.v. mind. 5.950,00 € inkl. MwSt. mit Kaufvertragsbeurkundung fällig. |
| Mieteinnahmen | 1.463 € |
Finanzierungsrechner:
Kaufpreis:
600.000 €
Eigenkapital:
600.000 €
Monatliche Rate
0 €
Effektiver Jahreszins
0 %
Sollzinsbindung
10 Jahre
Bausubstanz & Energieausweis
| Baujahr | 1911 |
|---|---|
| Bauphase | Haus fertig gestellt |
| Objektzustand | Gepflegt |
| Qualität der Austattung | Normal |
| Heizungsart | Zentralheizung |
| Wesentliche Energieträger | Fernwärme |
| Energieausweis | liegt vor |
| Energieausweistyp | Bedarfsausweis |
| Energieverbrauchskennwert | 219,0 kWh/(m²*a) |
| Energieeffizienzklasse | G |
219,0
kWh/(m²*a)
Energieeffizienzklasse G
- A+
- A
- B
- C
- D
- E
- F
- G
- H
- 0
- 25
- 50
- 75
- 100
- 125
- 150
- 175
- 200
- 225
- >250
Beschreibung des Objekts
Ausstattung
+ Zwei Doppelhaushälften mit zwei separaten Eingängen (Hausnummer A & B)
+ Sichere Jahresnettokaltmiete (Hausnummer A, 3 Wohneinheiten) von ca. 17.556 € p.a. mit Neuvermietungspotenzial
+ Hausnummer B als EFH umgebaut, mit viel Platz derzeit selbstgenutzt
+ Wunderschöner, großer Garten
+ Neu gestalteter Weg, 4 Freistellplätze zum Abstellen Ihrer Pkw
Lage
Lage: Attraktive Lage in Gelsenkirchen-Hassel mit guten Bedingungen für Selbstnutzer oder Anleger
Bildung und Betreuung: Nur ca. 800 m zu Kindergarten und Schule - ideale Verhältnisse für Ihre Familie
Nahversorgung: Supermarkt und Postfiliale in weniger als 5 Gehminuten Entfernung
Anbindung: Bushaltestelle, Bahnhof und Autobahn gut erreichbar
Sonstige Angaben
Vereinbaren Sie noch heute einen Besichtigungstermin!
_____________________________________________________
Alle Angaben sind ohne Gewähr und basieren ausschließlich auf Informationen, die uns von unserem Auftraggeber zur Verfügung gestellt wurden. Wir übernehmen keine Gewähr für die Vollständigkeit, Richtigkeit und Aktualität der Angaben.
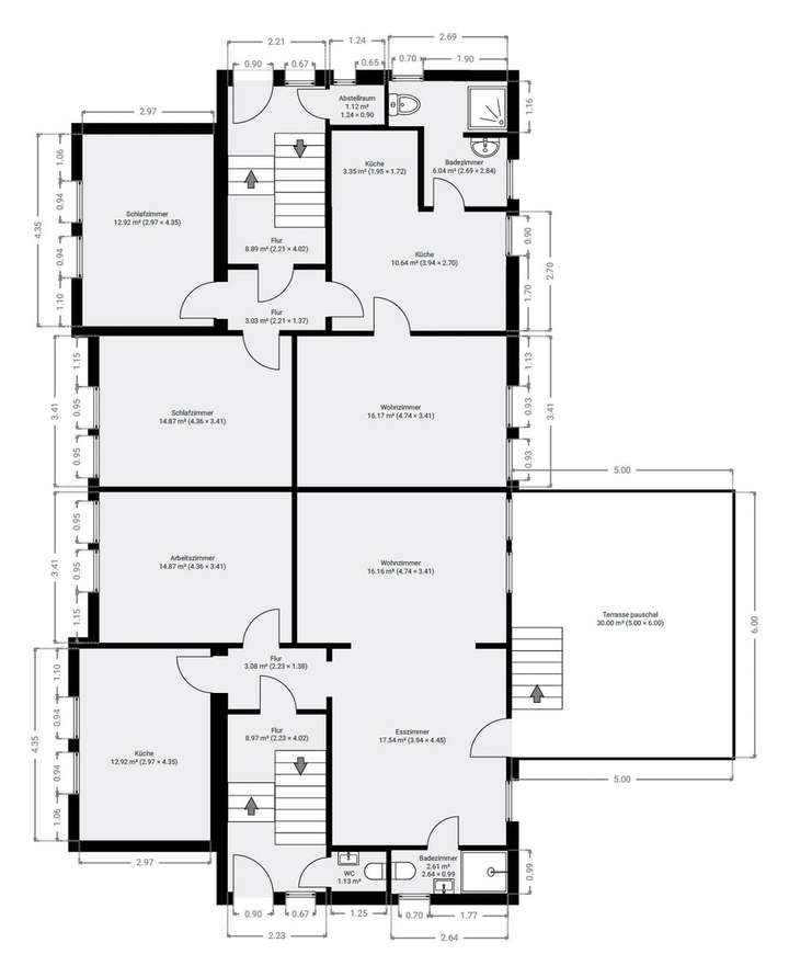
Grundriss
Grundriss Skizze EG
>
>
Grundriss Skizze 1.OG
>
>
Grundriss Skizze 2.OG
>
>
Grundriss Skizze UG
>
>
Adresse
45896 Gelsenkirchen
Interessante Orte
Preis- und Lageinformationen
Preistrend für Bestandsimmobilien in Hassel