Das im Jahr 1978 in massiver Bauweise errichtete Mehrfamilienhaus präsentiert sich als solide und renditestarke Kapitalanlage mit vier vermieteten Wohneinheiten. Auf einem 1.257 m² großen Grundstück in ruhiger Wohnlage bietet die gepflegte Immobilie eine Gesamtwohn- und Nutzfläche von rund 265 m² zuzüglich der weiteren Nutzflächen im Keller- und Dachbodenbereich.
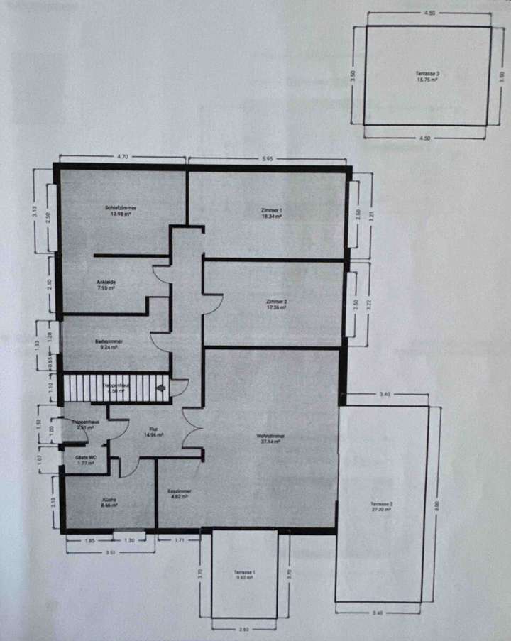
Die großzügige Erdgeschosswohnung mit etwa 152 m² besticht durch einen Wohn-Essbereich mit 43m², drei Schlafzimmern, ein Arbeitszimmer, eine moderne Einbauküche (2015), Vollbad und Gäste-WC. Eine große Terrasse, Gartenhaus und Stellplatz runden das komfortable Wohnen ab.
Im Obergeschoss liegen zwei weitere Einheiten:
Die Wohnung links mit rund 72 m² überzeugt durch einen hellen Wohn-Essbereich mit 32m², neue Einbauküche und ein barrierearmes Duschbad – beides 2024 modernisiert. Ergänzt wird sie durch eine kleine Hobby-Staufläche im Dachgeschoss, eine Terrasse mit Gartenhaus sowie einen Doppelstellplatz in der Tiefgarage.
Rechts daneben befindet sich eine kompakte 1-Zimmer-Wohnung mit rund 37 m², offener Küche, Duschbad (2005) und zusätzlicher Staumöglichkeit im Dachgeschoss.
Im Souterrain liegt eine weitere 2-Zimmer-Wohnung mit ca. 67 m². Sie bietet eine offene Wohnküche, barrierefreies Bad, Fußbodenheizung sowie eine kleine Terrasse.
Der weitere Kellerbereich mit rund 47 m² bietet reichlich Abstellfläche und beherbergt neben vier separaten Kellerräumen auch die Tiefgarage. In allen Wohnungen sowie im Keller sorgt eine Fußbodenheizung für angenehme Wärme.
Die technische Ausstattung wurde laufend gepflegt und modernisiert: eine effiziente Gasheizung aus 2020 mit neuem Warmwasserspeicher (2024), Kunststofffenster mit Isolierverglasung (ausgetauscht zwischen 2020 und 2024) und teilweise neuen Rollläden. Die Elektrik wurde 2022 in Teilbereichen erneuert und um neue Sicherungskästen ergänzt. Das gedämmte Dach (15 cm) befindet sich in gutem Zustand.
Neben einem elektrischen Garagentor, Treppenlift (2023) und Glasfaseranschluss bietet das Haus auch eine Photovoltaikanlage mit 107 Modulen und 18 kWp aus dem Jahr 2011 (monatliche Erstattung von ca 300€).
Die Immobilie erzielt aktuell eine Jahresnettokaltmiete von rund 48.000 € und bietet damit ein stabiles Fundament für eine nachhaltige Kapitalanlage mit attraktiver Rendite. Die Mieterstruktur ist sehr zuverlässig, das Zusammenleben harmonisch und geprägt von einem respektvollen Umgang miteinander. Das Haus wird fortlaufend instand gehalten und präsentiert sich in einem gepflegten Gesamtzustand – ideal für Anleger, die Wert auf Werterhalt und regelmäßige Erträge legen.
In ruhiger und grüner Wohnlage von Norderstedt gelegen, überzeugt das Umfeld durch eine angenehme Nachbarschaft und gute Infrastruktur. Einkaufsmöglichkeiten, Ärzte, Schulen und Kindergärten befinden sich in der Nähe. Bus- und Bahnanbindungen sorgen für eine schnelle Erreichbarkeit des Zentrums von Norderstedt und Hamburg. Die Anbindung zur A7 und dem Hamburger Flughafen ist ebenfalls sehr günstig. Das Wohnumfeld gilt als ausgesprochen beliebt und bietet sowohl Mietern als auch Eigentümern langfristige Sicherheit und Lebensqualität.
Attraktive Kapitalanlage - gepflegtes Mehrfamilienhaus mit 4x Wohneinheiten & Photovoltaik-Anlage
22851 Norderstedt
Die vollständige Adresse der Immobilie erhalten Sie vom Anbieter.
Auf Karte anzeigen
Die vollständige Adresse der Immobilie erhalten Sie vom Anbieter.
Finanzierungszertifikat
In nur zwei Minuten zu Ihrem persönlichen Finanzierungszertifkat.
Infos
| Haustyp | Mehrfamilienhaus |
|---|---|
| Etagenzahl | 3 |
| Wohnfläche ca. | 265 m2 |
| Grundstücksfläche | 1.257 m2 |
| Bezugsfrei ab | nach Absprache |
| Zimmer | 9,5 |
| Schlafzimmer | 5 |
| Badezimmer | 4 |
| Anzahl Garage/Stellplatz | 4 |
Kosten
| Kaufpreis |
1.100.000 € |
|---|---|
| Provision |
7,14% |
Finanzierungsrechner:
Kaufpreis:
600.000 €
Eigenkapital:
600.000 €
Monatliche Rate
0 €
Effektiver Jahreszins
0 %
Sollzinsbindung
10 Jahre
Bausubstanz & Energieausweis
| Baujahr | 1978 |
|---|---|
| Objektzustand | Gepflegt |
| Heizungsart | Zentralheizung |
| Wesentliche Energieträger | Gas |
| Energieausweis | liegt vor |
| Energieausweistyp | Verbrauchsausweis |
| Energieverbrauchskennwert | 173,3 kWh/(m²*a) |
| Energieeffizienzklasse | F |
173,3
kWh/(m²*a)
Energieeffizienzklasse F
- A+
- A
- B
- C
- D
- E
- F
- G
- H
- 0
- 25
- 50
- 75
- 100
- 125
- 150
- 175
- 200
- 225
- >250
Beschreibung des Objekts
Ausstattung
4x WE mit einer JNKM von rund 48.000€
Modernisierung laufend
Hobbyflächen im DG
Staufläche im Kellerbereich
2x Tiefgaragenstellplätze
Freistellplätze
3x Terrassen und Gartenhäuser
großer Garten
Gasheizung von 2020, Warmwasserspeicher 2024
PV-Anlage
Grundriss
Grundriss EG bemaß
>
>
Grundriss OG bemaßt
>
>
Grundriss Keller bemaßt
>
>
Adresse
22851 Norderstedt
Interessante Orte
Preis- und Lageinformationen
Preistrend für Bestandsimmobilien in Norderstedt