Das idyllische Grundstück, auf dem sich das Einfamilienhaus befindet, umfasst ca. 773 m².
Wenn Sie sich schon immer mehr Platz gewünscht haben, besteht die Möglichkeit, das Nachbarflurstück mit zusätzlichen ca. 923 m² zu erwerben. In diesem Angebot ist das zweite Flurstück nicht im Preis enthalten.
Das Nachbarflurstück bietet laut Bebauungsplan Potenzial für die Bebauung mit einem Einfamilienhaus oder einem Doppelhaus und erstreckt sich über eine Fläche von ca. 923 m². Bei einer GRZ (Grundflächenzahl) von 0,2 (20 % des Grundstücks dürfen überbaut werden) und einer Bebauung nach W1o (Wohngebiet, 1 Vollgeschoss, offene Bauweise) könnte hier ein EFH mit ca. 300 m² entstehen, oder ein Doppelhaus mit zwei Doppelhaushälften mit jeweils ca. 150 m² Wohnfläche, verteilt auf ein Vollgeschoss und ein Dach-/Staffelgeschoss.
Sollten Sie Rückfragen zu dem zweiten Flurstücks haben, stehen wir Ihnen gern jederzeit zur Verfügung.
Kommen Sie gerne auf uns zu!
Sollten Sie beide Flurstücke gemeinsam erwerben, haben Sie natürlich den Vorteil, dass Sie mitbestimmen können, was mit dem zweiten Flurstück geschieht und was im Zweifelsfall gebaut wird.
Großzügiges und charmantes Wohnen in ruhiger Anliegerstraße im grünen Duvenstedt
22397 Hamburg
Die vollständige Adresse der Immobilie erhalten Sie vom Anbieter.
Auf Karte anzeigen
Die vollständige Adresse der Immobilie erhalten Sie vom Anbieter.
Finanzierungszertifikat
In nur zwei Minuten zu Ihrem persönlichen Finanzierungszertifkat.
Infos
| Haustyp | Einfamilienhaus |
|---|---|
| Wohnfläche ca. | 245 m2 |
| Grundstücksfläche | 773 m2 |
| Zimmer | 7 |
Kosten
| Kaufpreis |
1.075.000 € |
|---|---|
| Provision |
3,125 % (inkl. MwSt.) vom KP vom Käufer zu zahlen Beim Kauf fällt eine Maklerprovision in Höhe von nur 3,125 % des Kaufpreises inkl. MwSt. an. Die Käufer-Provision ist beim Abschluss des Notarvertrages verdient und fällig. Die Maklerfirma hat einen provisionspflichtigen Vertrag mit dem Verkäufer in gleicher Höhe abgeschlossen. |
Finanzierungsrechner:
Kaufpreis:
600.000 €
Eigenkapital:
600.000 €
Monatliche Rate
0 €
Effektiver Jahreszins
0 %
Sollzinsbindung
10 Jahre
Bausubstanz & Energieausweis
| Baujahr | 1969 |
|---|---|
| Wesentliche Energieträger | Gas |
| Energieausweis | liegt vor |
| Energieausweistyp | Bedarfsausweis |
| Energieverbrauchskennwert | 260,0 kWh/(m²*a) |
| Energieeffizienzklasse | H |
260,0
kWh/(m²*a)
Energieeffizienzklasse H
- A+
- A
- B
- C
- D
- E
- F
- G
- H
- 0
- 25
- 50
- 75
- 100
- 125
- 150
- 175
- 200
- 225
- >250
Beschreibung des Objekts
Ausstattung
Das großzügige und attraktive Einfamilienhaus wurde 1969 erbaut und in den Jahren 1997 & 2013 umfassend saniert.
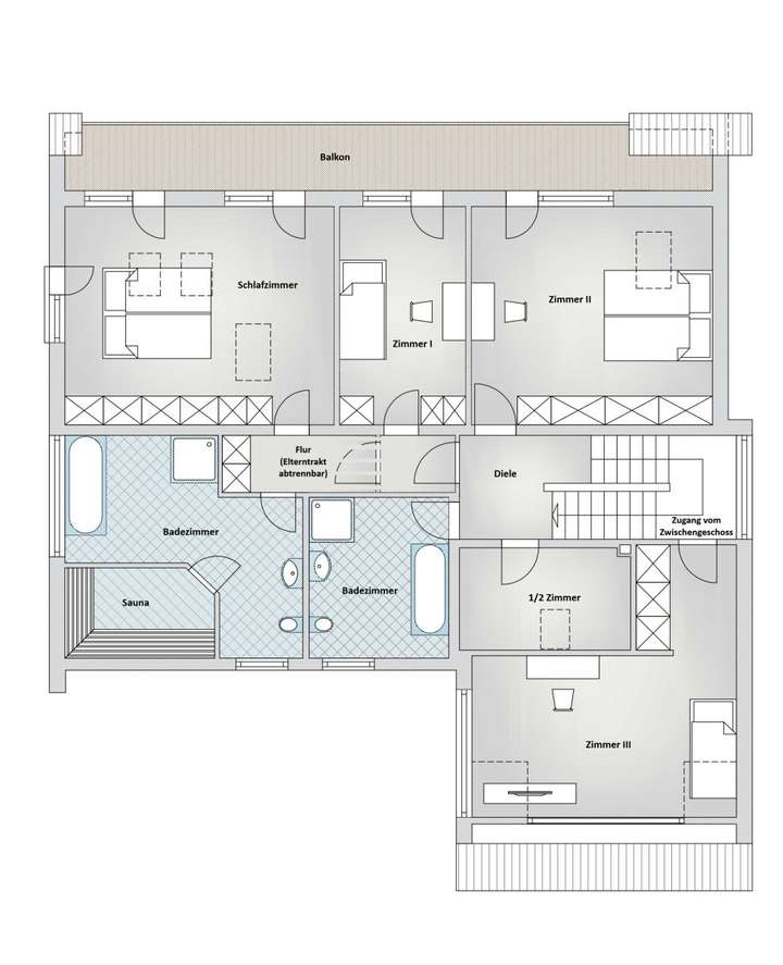
Insgesamt verfügt die Immobilie über ca. 245m² Wohnfläche, die sich auf zwei Etagen verteilt, sowie über etwa 100m² Nutzfläche im Vollkeller.
Das Haus besticht durch viele Besonderheiten, wie z. B. die Split-Level-Bauweise, sodass Sie eine aufgelockerte Verteilung der Räume, jeweils mehrere Stufen abgesetzt auf Zwischengeschossen, vorfinden, sowie durch den doppelseitigen Kamin, dank dem Sie das Feuer sowohl im Wohnbereich als auch in der Wohnküche genießen können.
Zu den vielen Vorzügen dieses schönen Einfamilienhauses zählen:
- eine einladende Diele mit ca. 16 m² und viel Platz für eine Garderobennische
- ein großzügiger und heller Wohn- und Essbereich mit ca. 35 m² sowie ein angrenzendes, ca. 22 m² großes Arbeits- bzw. TV-Zimmer (durch eine Schiebetür getrennt)
- eine Wohnküche mit Essbereich (ca. 29 m²) mit Einbauküche und doppelseitigem Kamin zum Wohn-/Esszimmer
- eine sonnige Südterrasse + Westterrasse, sodass Sie den ganzen Tag die Sonne genießen können
- im OG vier großzügig geschnittene Schlafzimmer mit edlem Kirschholzparkett und vom Tischler angefertigten Einbauschränken (drei Zimmer zwischen ca. 20 m² und 25 m², das 4. mit ca. 11,95 m²)
- zwei der Zimmer verfügen über wohnlich ausgebaute Dachböden, die sich ideal als Schlafplatz oder Rückzugsort eignen
- großes "Wellness-Bad" mit ca. 16 m², Badewanne mit Blick in den Garten + Eckdusche, Waschtisch und WC; zusätzlich verfügt das Badezimmer über eine finnische SAUNA mit Platz für 2–4 Personen
- zweite Badezimmer ("Kinderbad") mit WC, Waschbecken, Dusche und Badewanne (ca. 10 m², 2013 modernisiert)
- bodentiefe Fenster mit Plissees
- edles Kirschholzparkett
- großer Balkon zur Westseite
Im Kellergeschoss befinden sich Fünf Räume mit insgesamt ca. 100 m² Nutzfläche.
Lage
Der besonders fürs Grüne bekannte Stadtteil Duvenstedt liegt im Norden der Hansestadt Hamburg und gehört zu den beliebten Walddörfern. Die Anwohner schätzen die Kombination aus naturnahem Wohnen und dem dörflichen Charme des Stadtteils.
Das schöne Einfamilienhaus befindet sich im idyllischen und Naturverbundenen Duvenstedt, in dem Sie vorwiegend Einfamilien- und Doppelhäuser vorfinden. Die Immobilie liegt in einer ruhige Anwohnerstraße ohne jeglichen Durchgangsverkehr. Dank der ruhigen Lage und der familienfreundlichen Umgebung können Ihre Kinder hier nicht nur im großen Garten, sondern auch direkt mit den Kindern aus der Nachbarschaft auf der Straße oder im angrenzenden Naturschutzgebiet Wittmoor spielen.
Alle wichtigen Einrichtungen des täglichen Lebens in Duvenstedt oder im benachbarten Lemsahl-Mellingstedt sind bequem mit dem Fahrrad oder dem Auto zu erreichen. Einkaufsmöglichkeiten sowie Ärzte und Apotheken sind in etwa 5 bis 10 Minuten erreichbar. Weitergehenden Ansprüchen wird das Alstertal-Einkaufszentrum gerecht, das nur etwa 15 Fahrminuten entfernt liegt.
Kulinarisch werden Sie in Duvenstedt und Lemsahl-Mellingstedt von mehreren Restaurants verwöhnt.
Die nächste Bushaltestelle "Bökenbarg" (ca. 5 Minuten mit dem Fahrrad) bietet mit den Buslinien 176 und 276 eine gute Anbindung an die U-Bahn-Haltestelle Ohlstedt (Linie U1)sowie die S-Bahn-Haltestelle Poppenbüttel (Linien S1 und S11).
Mehrere Kindergärten sowie Grund- und Weiterführende Schulen sind bequem mit dem Fahrrad oder dem Bus erreichbar.
Das direkt vor der Tür gelegene Naturschutzgebiet Wittmoor sowie weitere Naturschutzgebiete laden zu ausgiebigen Spaziergängen durch Wälder, Wiesen und Moorlandschaften ein. Für sportliche Aktivitäten stehen unter anderem das Freibad Duvenstedt, der Fußballverein "Duvenstedter Sv", der Tennisclub "TC Eichenhof" sowie der nahegelegene "Golf & Country Club Hamburg-Treudelberg e. V." zur Auswahl.
Sonstige Angaben
Weitere Details – insbesondere zur Beschreibung der Lage, der Wohnräume, des Gartens und all dessen, was die schöne Immobilie sonst noch zu bieten hat – finden Sie in unserem ausführlichen Exposé.
Senden Sie uns bei Interesse gerne eine Anfrage; wir lassen Ihnen das ausführliche Exposé zukommen.
Energieausweis: Bedarfsausweis, Baujahr 1969, Anlagentechnik von 2006, Energieeffizienzklasse H, Endenergiebedarf 260 kWh(m²*a), wesentlicher Energieträger Erdgas
Grundriss
Grundriss EG
>
>
Grundriss 1. OG
>
>
Grundriss KG
>
>
Adresse
22397 Hamburg
Interessante Orte
Preis- und Lageinformationen
Preistrend für Bestandsimmobilien in Duvenstedt