Objektnr: 1069464
Dieses einzigartige Architekteneckhaus vereint stilvolle Gestaltung mit funktionalem Wohnkomfort und bietet damit das ideale Zuhause für alle, die Wert auf Design, Qualität und ein harmonisches Familienleben legen.
Die außergewöhnlich ruhige Sackgassenlage sorgt für ein hohes Maß an Privatsphäre und Sicherheit – hier können Kinder unbeschwert spielen, während Sie die Ruhe und den Freiraum genießen. Das Grundstück befindet sich zudem in Hanglage, mit herrlichem Blick ins Grüne. Am unteren Ende des Gartens verläuft der Isental-Wanderweg sowie die malerische Isen mit Waldbestand im Naturschutzgebiet. Ein unverbaubares Grundstück – wohnen in der ersten Reihe!
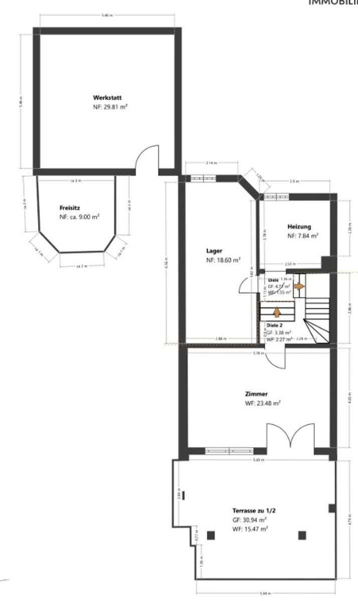
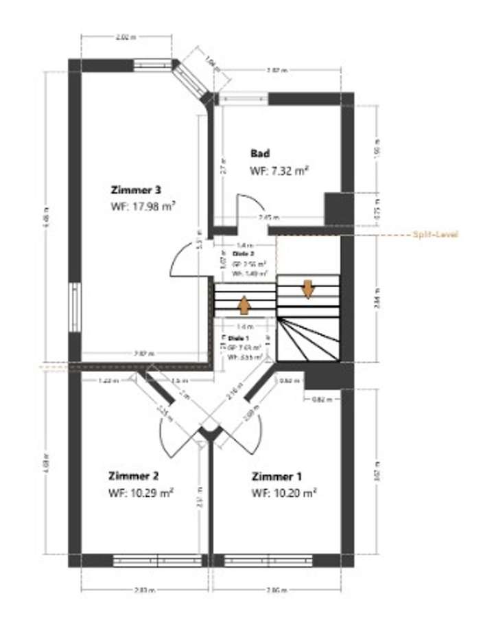
Das 1997 erbaute und gepflegte Haus präsentiert sich mit rund 155 m² Wohnfläche auf 5 Zimmern, darunter 4 Schlafzimmer, und schafft damit perfekte Voraussetzungen für Familien oder Paare mit Platzbedarf. Der durchdachte Grundriss umfasst zudem ein Badezimmer mit Dusche und Badewanne sowie ein separates Gäste-WC.
Der großzügige Wohnbereich öffnet sich zu einem überdachten Balkon, der zum Verweilen im Freien einlädt und einen schönen Blick ins Grüne bietet. Das Zimmer mit Zugang zur Terrasse (Souterrain) eignet sich ideal als Schlafzimmer oder als flexibler Raum für Gäste, Homeoffice oder Hobbys. Das Grundstück mit ca. 374 m² bietet viel Aufenthaltsqualität im Freien bei überschaubarem Pflegeaufwand.
Ein besonderes Highlight ist die große Werkstatt, die Hobbyhandwerkern, Kreativen oder Technikliebhabern vielseitige Möglichkeiten bietet. Zudem verfügt die Garage nicht nur über einen wettergeschützten Stellplatz, sondern ist bereits mit einer Wallbox für Ihr E-Auto ausgestattet – zukunftssicher und komfortabel.
Der Ort Isen bietet alles Notwendige für den Alltag: Geschäfte, Cafés, Restaurants, Ärzte, Kita, Kindergärten und Grund-/Mittelschule, sowie Sportvereine, Wochenmarkt und vieles mehr. Die Autobahn ist in wenigen Minuten erreichbar, Zug oder S-Bahn sind über den öffentlichen Nahverkehr angebunden.
Ein Kellerraum rundet das Gesamtangebot dieses außergewöhnlichen Hauses ab.
Sofort bezugsfrei! Architekteneckhaus in familienfreundlicher Sackgasse mit Garagenstellplatz!
84424 Isen
Die vollständige Adresse der Immobilie erhalten Sie vom Anbieter.
Auf Karte anzeigen
Die vollständige Adresse der Immobilie erhalten Sie vom Anbieter.
Finanzierungszertifikat
In nur zwei Minuten zu Ihrem persönlichen Finanzierungszertifkat.
Infos
| Haustyp | Reiheneckhaus |
|---|---|
| Etagenzahl | 3 |
| Wohnfläche ca. | 155 m2 |
| Grundstücksfläche | 374 m2 |
| Bezugsfrei ab | ab sofort |
| Zimmer | 5 |
| Schlafzimmer | 4 |
| Badezimmer | 1 |
| Garage/Stellplatz | Garage |
| Anzahl Garage/Stellplatz | 2 |
Kosten
| Kaufpreis |
695.000 € |
|---|---|
| Provision |
3,57 % Die Provision i.H.v. 3,57 % inkl. MwSt. ist mit Kaufvertragsbeurkundung fällig, sofern der Verkaufspreis über 83.000,00 € liegt. Liegt der Verkaufspreis dagegen bei/unter 83.000,00 €, ist die fest vereinbarte Mindestprovision i.H.v. mind. 5.950,00 € inkl. MwSt. mit Kaufvertragsbeurkundung fällig. Die Mindestprovision fällt insg. nur einmal an, wodurch Verkäufer und Käufer die Mindestprovision dann jeweils mit 2.975,00 € inkl. MwSt. tragen. |
Finanzierungsrechner:
Kaufpreis:
600.000 €
Eigenkapital:
600.000 €
Monatliche Rate
0 €
Effektiver Jahreszins
0 %
Sollzinsbindung
10 Jahre
Bausubstanz & Energieausweis
| Baujahr | 1997 |
|---|---|
| Bauphase | Haus fertig gestellt |
| Objektzustand | Gepflegt |
| Heizungsart | Zentralheizung |
| Wesentliche Energieträger | Gas |
| Energieausweis | liegt vor |
| Energieausweistyp | Verbrauchsausweis |
| Energieverbrauchskennwert | 96,7 kWh/(m²*a) |
| Energieeffizienzklasse | C |
96,7
kWh/(m²*a)
Energieeffizienzklasse C
- A+
- A
- B
- C
- D
- E
- F
- G
- H
- 0
- 25
- 50
- 75
- 100
- 125
- 150
- 175
- 200
- 225
- >250
Beschreibung des Objekts
Ausstattung
+ In familienfreundlicher Umgebung in bester Sackgassenlage von Isen, Isentalwanderweg beginnt am Grundstück
+ Entspannung im Freien: eine überdachte Terrasse und ein überdachter Balkon sowie Grünflächen bereichern das Wohnerlebnis
+ große Werkstatt unterhalb der Garage
+ überdurchschnittliche Deckenhöhe im Dachgeschoss, Potenzial für eine Zwischendecke gegeben
+ Objekt bietet Staufläche im Keller sowie Platz für Pkw dank einer Garage - eine Ladestation für E-Autos ist ebenfalls vorhanden, Glasfaser liegt bereits vor der Türe
Lage
Lage: Ruhige Sackgassenlage mit reduziertem Verkehr - ideal für Ruhesuchende und Familien
Bildung und Betreuung: Top-Lage: Schule und Kindergarten in max. 800 m Entfernung
Nahversorgung: Bequem zu Fuß in max. 5 Minuten kaufen: Supermarkt und Postfiliale
Anbindung: Autobahn komfortabel erreichbar und in 30 Min im Münchner Osten, ÖPN in 5 Gehminuten erreichbar
Sonstige Angaben
Vereinbaren Sie noch heute einen Besichtigungstermin!
_____________________________________________________
Alle Angaben sind ohne Gewähr und basieren ausschließlich auf Informationen, die uns von unserem Auftraggeber zur Verfügung gestellt wurden. Wir übernehmen keine Gewähr für die Vollständigkeit, Richtigkeit und Aktualität der Angaben.
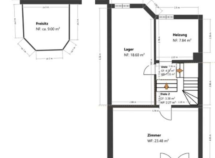
Grundriss
Grundriss Skizze EG
>
>
Grundriss Skizze DG
>
>
Grundriss Skizze UG
>
>
Adresse
84424 Isen
Interessante Orte
Preis- und Lageinformationen
Preistrend für Bestandsimmobilien in Isen