In Worphausen-Lilienthal entsteht ein modernes Reihenhaus im energieeffizienten KfW-40-Standard, das mit einer hochwertigen Bauausführung, einer massiven Bauweise und einer klar strukturierten Architektur überzeugt. Das Haus bietet mit einer Wohnfläche von ca. 99 m² ideale Voraussetzungen für Paare und Familien, die viel Wert auf nachhaltiges, modernes Wohnen und solide Technik legen.
Bereits beim Betreten zeigt sich die auf Effizienz und Wohnkomfort ausgerichtete Planung. Das Erdgeschoss ist geprägt von einem durchdachten Grundriss, klar definierten Bereichen und hohen Qualitätsstandards in der technischen Ausführung. Die massiven Außenwände bestehen aus Kalksandstein- bzw. Porenbetonmauerwerk, während eine anthrazitfarbene Klinkerfassade dem Gebäude ein zeitloses, hochwertiges Erscheinungsbild verleiht. Große Kunststofffenster mit 3-fach-Verglasung sorgen für viel Tageslicht und tragen gemeinsam mit der energiesparenden Bauweise zu einem angenehmen Raumklima bei.
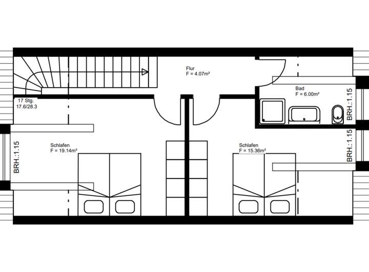
Das Dach wird traditionell als zimmermannsmäßige Holzkonstruktion ausgeführt und mit anthrazitfarbenen Doppelfalzdachpfannen eingedeckt. Der Dachboden ist über eine Bodeneinschubtreppe zugänglich und bietet zusätzliche Nutzfläche.
Im Innenbereich zeigt sich die hochwertige handwerkliche Ausführung: Das Haus wird inklusive Estrich, Putz, Sanitärinstallation, Elektroausstattung, Heizungsanlage sowie kontrollierter Wohnraumlüftung übergeben und handwerksgerecht nach den geltenden Regeln der Technik fertiggestellt.
Die gesamte Haustechnik ist modern und energieeffizient geplant. Neben einer zentrale Wärmepumpe (inkl. separater Verbrauchserfassung je Einheit) ist eine kontrollierte Wohnraumlüftung mit Wärmerückgewinnung Bestandteil des energetischen Gesamtkonzepts. Ergänzt wird dies durch eine Photovoltaikanlage, deren genaue Dimensionierung nach dem späteren Energienachweis erfolgt.
Auch die Außenanlagen sind Teil der Baumaßnahme: Die Zuwegung und Terrasse werden gepflastert, das Grundstück eingeebnet und für die Gartengestaltung vorbereitet. Durch die Kombination aus durchdachtem Grundriss, modernen Baustoffen und einem effizienten Energiestandard entsteht hier ein komfortables und zukunftssicheres Reihenhaus, das höchste Anforderungen an Nachhaltigkeit und Wohnkomfort erfüllt.
Lilienthal-Worphausen | Neubau-Reihenhaus im KfW-40-Standard
28865 Lilienthal
Die vollständige Adresse der Immobilie erhalten Sie vom Anbieter.
Auf Karte anzeigen
Die vollständige Adresse der Immobilie erhalten Sie vom Anbieter.
Finanzierungszertifikat
In nur zwei Minuten zu Ihrem persönlichen Finanzierungszertifkat.
Infos
| Haustyp | Reihenmittelhaus |
|---|---|
| Wohnfläche ca. | 98 m2 |
| Grundstücksfläche | 145 m2 |
| Zimmer | 3,5 |
| Schlafzimmer | 2 |
| Badezimmer | 2 |
| Garage/Stellplatz | Außenstellplatz |
| Anzahl Garage/Stellplatz | 1 |
Kosten
| Kaufpreis |
325.000 € |
|---|---|
| Provision |
1,75% zzgl. MwSt. |
Finanzierungsrechner:
Kaufpreis:
600.000 €
Eigenkapital:
600.000 €
Monatliche Rate
0 €
Effektiver Jahreszins
0 %
Sollzinsbindung
10 Jahre
Bausubstanz & Energieausweis
| Baujahr | 2026 |
|---|---|
| Objektzustand | Erstbezug |
| Heizungsart | Wärmepumpe |
| Energieausweis | liegt vor |
| Energieausweistyp | Bedarfsausweis |
| Energieverbrauchskennwert | 40,0 kWh/(m²*a) |
| Energieeffizienzklasse | A |
40,0
kWh/(m²*a)
Energieeffizienzklasse A
- A+
- A
- B
- C
- D
- E
- F
- G
- H
- 0
- 25
- 50
- 75
- 100
- 125
- 150
- 175
- 200
- 225
- >250
Beschreibung des Objekts
Ausstattung
Auswände und Statik:
+ Massive Außenwände aus Kalksandstein oder Porenbeton
+ Vollverblendete Fassade mit anthrazitfarbenen Klinkern
+ Hochwertige Stahlbetonbauteile gemäß Statik
+ Anthrazitfarbene Dacheindeckung mit Doppelfalzpfannen
+ Kunststofffenster anthrazit außen / weiß innen
+ 3-fach-Wärmeschutzverglasung (U-Wert ca. 0,8 W/m²K)
+ Elektrische Rollläden in Lichtgrau
+ Haustür mit Mehrfachverriegelung, Sicherheitsbeschlag und satiniertem Glas
Elektrik:
+ Installation gemäß aktueller VDE-Normen
+ Umfangreiche Steckdosen- und Schalterausstattung (Markenqualität, z. B. Merten/Busch-Jaeger)
+ Vorbereitung für E-Auto-Ladestation
+ Photovoltaikanlage nach Energie-/GEG-Nachweis
+ Telekom-Anschluss über Leerrohr vorbereitet
Sanitärausstattung:
+ Markenqualität (z. B. Ideal Standard oder gleichwertig)
+ Bodengleich geflieste Dusche mit Edelstahlablauf
+ Badewanne 170×77 cm
+ WC-Anlagen wandhängend mit UP-Spülkasten
+ Waschbecken (60 cm und 40 cm)
+ Kristallspiegel, Handtuchhalter, Armaturen inklusive
+ Anschlüsse für Geschirrspüler, Waschmaschine & Trockner
+ Fußbodenheizung im Badezimmer
Heizung & Lüftung:
+ Zentrale Wärmepumpenanlage
+ Elektrischer Handtuchtrockner im Bad
+ Kontrollierte Wohnraumlüftung mit Wärmerückgewinnung
Innenausbau:
+ Schwimmender Estrich gemäß Aufbauhöhe
+ Innenputz: Gipsputz Q2-Qualität
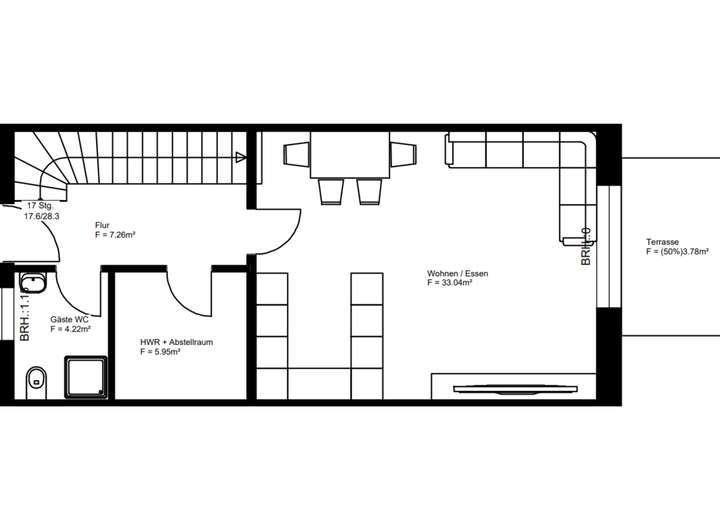
+ Treppe aus Stahlbeton mit Fliesenbelag und Holzhandlauf
+ Bodeneinschubtreppe zum ausgebauten Dachboden
Außenanlagen:
+ Anthrazitfarbenes Rechteckpflaster (10×20 cm) für Einfahrt und Wege
+ Terrassenplatten aus Beton (50×50 cm)
+ Einbau und Ausgleich des Mutterbodens
Optionale Leistungen:
(nicht im Standard enthalten)
Bodenbeläge
Malerarbeiten
Innentüren
Garage / Carport
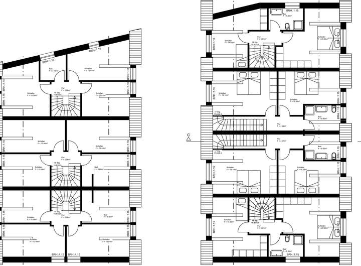
Überblick über die Einheiten:
RH1 | 112,08m² | 4,5 Zimmer + 2 Badezimmer | Reihenendhaus
RH2 | 111,59m² | 4,5 Zimmer + 2 Badezimmer | Reihenmittelhaus
RH3 | 107,79m² | 4,5 Zimmer + 2 Badezimmer | Reihenendhaus
RH4 | 95,26m² | 4,5 Zimmer + 2 Badezimmer | Reihenendhaus
RH5 | 98,83m² | 3,5 Zimmer + 2 Badezimmer | Reihenmittelhaus
RH6 | 98,82m² | 3,5 Zimmer + 2 Badezimmer | Reihenmittelhaus
RH7 | 98,90m² | 4,5 Zimmer + 2 Badezimmer | Reihenendhaus
Lage
Worphausen ist ein idyllisch gelegener Ortsteil der Gemeinde Lilienthal im niedersächsischen Landkreis Osterholz. Der Ort liegt am Rand des Teufelsmoors, rund sieben Kilometer nordöstlich des Lilienthaler Zentrums und etwa 20 Kilometer von der Bremer Innenstadt entfernt. Es besteht eine sehr gute Verkehrsanbindung in Richtung Bremen, Worpswede und Grasberg. Lilienthal selbst liegt nordöstlich der Freien Hansestadt Bremen und gehört zur Metropolregion Nordwest. Die Gemeinde profitiert stark von ihrer Nähe zur Bremer Innenstadt, die sowohl mit dem Auto als auch mit der Straßenbahn in etwa 20 bis 30 Minuten erreichbar ist.
Als Wohnort ist Lilienthal besonders bei Pendlern und Familien beliebt, da sich hier ein ruhiges, grünes Umfeld mit urbaner Nähe verbindet. Die Infrastruktur ist gut ausgebaut und umfasst zahlreiche Einkaufsmöglichkeiten, ärztliche Versorgung, Kindergärten sowie weiterführende Schulen. Zudem bietet die Umgebung mit dem Teufelsmoor, der Wümme und zahlreichen Grünflächen eine hohe Lebensqualität und vielfältige Freizeitmöglichkeiten.
Die Immobilie selbst befindet sich im nördlichen Teil Lilienthals. Einkaufsmöglichkeiten, Restaurants, Cafés, Ärzte und Apotheken liegen in guter Erreichbarkeit, ebenso wie Schulen und Kindergärten. Insgesamt zeichnet sich die Lage durch eine familienfreundliche Atmosphäre und eine sehr gute infrastrukturelle Anbindung aus.
Sonstige Angaben
Die Florian Wellmann Immobilien GmbH hat sich auf den Verkauf und die Vermietung von hochwertigen Immobilien spezialisiert. Seit Jahren sind wir erfolgreich am Immobilienmarkt tätig. Wir verkaufen und vermieten exklusive und außergewöhnliche Objekte in den bevorzugten Lagen von Bremen & Umgebung.
Wir sind durch beste regionale Kontakte gut vernetzt und können so unsere Objekte diskret und erfolgreich vermarkten.
Mit hohem Engagement und großer Motivation wickeln wir die Immobilien unserer Kunden ab. Beste Referenzen sprechen für unseren professionellen Service.
Sollten Sie noch weitere Informationen über unser Haus wünschen, werfen Sie einen Blick auf unsere Homepage
WWW.FLORIAN-WELLMANN.DE
Im Vorfeld bieten wir Ihnen gerne eine kostenfreie Bewertung Ihrer Immobilie an.
Adresse
28865 Lilienthal
Interessante Orte
Preis- und Lageinformationen
Preistrend für Bestandsimmobilien in Lilienthal