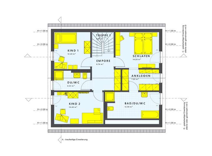
Dieses Einfamilienhaus in Zurow ist mehr als nur ein Bauwerk; es ist der Ausdruck deiner individuellen Wünsche und Vorstellungen. Mit einer großzügigen Wohnfläche von 164 Quadratmetern, verteilt auf fünf Zimmer, bietet es ausreichend Raum für die ganze Familie. Die vier Schlafzimmer und zwei Badezimmer sind ideal für ein harmonisches Familienleben. Das klassische Satteldach verleiht dem Haus eine zeitlose Eleganz, während der Panorama-Erker mit seinen großen Fenstern nicht nur Licht und Luft hereinlässt, sondern auch einen wunderschönen Blick in die Umgebung ermöglicht. Der Zwerchgiebel mit Flachdach sorgt dafür, dass der Wohnraum im Obergeschoss optisch vergrößert wird und du die gesamte Deckenhöhe optimal nutzen kannst.
LivingHaus macht es dir leicht, dein Traumhaus nach deinen Vorstellungen zu gestalten. Die Traumküche wird exakt auf deinen Grundriss abgestimmt und kommt mit modernster Technik sowie ästhetischem Design, sodass du sofort nach dem Einzug mit dem Kochen beginnen kannst. Mit der Living Haus Bau-App behältst du den Überblick über dein Bauprojekt und hast alle wichtigen Informationen jederzeit griffbereit. Das I-KON-System sorgt dafür, dass dein Zuhause energieeffizient und nachhaltig gebaut wird, während du von exklusiven Finanzierungsmöglichkeiten wie dem Zuhause-Darlehen profitierst, das dir attraktive Zinssätze bietet.
Das Zuhause-Paket garantiert eine hochwertige Grundausstattung deines Hauses, während du mit dem DIY-Ausbau-Coaching das nötige Know-how erwirbst, um den Innenausbau selbst in die Hand zu nehmen. LivingHaus bietet dir somit nicht nur ein Haus, sondern ein durchdachtes Gesamtkonzept, das deine Bauwünsche erfüllt und dir ein sicheres Zuhause schafft.
Wo Architektur auf persönliche Wünsche trifft - Dein individuelles Traumhaus in Zurow
23992 Zurow
Die vollständige Adresse der Immobilie erhalten Sie vom Anbieter.
Auf Karte anzeigen
Die vollständige Adresse der Immobilie erhalten Sie vom Anbieter.
Finanzierungszertifikat
In nur zwei Minuten zu Ihrem persönlichen Finanzierungszertifkat.
Infos
| Haustyp | Einfamilienhaus |
|---|---|
| Wohnfläche ca. | 164 m2 |
| Grundstücksfläche | 1.590 m2 |
| Zimmer | 5 |
| Schlafzimmer | 4 |
| Badezimmer | 2 |
Kosten
| Kaufpreis |
496.595 € |
|---|
Finanzierungsrechner:
Kaufpreis:
600.000 €
Eigenkapital:
600.000 €
Monatliche Rate
0 €
Effektiver Jahreszins
0 %
Sollzinsbindung
10 Jahre
Bausubstanz & Energieausweis
| Baujahr | 2026 |
|---|---|
| Bauphase | Haus in Planung (projektiert) |
| Qualität der Austattung | Luxus |
| Energieausweis | liegt vor |
| Energieausweistyp | Bedarfsausweis |
| Energieverbrauchskennwert | 18,0 kWh/(m²*a) |
| Energieeffizienzklasse | A+ |
18,0
kWh/(m²*a)
Energieeffizienzklasse A+
- A+
- A
- B
- C
- D
- E
- F
- G
- H
- 0
- 25
- 50
- 75
- 100
- 125
- 150
- 175
- 200
- 225
- >250
Beschreibung des Objekts
Ausstattung
Die Ausstattung deines neuen Zuhauses ist individuell anpassbar und umfasst moderne Bodenbeläge, edle Türen sowie hochwertige Sanitäranlagen in den Badezimmern. Die integrierte I-KON-Lösung ermöglicht es dir, mit einer PV-Anlage und Speicherbatterie einen Großteil deines Strombedarfs selbst zu decken. Die energieeffiziente Wärmepumpentechnik mit Komfortlüftung sorgt für ein angenehmes Raumklima. Das Zuhause-Paket beinhaltet alle Innenausbaumaterialien und eine individuell geplante Küche, sodass du dich um nichts kümmern musst.
Zusätzlich profitierst du von einer 18-monatigen Festpreisgarantie, umfassenden Bauversicherungen und einer 30-jährigen Garantie auf die Grundkonstruktion. Dein individuelles Traumhaus wird so sicher und nach höchsten Standards verwirklicht - ganz nach dem Motto: Dein »Wie ich es will Fertighaus«.
Lage
Zurow liegt in einer malerischen Umgebung, die dir zahlreiche Möglichkeiten für Bildung, Gesundheit, Einkauf und Freizeit bietet. In der näheren Umgebung findest du mehrere Schulen, darunter die Grundschule Zurow, die für ihre engagierten Lehrer und eine familiäre Atmosphäre bekannt ist. Auch Kindergärten sind in der Nähe, was für Familien mit kleinen Kindern ideal ist.
Die medizinische Versorgung ist durch verschiedene Ärzte und Apotheken im Ort gewährleistet, sodass du jederzeit gut betreut bist. Für deine täglichen Einkäufe findest du Supermärkte, Bäckereien und andere Geschäfte im Umkreis, die alles bieten, was du benötigst. Die gute Anbindung an den öffentlichen Nahverkehr sowie die Autobahn macht Zurow zu einem attraktiven Wohnort für Pendler, die in die nahegelegenen Städte fahren möchten.
Freizeitangebote sind in Zurow ebenfalls reichlich vorhanden. Die idyllische Umgebung lädt zu Spaziergängen und Fahrradtouren ein, und in der Nähe gibt es zahlreiche Sportvereine und Freizeitaktivitäten für Groß und Klein. Auch die natürliche Schönheit der Region sorgt für unvergessliche Momente im Freien, sei es beim Wandern oder bei einem Picknick im Grünen. Zurow ist somit der perfekte Ort für Familien, Naturliebhaber und all jene, die eine ruhige, aber dennoch gut angebundene Lebensweise suchen.
Sonstige Angaben
Das hier angebotene Grundstück ist im obigen Preis eingerechnet, es wird ohne zusätzliche Provision an einen Living Haus-Bauherren bereitgestellt.
Zusätzliche Baunebenkosten müssen noch hinzugerechnet werden, hierüber beraten wir dich gern.
Wir bieten auch interessante Finanzierungsmöglichkeiten inklusive Beantragung aller Fördermittel!
Die Hausabbildungen und die Bilder der Inneneinrichtung zeigen möglicherweise Extras, die nicht im angegebenen Kaufpreis inbegriffen sind.
Gute Beratung ist der Anfang von Allem. Deshalb analysieren wir gemeinsam mit euch eure Vorstellungen, Wünsche und Bedürfnisse und finden so das für Dich und Deine Familie passende Living Haus.
Interessiert? Kontaktiere mich und vereinbare noch heute einen kostenlosen und unverbindlichen Beratungstermin unter +49 0176/21774090
.
Adresse
23992 Zurow
Interessante Orte
Preis- und Lageinformationen
Preistrend für Bestandsimmobilien in Zurow