Ein Dreifamilienhaus in ruhiger Lage und trotzdem in wenigen Minuten zur Stadtbahn oder in die Natur. Dieses 1935 erbaute Haus hat 1990 einen Anbau bekommen und wurde in größerem Umfang saniert. Es beinhaltet drei Wohnungen (Erdgeschoss 88,61 qm, Obergeschoss 88,61 qm, Dachgeschoss 59,72 qm), zwei Wohnungen sind vermietet (jede Wohnung monatlich 450 Euro zzgl. 50 Euro Nebenkosten). Die Erdgeschoss-Wohnung wird vom Eigentümer bewohnt. Zum Haus gehört eine Doppelgarage und ein überdachter Freisitz. Es steht in einer ruhige Wohnstraße in Fellbach.
Die Wohnungen sind mit Gasetagenheizungen. Einzelne Wasseruhren sind nicht vorhanden, es wird nach Personen abgerechnet. Gesamteindruck des Hauses ist gut.
Mehrfamilienhaus in ruhiger Lage!
70734 Fellbach
Die vollständige Adresse der Immobilie erhalten Sie vom Anbieter.
Auf Karte anzeigen
Die vollständige Adresse der Immobilie erhalten Sie vom Anbieter.
Finanzierungszertifikat
In nur zwei Minuten zu Ihrem persönlichen Finanzierungszertifkat.
Infos
| Haustyp | Mehrfamilienhaus |
|---|---|
| Etagenzahl | 2 |
| Wohnfläche ca. | 236 m2 |
| Grundstücksfläche | 462 m2 |
| Bezugsfrei ab | nach Vereinbarung |
| Zimmer | 9 |
| Schlafzimmer | 6 |
| Badezimmer | 3 |
| Garage/Stellplatz | Garage |
| Anzahl Garage/Stellplatz | 2 |
Kosten
| Kaufpreis |
850.000 € |
|---|---|
| Provision |
4,76 % inkl. ges. MwSt. Die Maklercourtage für den Käufer beträgt 4 % aus dem Kaufpreis zuzüglich der gesetzlichen MwSt., somit gesamt 4,76 %. |
Finanzierungsrechner:
Kaufpreis:
600.000 €
Eigenkapital:
600.000 €
Monatliche Rate
0 €
Effektiver Jahreszins
0 %
Sollzinsbindung
10 Jahre
Bausubstanz & Energieausweis
| Baujahr | 1935 |
|---|---|
| Letzte Sanierung | 1990 |
| Bauphase | Haus fertig gestellt |
| Objektzustand | Gepflegt |
| Qualität der Austattung | Normal |
| Heizungsart | Zentralheizung |
| Wesentliche Energieträger | Gas |
| Energieausweis | liegt vor |
| Energieausweistyp | Bedarfsausweis |
| Energieverbrauchskennwert | 171,8 kWh/(m²*a) |
| Energieeffizienzklasse | F |
171,8
kWh/(m²*a)
Energieeffizienzklasse F
- A+
- A
- B
- C
- D
- E
- F
- G
- H
- 0
- 25
- 50
- 75
- 100
- 125
- 150
- 175
- 200
- 225
- >250
Beschreibung des Objekts
Lage
* sehr ruhige Lage, fast am Feldrand
Sonstige Angaben
Energiebedarfsausweis Energiekennwert: 171,80 kWh/(qm*a) Energieeffizienz: Klasse F (kl.200) Heizung: Zentralheizung mit Gas Baujahr laut Energieausweis: 1935
* Gasetagenheizung
* Fassade 1990
* Holz-Alufenster 1990
* Dach 1978-1980
* drei Balkone
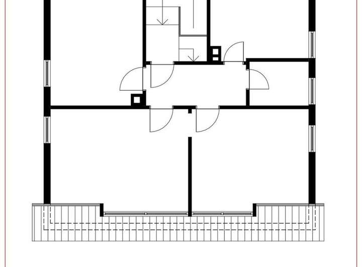
Grundriss
Untergeschoss
>
>
Erdgeschoss
>
>
Obergeschoss
>
>
Dachgeschoss
>
>
Adresse
70734 Fellbach
Interessante Orte
Preis- und Lageinformationen
Preistrend für Bestandsimmobilien in Fellbach