Die sympathische Doppelhaushälfte wurde im Jahre 1991 in massiver Bauweise in einem weißen Klinker mit dazu perfekt korrespondierenden dunklen Dachpfannen errichtet.
Die Beheizung sowie Warmwasserversorgung der Immobilie erfolgt über eine Gaszentralheizung, welche im Jahre 2015 erneuert wurde. Eine Fußbodenheizung im Erd- und Dachgeschoss sorgt für wohlige Wärme und ein hohes Maß an Komfort.
Im Erd- und Obergeschoss befinden sich insgesamt drei Zimmer sowie eine großzügige Küche und ein modernes Badezimmer, welche sich über ca. 119 m² Wohnfläche erstrecken. Zudem wurde ein Teil des Vollkellers sowie der Spitzboden wohnlich ausgebaut.
Das gepflegte Doppelhaus wurde um das Jahr 2015 in einigen teilen saniert, so wurde unter anderem das Dach neu gedeckt und das Badezimmer modernisiert.
Zeitlose Eleganz trifft Gemütlichkeit: "Traumhafte Doppelhaushälfte in ruhiger Lage Wentorfs"
21465 Wentorf bei Hamburg
Die vollständige Adresse der Immobilie erhalten Sie vom Anbieter.
Auf Karte anzeigen
Die vollständige Adresse der Immobilie erhalten Sie vom Anbieter.
Finanzierungszertifikat
In nur zwei Minuten zu Ihrem persönlichen Finanzierungszertifkat.
Infos
| Haustyp | Doppelhaushaelfte |
|---|---|
| Wohnfläche ca. | 119 m2 |
| Nutzfläche | 69 m2 |
| Grundstücksfläche | 1.160 m2 |
| Zimmer | 3 |
| Garage/Stellplatz | Carport |
Kosten
| Kaufpreis |
645.000 € |
|---|---|
| Provision |
3,125 % inkl. USt. |
Finanzierungsrechner:
Kaufpreis:
600.000 €
Eigenkapital:
600.000 €
Monatliche Rate
0 €
Effektiver Jahreszins
0 %
Sollzinsbindung
10 Jahre
Bausubstanz & Energieausweis
| Baujahr | 1991 |
|---|---|
| Wesentliche Energieträger | Gas |
Beschreibung des Objekts
Ausstattung
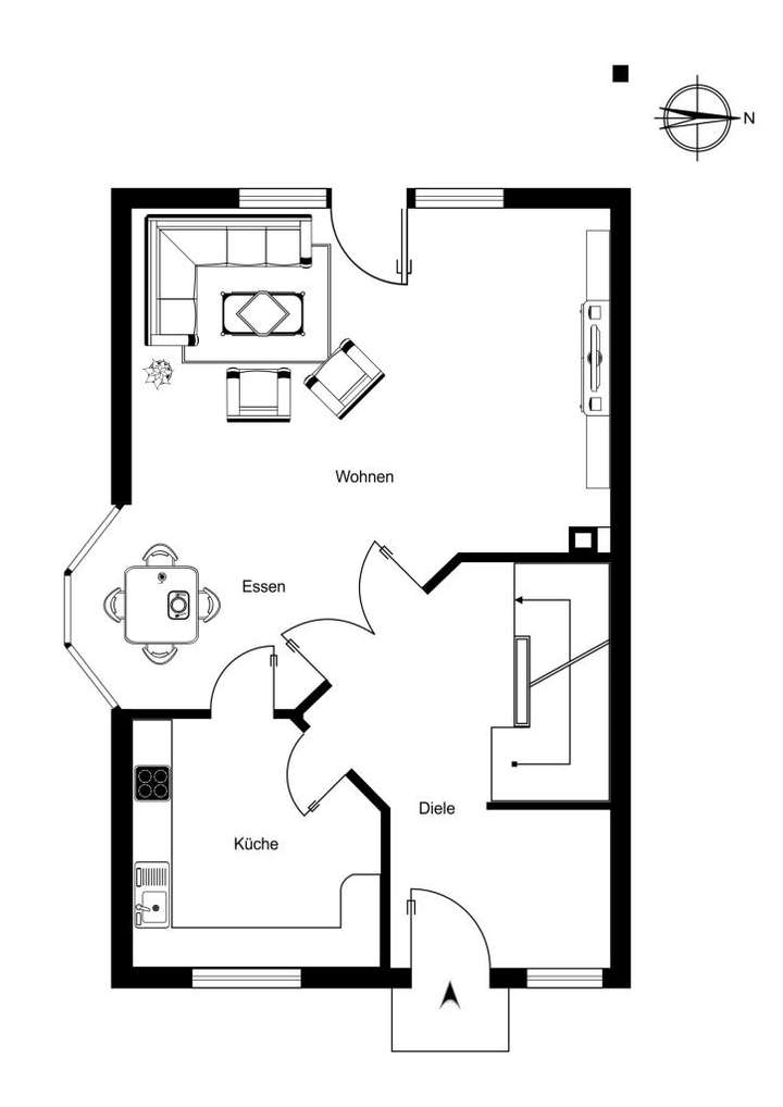
Mit Betreten der Immobilie werden Sie von einer geräumigen Diele in Empfang genommen. Hier lässt sich problemlos eine Garderobe unterbringen.
Über eine helle Holztreppe gelangen Sie von hier aus in alle Etagen des Hauses. Eine Besonderheit im Flur ist die Empore im Obergeschoss, welche durch ein großes Fenster herrlichen Lichteinfall in den Flur bietet.
Im Erdgeschoss befindet sich linker Hand eine großzügige Küche mit Platz für einen gemütlichen Essbereich. Die Küche präsentiert sich in einer hellen Einbauküche im Landhausstil und überzeugt durch viel Staufläche.
Von der Küche aus gelangen Sie in den offen gestalteten Wohn- und Essbereich. Der gemütliche Erker verfügt über einen ganz besonderen Charme und bietet die hervorragende Möglichkeit hier den Essbereich zu platzieren. Der anliegende Wohnbereich ist offen und großzügig gestaltet und bietet direkten Zugang auf die sonnige Terrasse.
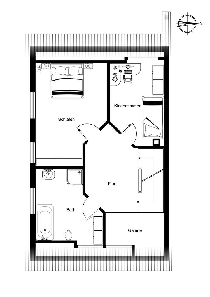
Im Obergeschoss erwarten Sie zwei Schlafzimmer und ein modernes Vollbad. Das größere der beiden Zimmer eignet sich ideal für ein Elternschlafzimmer. Hier lässt sich problemlos ein Doppelbett sowie ein Kleiderschrank unterbringen.
Das im Jahre 2015 sanierte Vollbad lässt keine Wünsche offen. Eine ebenerdige Regendusche sowie eine Badewanne stehen Ihnen hier zu Verfügung. Das große Fenster sorgt für eine optimale Belüftung.
Das zweite Schlafzimmer ließe sich ideal als Arbeits-, Gäste- oder Kinderzimmer nutzen.
Im Spitzboden finden Sie einen wohnlich ausgebauten Raum, welcher sich optimal als Hobbyraum nutzen ließe.
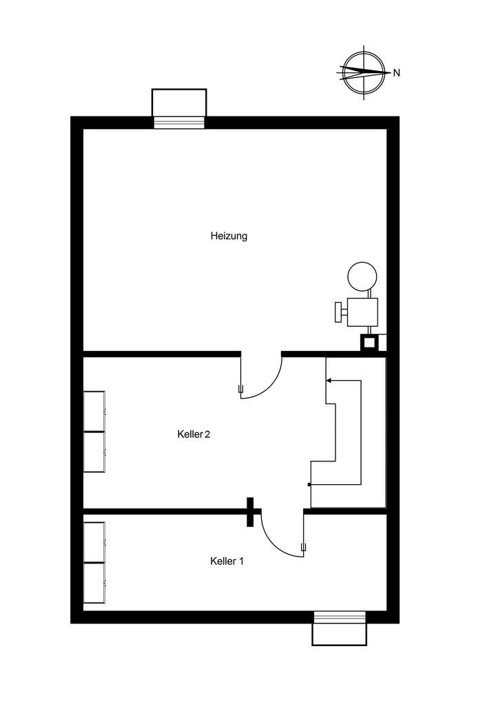
Im Kellergeschoss befinden sich ein Duschbad, der Heizungsraum sowie ein liebevoll hergerichteter Hobbyraum, welcher vielseitige Nutzungsoptionen für Sie bereithält - beispielsweise als Fitnessraum oder zur Einrichtung eines Heimkinos.
Lage
Die Gemeinde Wentorf liegt etwa 20 km östlich der Hamburger Innenstadt und zählt zu den beliebtesten Lagen im Hamburger Speckgürtel. Überwiegend gepflegte Einfamilienhäuser und luxuriöse Villen prägen den repräsentativen Charakter dieser einmalig schönen Gegend.
Die direkte Nähe zum idyllischen Sachsenwald und zur Wentorfer Lohe bietet ein Maximum an Lebensqualität. Zahlreiche Golfclubs, der TTK Tontaubenklub Sachsenwald e. V. sowie weitere Sport- und Fitnessclubs lassen auch für die Freizeitgestaltung keine Wünsche offen. Kulturelle Veranstaltungen werden in Reinbek und Bergedorf geboten. Zudem befinden sich Kindertagesstätten sowie alle Schulformen in der unmittelbaren Umgebung. Einkaufsmöglichkeiten für Besorgungen des täglichen Bedarfs und darüber hinaus sowie eine hervorragende ärztliche Versorgung sind ebenfalls vor Ort gegeben.
Die Hamburger Innenstadt lässt sich per PKW oder von der S-Bahn-Station Reinbek in ca. 30 Minuten problemlos erreichen.
Sonstige Angaben
Das ideell geteilte Grundstück mit einer Gesamtgröße von ca. 1.160 m² befindet sich in einer ruhigen Straßenlage. Die hier angebotene Doppelhaushälfte ist mit einem Miteigentumsteil von 1/2 verbunden - somit sind ca. 580 m² Grundstück dieser Immobilie zugehörig. Das Grundstück erreichen Sie über eine gepflasterte Zuwegung und ein weißes Tor.
Im vorderen Bereich des Grundstücks befindet sich zudem ein Carport mit Platz für einen PKW.
Der hintere Bereich überzeugt mit großen Grünflächen und einer pflegeleichten Bepflanzung. Das Grundstück ist nach Westen ausgerichtet. Eine großzügige und sonnige Terrasse mit Blick in den Garten lädt zum Entspannen ein.
Ein kleines Gartenhäuschen bietet ausreichend Stauraum für Gartengeräte, Utensilien oder Fahrräder.
Grundriss
Erdgeschoss
>
>
Obergeschoss
>
>
Spitzboden
>
>
Kellergeschoss
>
>
Adresse
21465 Wentorf bei Hamburg
Interessante Orte
Preis- und Lageinformationen
Preistrend für Bestandsimmobilien in Wentorf bei Hamburg