Das hier angebotene letzte familienfreundliche Reiheneck-Einfamilienhaus befindet sich in der Klimaschutz-Siedlung mit 56 Niedrigenergiehäusern und wird durch ein Blockheizkraftwerk auf Pellet- und Solarbasis mit Energie versorgt. Jedes Haus verfügt über ein Umluft-System mit Wärmerückgewinnung. Alle Eigentümer sind im Grundbuch eingetragen mit Ihrem erworbenen Grund und Boden, und haben ein Miteigentumsanteil an allen Grünflächen, privaten Wegeflächen und Versorgungsflächen, Strom- und Datennetze zur Energiezentrale so dass kein Verwalter eingesetzt werden muss. Die niedrigen Bewirtschaftungskosten tragen die Eigentümer anteilig Ihrer Miteigentumsanteile.
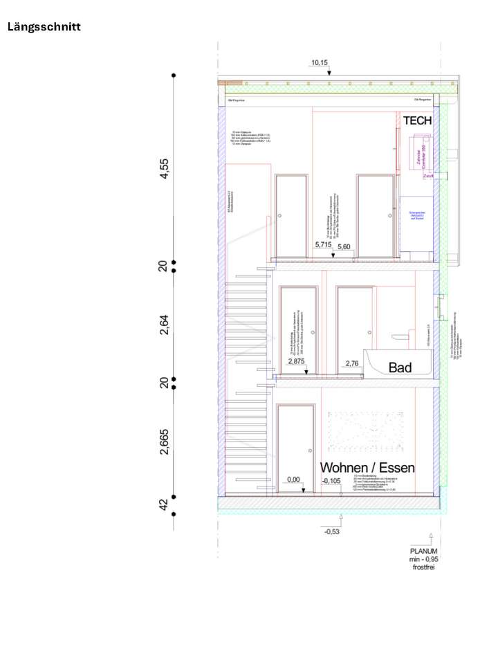
Das angebotene Haus verfügt im Erdgeschoß über ein Gäste-WC, eine Diele sowie einem offenem Wohnraum mit Küche. Vom Wohnraum betreten Sie die Terrasse und den Garten. Im Obergeschoss befinden sich das Familienbad mit Hausanschluss- und Technikraum inklusive Platz für Waschmaschine sie zwei Schlafräume. Im Dachgeschoß mit separatem Duschbad und Technikschrank kann ein Schlaf- und Arbeitsraum entstehen. Das Haus war noch nie bewohnt.
• Parkettböden und Treppenstufen aus Massivholz
• in allen Geschossen Fußbodenheizung
• energieeffizient und modern mit niedrigen Nebenkosten
• Energiezentrale mit BHKW (Holzpellets), digital gesteuert
• Kontrollierte Be- und Entlüftung (optimal für Allergiker)
mit Wärmerückgewinnung
• 3 Schlafräume
• 2 Bäder und Gäste-WC
• Kunststofffenster mit 3-fach Verglasung und elektrischen Rollläden
• Einbauküche inklusive
• Gartenhaus
• PWK-Stellplatz und Carport neben dem Haus
• Neubauerstbezug
Wir weisen darauf hin, dass die von uns weitergegebenen Objektinformationen, Unterlagen, Pläne etc. vom Veräußerer bzw. Vermieter stammen. Eine Haftung für die Richtigkeit oder Vollständigkeit der Angaben übernehmen wir daher nicht. Es obliegt daher unseren Kunden, die darin enthaltenen Objektinformationen und Angaben auf ihre Richtigkeit hin zu überprüfen.
LETZTES NIEDERIGENERGIE HAUS – Erstbezug mit TOP- Ausstattung, Sonnengarten und Einbauküche!
52353 Düren
Die vollständige Adresse der Immobilie erhalten Sie vom Anbieter.
Auf Karte anzeigen
Die vollständige Adresse der Immobilie erhalten Sie vom Anbieter.
Finanzierungszertifikat
In nur zwei Minuten zu Ihrem persönlichen Finanzierungszertifkat.
Infos
| Haustyp | Reiheneckhaus |
|---|---|
| Wohnfläche ca. | 116 m2 |
| Nutzfläche | 6 m2 |
| Grundstücksfläche | 370 m2 |
| Bezugsfrei ab | nach Vereinbarung |
| Zimmer | 4 |
| Schlafzimmer | 3 |
| Badezimmer | 2 |
| Garage/Stellplatz | Carport |
| Anzahl Garage/Stellplatz | 1 |
Kosten
| Kaufpreis |
399.000 € |
|---|---|
| Provision |
zzgl.3,57% inkl. 19% MwSt. |
Finanzierungsrechner:
Kaufpreis:
600.000 €
Eigenkapital:
600.000 €
Monatliche Rate
0 €
Effektiver Jahreszins
0 %
Sollzinsbindung
10 Jahre
Bausubstanz & Energieausweis
| Baujahr | 2017 |
|---|---|
| Bauphase | Haus fertig gestellt |
| Objektzustand | Erstbezug |
| Qualität der Austattung | Gehoben |
| Heizungsart | Blockheizkraftwerk |
| Wesentliche Energieträger | Pelletheizung |
| Energieausweis | liegt vor |
| Energieausweistyp | Bedarfsausweis |
| Energieverbrauchskennwert | 27,8 kWh/(m²*a) |
| Energieeffizienzklasse | A+ |
27,8
kWh/(m²*a)
Energieeffizienzklasse A+
- A+
- A
- B
- C
- D
- E
- F
- G
- H
- 0
- 25
- 50
- 75
- 100
- 125
- 150
- 175
- 200
- 225
- >250
Beschreibung des Objekts
Lage
Das Objekt befindet sich in einem ruhigen Bereich zwischen Alte Jülicher Straße und LVR-Klinik im Stadtzentrum von Düren. Düren ist mit etwa 90.000 Einwohnern eine große Mittelstadt in Nordrhein-Westfalen und liegt zwischen Aachen und Köln am Nordrand der Eifel. Die Innenstadt von Düren mit ihren vielfältigen Unterhaltungs- und Einkaufsmöglichkeiten ist in wenigen Minuten zu erreichen. Versorgungsmöglichkeiten zur Deckung des täglichen Bedarfs befinden sich in unmittelbarer Nähe.
Sonstige Angaben
Verkehr
Die Anbindung an den Personennahverkehr ist durch die fußläufig erreichbaren Haltestellen als gut zu bezeichnen. Eine verkehrsgünstige Anbindung ist durch die unmittelbare Nähe an den Autobahnanschluss A4 in die Richtungen Aachen u. Köln vorhanden. Der Hauptbahnhof von Düren ist in ca. 1km erreichbar. Die Zugverbindungen in die Richtungen Aachen und Köln verkehren stündlich.
Weitere Dokumente
Wir vermitteln Ihre Immobilie!Grundriss
EG
>
>
OG
>
>
DG
>
>
Querschnitt
>
>
Längsschnitt
>
>
Ansicht Nord
>
>
Ansicht Süd
>
>
Adresse
52353 Düren
Interessante Orte
Preis- und Lageinformationen
Preistrend für Bestandsimmobilien in Düren