In ruhiger und familienfreundlicher Wohnlage von Großseelheim präsentiert sich dieses großzügige Einfamilienhaus mit Einliegerwohnung als wahres Raumwunder. Mit ca. 200m² Wohnfläche, verteilt auf drei Etagen, bietet die Immobilie vielfältige Möglichkeiten für Familien, Mehrgenerationenwohnen oder die Kombination aus Wohnen und Arbeiten unter einem Dach.
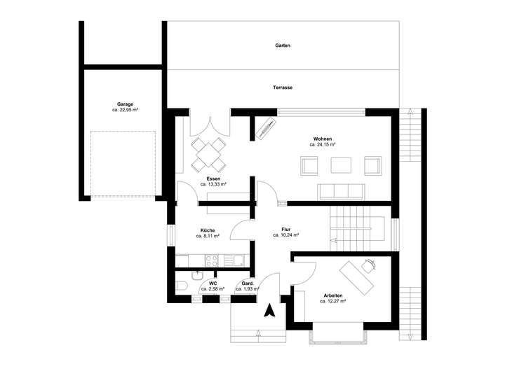
Das Herzstück bildet der großzügige Wohn- und Essbereich im Erdgeschoss mit direktem Zugang zur Terrasse. Von hier aus genießen Sie den Blick in den traumhaft angelegten Garten – ein echtes Highlight, das zum Entspannen, Spielen und Verweilen einlädt.
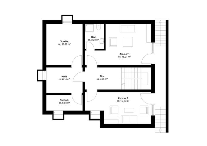
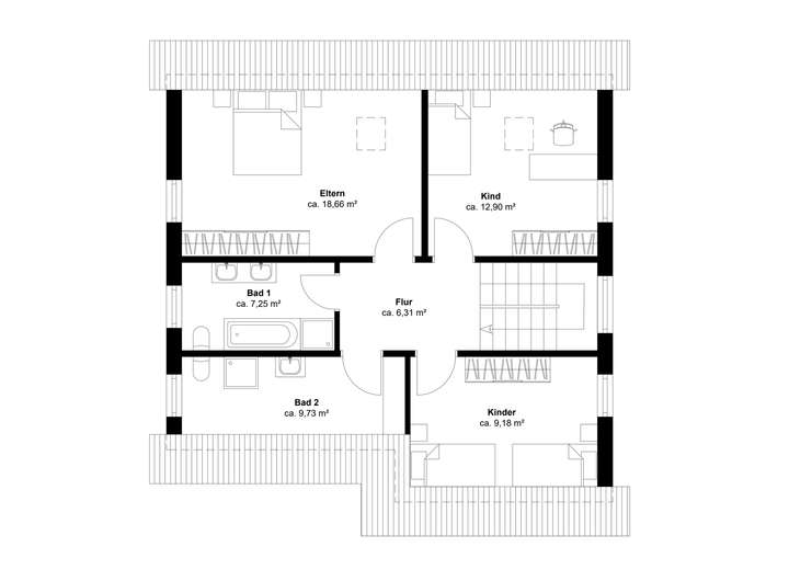
Mit insgesamt acht Zimmern, zwei vollwertigen Bädern und zwei separaten Gäste-WC überzeugt das Haus durch eine durchdachte Raumaufteilung und hohen Wohnkomfort. Im Untergeschoss befinden sich zwei ausgebaute Zimmer, ein Badezimmer, ein praktischer Hauswirtschaftsraum sowie ein großzügiger Abstellraum. Dank des separaten Eingangs lässt sich dieser Bereich ideal als Einliegerwohnung nutzen – perfekt für Gäste, größere Kinder, Homeoffice oder zur Vermietung.
Ein zusätzlicher Dachboden bietet wertvolle Abstellfläche oder weiteres Ausbaupotenzial. Eine Garage sowie ein Carport sorgen für komfortable Parkmöglichkeiten direkt auf dem Grundstück. Beheizt wird die Immobilie über eine elektrische Nachtspeicherheizung.
Das rund 950 m² große Grundstück ist ein Paradies für Gartenfreunde und Familien mit Kindern – mit viel Platz zum Spielen, Gärtnern und Entspannen im Grünen.
Diese Immobilie überzeugt nicht nur durch ihre Größe und Flexibilität, sondern auch durch ihre Lage und das große Potenzial – ein echtes Zuhause für Menschen, die viel Raum für ihre Lebensentwürfe suchen. Nutzen Sie die Gelegenheit, und machen Sie diesen Wohntraum in Großseelheim zu Ihrer neuen Familienbasis.
Wohnen mit Weitblick – Haus mit vielseitigen Nutzungsmöglichkeiten
35274 Kirchhain
Die vollständige Adresse der Immobilie erhalten Sie vom Anbieter.
Auf Karte anzeigen
Die vollständige Adresse der Immobilie erhalten Sie vom Anbieter.
Finanzierungszertifikat
In nur zwei Minuten zu Ihrem persönlichen Finanzierungszertifkat.
Infos
| Haustyp | Sonstige |
|---|---|
| Etagenzahl | 3 |
| Wohnfläche ca. | 200 m2 |
| Nutzfläche | 220 m2 |
| Grundstücksfläche | 950 m2 |
| Bezugsfrei ab | sofort |
| Zimmer | 8 |
| Schlafzimmer | 5 |
| Badezimmer | 4 |
| Garage/Stellplatz | Garage |
| Anzahl Garage/Stellplatz | 2 |
Kosten
| Kaufpreis |
395.000 € |
|---|---|
| Provision |
3,57% inkl. MwSt. Vom Käufer mit notarieller Beurkundung zu tragen. |
Finanzierungsrechner:
Kaufpreis:
600.000 €
Eigenkapital:
600.000 €
Monatliche Rate
0 €
Effektiver Jahreszins
0 %
Sollzinsbindung
10 Jahre
Bausubstanz & Energieausweis
| Baujahr | 1979 |
|---|---|
| Letzte Sanierung | 2024 |
| Qualität der Austattung | Normal |
| Heizungsart | Nachtspeicherofen |
| Wesentliche Energieträger | Strom |
| Energieausweis | liegt zur Besichtigung vor |
Beschreibung des Objekts
Ausstattung
- Fläche gesamt ca. 200 m²
- insgesamt 8 Zimmer, verteilt auf Haupthaus und Einliegerwohnung
- Einen Dachboden
- 2 Vollbäder
- 2 Gäste WC
- Grundstücksfläche: 950 m² – viel Platz zum Spielen, Gärtnern & Entspannen
- Baujahr: 1979
- 1 Garage & 1 Carport – geschützt parken direkt am Haus
- Großer Garten – eine grüne Oase für die ganze Familie
- Heizung: Aktuell Elektrische Nachtspeicherheizung
Lage
Das Einfamilienhaus liegt in Großseelheim, einem besonders attraktiven Ortsteil der Stadt Kirchhain im mittelhessischen Landkreis Marburg-Biedenkopf. Die ruhige, gewachsene Wohnlage verbindet ländliche Idylle mit der Nähe zur Universitätsstadt Marburg und bietet eine hervorragende Nahversorgung direkt vor Ort.
Großseelheim verfügt über eine außergewöhnlich gute Infrastruktur für einen Ort dieser Größe: Eine eigene Grundschule, ein Kindergarten, Allgemeinmediziner, eine Apotheke, ein Zahnarzt, Metzgerei, Bäckerei sowie eine Tankstelle befinden sich direkt im Ort und sind bequem zu Fuß erreichbar. Das Wohnumfeld ist geprägt von gepflegten Einfamilienhäusern, ruhigen Anwohnerstraßen und einem familiären, aktiven Dorfleben – ideal für Familien, Ruhesuchende und alle, die naturnah wohnen möchten.
Gelegen zwischen Kirchhain und Marburg, überzeugt Großseelheim durch seine strategisch günstige Lage. Die Universitätsstadt Marburg mit ihrem breiten kulturellen und wirtschaftlichen Angebot ist in ca. 10–15 Minuten erreichbar – die renommierte Universitätsklinik Marburg sogar in nur etwa 5 Autominuten. Auch Kirchhain mit vielfältigen Einkaufsmöglichkeiten, weiterführenden Schulen und dem Bahnhof mit direktem Anschluss nach Marburg, Kassel und Gießen ist schnell mit dem Auto erreichbar.
Der öffentliche Nahverkehr ist in der Region eingeschränkt vorhanden, weshalb ein eigener PKW empfehlenswert ist. Dafür profitieren Sie von einer hervorragenden Anbindung über die B 62 und B 3 sowie der schnellen Erreichbarkeit der A 49.
Großseelheim bietet Ihnen eine lebenswerte Kombination aus Ruhe, guter Nahversorgung und der Nähe zu städtischer Infrastruktur – ein idealer Ort für alle, die Wohnqualität im Grünen schätzen.
Weitere Dokumente
Dachgeschoss.pdfAdresse
35274 Kirchhain
Interessante Orte
Preis- und Lageinformationen
Preistrend für Bestandsimmobilien in Kirchhain
>
>